ハーモニーレジデンス蒲田アートヴィラ 0104号室(1階/1DK)の賃貸物件(賃貸マンション)
東京都大田区にあるハーモニーレジデンス蒲田アートヴィラ 0104号室はガスコンロ、浴室乾燥機、エアコン、フローリング、エレベーターなどが特徴です。最寄り駅の京浜東北・根岸線蒲田駅から徒歩10分です。ハーモニーレジデンス蒲田アートヴィラ 0104号室の詳細はハウスコム 蒲田店までお気軽にお問い合わせください!
情報更新日:
次回更新予定日:
※次回更新予定日について:お店側では順次空室確認を行っていますが、次回更新予定日までに空室確認が行えない場合には、この物件情報は自動的に削除されます。
ハーモニーレジデンス蒲田アートヴィラ 0104号室の賃貸物件部屋概要
家賃 |
13.5万円
初期費用を |
|---|---|
共益費 |
12,000円
入居可能時期 |
敷金/礼金 |
1ヶ月 / 2ヶ月 |
保証金/ |
- / - |
最寄駅 |
|
所在地 |
東京都大田区蒲田本町 |
部屋番号 |
0104号室 |
間取り |
1DK(DK0) |
専有面積 |
25.51㎡ |
築年数 |
2024年1月(築3年) |
階数 |
1階部分(地上5階建) |
方位・位置 |
北 / その他 |
物件種別 |
賃貸マンション |
構造 |
RC |
駐車場 |
- |
小学校学区 |
新宿小学校 |
中学校学区 |
蒲田中学校 |
他の空き部屋 |
***号室 0205号室 0303号室 ***号室 0310号室 ***号室 0408号室 0503号室 |
- 学区データについて
- ※学区データは必ずしも正確とは限りません。詳細に関しては最寄店舗または各自治体の教育委員会に必ずご確認ください。
ハーモニーレジデンス蒲田アートヴィラ 0104号室の特徴
-
一人暮らしに人気の設備

-
カップルに人気の設備

-
家族に人気の設備

-
夫婦に人気の設備

-
三世代で人気の設備

-
外で子どもと遊びたい

-
身だしなみに気をつかいたい

-
雨の日でも洗濯したい

-
洋室で暮らしたい

-
オークション・通販が好き

-
ガーデニングが好き

契約条件
ペットの飼育もご相談ください。
セキュリティ
この物件の建物には、オートロックや防犯カメラや宅配ボックスが設置されており、来客時には居室内のテレビモニターにて訪問者の顔を確認することができます。
室内設備
システムキッチンには、2つ以上のガスコンロが備え付けられています。 トイレは、温水洗浄便座機能付きになります。 女性に嬉しい設備の独立した洗面化粧台があります。 洗濯に便利な設備として、室内洗濯機置場があります。浴室乾燥機も設置されているので、梅雨時の生乾き臭も比較的防ぐことができます。
居室状況
お部屋の床は、フローリングとなっており、エアコンが設置されています。 インターネットも無料で入居後すぐ生活が始められます。 収納スペースとして、基本的な居室にクローゼットを設置、玄関にはシューズボックスがあります。
建物設備共用部分
居室外の専有スペースとして、洗濯物を干すなどの用途として利用できるバルコニーがあります。 建物の共用スペースに、日々の出入に便利なエレベーターや、いざという時の防犯カメラや、急な外出や不在がちのご家庭の荷物受け取りに便利な宅配ボックスが設置されています。 駐輪場、バイク置き場が利用できます。
周辺施設
この物件の学区は、新宿小学校区・蒲田中学校区です。
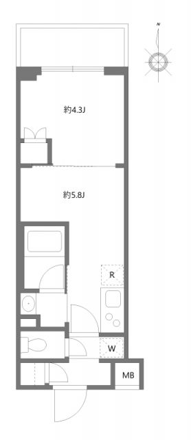
ハーモニーレジデンス蒲田アートヴィラ 0104号室の間取り
間取り:1DK
間取詳細:1DK(DK0)
専有面積:25.51㎡
方位:北
部屋位置:その他
ハーモニーレジデンス蒲田アートヴィラ 0104号室の設備
キッチン
システムキッチン
ガスコンロ
ガスコンロ二口以上
バス・トイレ
バス・トイレ別
浴室乾燥機
温水洗浄便座
独立洗面台
玄関
TVモニタ付インターホン
オートロック
宅配ボックス
収納
クローゼット
シューズボックス
バルコニー
バルコニー
ルーフバルコニー
室内設備
エアコン
フローリング
室内洗濯機置場
デザイナーズ
位置・立地
1階
インフラ
インターネット可
CATV
プロパンガス
建物設備
エレベーター
防犯カメラ
駐輪場
バイク置き場
分譲賃貸
入居条件
ペット可・相談
ライフステージ
一人暮らしに人気の設備
カップルに人気の設備
家族に人気の設備
夫婦に人気の設備
三世代で人気の設備
こだわり
外で子どもと遊びたい
身だしなみに気をつかいたい
雨の日でも洗濯したい
洋室で暮らしたい
趣味
オークション・通販が好き
ガーデニングが好き
お得な条件
インターネット無料
ハーモニーレジデンス蒲田アートヴィラ 0104号室の賃貸契約情報
毎月支払う |
家賃13.5万円/月共益費12,000円/月 |
|---|---|
初期費用 |
敷金1ヶ月 (13.5万円)礼金2ヶ月 (27万円)保証金-敷引き償却金- |
更新料 |
202,500円 |
鍵交換費用 |
38,500円 |
室内清掃費用 |
- |
プレミアデスク2年(税込) |
22,000円 |
駐車場料金 |
- |
損保・ |
借家賠付きの火災保険にご加入いただきます。 |
保証会社 |
加入要 保証会社利用料:【シノケン】月額総賃料の50%~(最低保証料5万円)/次年度以降15000円~※引落とし手数料660円(税込)※別紙申込書有。弊社HP上の申込書タブより申込書をダウンロードし記入の上アップロード下 |
契約期間 |
2年 |
入居可能日 |
相談 |
フリーレント期間 |
- |
取引形態 |
一般媒介 |
備考 |
- |
ハーモニーレジデンス蒲田アートヴィラ 0104号室の建物情報
建物名称 |
ハーモニーレジデンス蒲田アートヴィラ |
|---|---|
最寄駅 |
|
所在地 |
東京都大田区蒲田本町 |
階層 |
1階部分(地上5階建) |
構造 |
RC |
築年数 |
2024年1月(築3年) |
駐車場 |
- |
小学校学区 |
新宿小学校 |
中学校学区 |
蒲田中学校 |
- 学区データについて
- ※学区データは必ずしも正確とは限りません。詳細に関しては最寄店舗または各自治体の教育委員会に必ずご確認ください。
無料この物件に問い合わせ
- ハーモニーレジデンス蒲田アートヴィラ 0104号室

-
13.5万円
(共益費
12,000円)
- 敷
- 1ヶ月
- 礼
- 2ヶ月
- 保
- -
- 償
- -
ハーモニーレジデンス蒲田アートヴィラ 0104号室の物件のお問い合わせ先・取り扱い店舗
ハウスコム 蒲田店
- アクセス
-
京浜東北・根岸線「蒲田駅」西口徒歩1分
- 住所
- 〒144-0051 東京都大田区西蒲田7丁目5−8 コパンビル 1階
- 営業時間
- 10:00~18:00
- 定休日
- なし
- 営業エリア
- 大田区、品川区、川崎市
- 取引態様
- 賃貸仲介業























