四つ木の完工年月(2026年4月)築の賃貸マンション ***号室(3階/1K)の賃貸物件(賃貸マンション)
東京都葛飾区にある四つ木の完工年月(2026年4月)築の賃貸マンション ***号室は浴室乾燥機、TVモニタ付インターホン、オートロック、エアコン、インターネット可などが特徴です。最寄り駅の京成押上線四ツ木駅から徒歩8分です。四つ木の完工年月(2026年4月)築の賃貸マンション ***号室の詳細はハウスコム 青砥店までお気軽にお問い合わせください!
情報更新日:
次回更新予定日:
※次回更新予定日について:お店側では順次空室確認を行っていますが、次回更新予定日までに空室確認が行えない場合には、この物件情報は自動的に削除されます。
四つ木の完工年月(2026年4月)築の賃貸マンション ***号室の賃貸物件部屋概要
家賃 |
9.2万円
初期費用を |
|---|---|
共益費 |
12,000円
入居可能時期 |
敷金/礼金 |
- / - |
保証金/ |
1ヶ月 / - |
最寄駅 |
|
所在地 |
東京都葛飾区四つ木 |
部屋番号 |
***号室 |
間取り |
1K(洋7.2) |
専有面積 |
25.54㎡ |
築年数 |
新築 |
階数 |
3階部分(地上7階建) |
方位・位置 |
西 / 角部屋 |
物件種別 |
賃貸マンション |
構造 |
RC |
駐車場 |
- |
小学校学区 |
よつぎ小学校 |
中学校学区 |
四ツ木中学校 |
他の空き部屋 |
***号室 ***号室 ***号室 ***号室 ***号室 ***号室 ***号室 ***号室 ***号室 ***号室 |
- 学区データについて
- ※学区データは必ずしも正確とは限りません。詳細に関しては最寄店舗または各自治体の教育委員会に必ずご確認ください。
四つ木の完工年月(2026年4月)築の賃貸マンション ***号室の特徴
契約条件
ペットの飼育もご相談ください。 敷金と礼金が無料なため、初期費用が比較的安くなる傾向にあります。
セキュリティ
この物件の建物には、オートロックが設置されており、来客時には居室内のテレビモニターにて訪問者の顔を確認することができます。
室内設備
システムキッチンには、2つ以上のガスコンロが備え付けられています。 女性に嬉しい設備の独立した洗面化粧台があります。 洗濯に便利な設備として、室内洗濯機置場があります。浴室乾燥機も設置されているので、梅雨時の生乾き臭も比較的防ぐことができます。
居室状況
お部屋の床は、フローリングとなっており、エアコンが設置されています。 インターネットも無料で入居後すぐ生活が始められます。 収納スペースとして、基本的な居室にクローゼットがあります。
建物設備共用部分
建物の共用スペースに、居室内を常に清潔に保てる24時間利用可能なゴミ捨て置き場が設置されています。 駐輪場が利用できます。
周辺施設
この物件の学区は、よつぎ小学校区・四ツ木中学校区です。
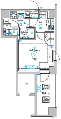
四つ木の完工年月(2026年4月)築の賃貸マンション ***号室の間取り
間取り:1K
間取詳細:1K(洋7.2)
専有面積:25.54㎡
方位:西
部屋位置:角部屋
四つ木の完工年月(2026年4月)築の賃貸マンション ***号室の設備
キッチン
システムキッチン
ガスコンロ
ガスコンロ二口以上
バス・トイレ
バス・トイレ別
浴室乾燥機
独立洗面台
玄関
TVモニタ付インターホン
オートロック
収納
クローゼット
室内設備
エアコン
フローリング
室内洗濯機置場
デザイナーズ
位置・立地
2階以上
角部屋
インフラ
インターネット可
都市ガス
建物設備
24時間ゴミ出しOK
駐輪場
分譲賃貸
入居条件
ペット可・相談
オンライン相談可
オンライン内見可
ライフステージ
一人暮らしに人気の設備
カップルに人気の設備
家族に人気の設備
夫婦に人気の設備
三世代で人気の設備
こだわり
身だしなみに気をつかいたい
雨の日でも洗濯したい
洋室で暮らしたい
お得な条件
インターネット無料
四つ木の完工年月(2026年4月)築の賃貸マンション ***号室の賃貸契約情報
毎月支払う |
家賃9.2万円/月共益費12,000円/月 |
|---|---|
初期費用 |
敷金-礼金-保証金1ヶ月敷引き償却金- |
更新料 |
138,000円 |
鍵交換費用 |
24,200円 |
室内清掃費用 |
- |
駐車場料金 |
- |
損保・ |
借家賠付きの火災保険にご加入いただきます。 |
保証会社 |
加入要 保証会社:エポスカード 保証会社利用料:初回:月額総賃料の50% 月額:月額総賃料の1.5% |
契約期間 |
2年 |
入居可能日 |
2026年04月 |
フリーレント期間 |
- |
取引形態 |
一般媒介 |
備考 |
小型犬2頭可能。 駐輪場:有料 ペット飼育時敷金積み増し料金(償却)有り |
四つ木の完工年月(2026年4月)築の賃貸マンション ***号室の建物情報
建物名称 |
四つ木の完工年月(2026年4月)築の賃貸マンション |
|---|---|
最寄駅 |
|
所在地 |
東京都葛飾区四つ木 |
階層 |
3階部分(地上7階建) |
構造 |
RC |
築年数 |
新築 |
駐車場 |
- |
小学校学区 |
よつぎ小学校 |
中学校学区 |
四ツ木中学校 |
- 学区データについて
- ※学区データは必ずしも正確とは限りません。詳細に関しては最寄店舗または各自治体の教育委員会に必ずご確認ください。
無料この物件に問い合わせ
- 四つ木の完工年月(2026年4月)築の賃貸マンション ***号室

-
9.2万円
(共益費
12,000円)
- 敷
- -
- 礼
- -
- 保
- 1ヶ月
- 償
- -
四つ木の完工年月(2026年4月)築の賃貸マンション ***号室の物件のお問い合わせ先・取り扱い店舗
ハウスコム 青砥店
- アクセス
-
京成本線「青砥駅」改札を出て左折徒歩1分
- 住所
- 〒125-0062 東京都葛飾区青戸2丁目2−20 メゾンノア 1階
- 営業時間
- 10:00~18:00
- 定休日
- なし
- 営業エリア
- ◆葛飾区◆墨田区◆江戸川区◆足立区◆松戸市◆
- 取引態様
- 賃貸仲介業












