ZOOM信濃町 701号室(7階/1LDK)の賃貸物件(賃貸マンション)
東京都新宿区にあるZOOM信濃町 701号室はバルコニー、ルーフバルコニー、デザイナーズ、防犯カメラ、2人入居可などが特徴です。最寄り駅の東京メトロ 丸ノ内線四谷三丁目駅から徒歩5分です。ZOOM信濃町 701号室の詳細はハウスコム 池袋西口店までお気軽にお問い合わせください!
情報更新日:
次回更新予定日:
※次回更新予定日について:お店側では順次空室確認を行っていますが、次回更新予定日までに空室確認が行えない場合には、この物件情報は自動的に削除されます。
ZOOM信濃町 701号室の賃貸物件部屋概要
家賃 |
25.9万円
初期費用を |
|---|---|
共益費 |
20,000円
入居可能時期 |
敷金/礼金 |
1ヶ月 / 1ヶ月 |
保証金/ |
- / - |
最寄駅 |
|
所在地 |
東京都新宿区左門町 |
部屋番号 |
701号室 |
間取り |
1LDK(洋3.2・LDK10.9) |
専有面積 |
43.34㎡ |
築年数 |
新築 |
階数 |
7階部分(地上13階建) |
方位・位置 |
東 / 角部屋 |
物件種別 |
賃貸マンション |
構造 |
RC |
駐車場 |
41,800円 |
小学校学区 |
四谷第六小学校 |
中学校学区 |
四谷中学校 |
他の空き部屋 |
1001号室 1002号室 1003号室 1005号室 102号室 103号室 1101号室 1102号室 1103号室 1104号室 1105号室 1201号室 1202号室 1205号室 1301号室 1303号室 201号室 202号室 203号室 206号室 208号室 210号室 301号室 301号室 302号室 303号室 308号室 310号室 401号室 402号室 403号室 405号室 406号室 501号室 601号室 703号室 801号室 802号室 803号室 805号室 901号室 903号室 905号室 |
- 学区データについて
- ※学区データは必ずしも正確とは限りません。詳細に関しては最寄店舗または各自治体の教育委員会に必ずご確認ください。
ZOOM信濃町 701号室の特徴
-
一人暮らしに人気の設備

-
カップルに人気の設備

-
家族に人気の設備

-
夫婦に人気の設備

-
三世代で人気の設備

-
地震対策された建物

-
セキュリティ対策重視

-
タイパ重視

-
外で子どもと遊びたい

-
身だしなみに気をつかいたい

-
雨の日でも洗濯したい

-
洋室で暮らしたい

-
料理が好き

-
服やおしゃれが好き

-
推し活グッズを飾りたい

-
オークション・通販が好き

-
ガーデニングが好き

契約条件
この物件は、外国籍の方もご相談の上、2人入居もご契約できます。 ペットの飼育もご相談ください。 また、ご契約時に保証人は不要です。
セキュリティ
この物件の建物には、オートロックや防犯カメラや宅配ボックスが設置されており、来客時には居室内のテレビモニターにて訪問者の顔を確認することができます。
室内設備
システムキッチンには、ガスコンロが備え付けられています。 お風呂とトイレは別です。お風呂には、追い焚き機能が備わっています。 トイレは、温水洗浄便座機能付きになります。 女性に嬉しい設備のシャワーの付いている洗面化粧台があります。 洗濯に便利な設備として、室内洗濯機置場があります。浴室乾燥機も設置されているので、梅雨時の生乾き臭も比較的防ぐことができます。
居室状況
お部屋の床は、フローリングとなっており、エアコンが設置されています。 インターネットも無料で入居後すぐ生活が始められます。 収納スペースとして、基本的な居室にクローゼットを設置、通常よりも収納力の高いウォークインクローゼット、玄関にはシューズボックスがあります。
建物設備共用部分
居室外の専有スペースとして、洗濯物を干すなどの用途として利用できるバルコニーがあります。 建物の共用スペースに、日々の出入に便利なエレベーターや、いざという時の防犯カメラや、急な外出や不在がちのご家庭の荷物受け取りに便利な宅配ボックスや、居室内を常に清潔に保てる24時間利用可能なゴミ捨て置き場が設置されています。 駐輪場、バイク置き場が利用できます。 この物件の建物は、建物全体をしっかり固定することで、地震の揺れに耐えるように設計された耐震構造の建築物です。
周辺施設
この物件の学区は、四谷第六小学校区・四谷中学校区です。
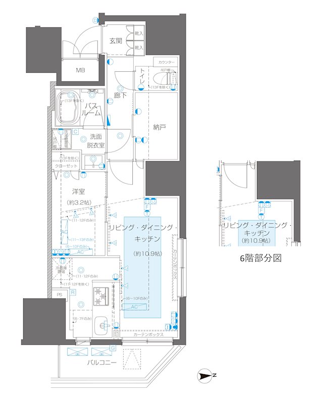
ZOOM信濃町 701号室の間取り
間取り:1LDK
間取詳細:1LDK(洋3.2・LDK10.9)
専有面積:43.34㎡
方位:東
部屋位置:角部屋
ZOOM信濃町 701号室の設備
キッチン
システムキッチン
カウンターキッチン
ガスコンロ
バス・トイレ
バス・トイレ別
追い焚き
浴室乾燥機
温水洗浄便座
独立洗面台
シャワー付洗面化粧台
玄関
TVモニタ付インターホン
オートロック
宅配ボックス
収納
クローゼット
ウォークインクローゼット
シューズボックス
バルコニー
バルコニー
ルーフバルコニー
室内設備
エアコン
フローリング
室内洗濯機置場
デザイナーズ
位置・立地
2階以上
角部屋
インフラ
インターネット可
都市ガス
建物設備
エレベーター
防犯カメラ
24時間ゴミ出しOK
駐輪場
バイク置き場
分譲賃貸
耐震構造
入居条件
ペット可・相談
2人入居可
外国人可・相談
オンライン相談可
オンライン内見可
保証人不要
即入居可
ライフステージ
一人暮らしに人気の設備
カップルに人気の設備
家族に人気の設備
夫婦に人気の設備
三世代で人気の設備
トレンド
地震対策された建物
こだわり
セキュリティ対策重視
タイパ重視
外で子どもと遊びたい
身だしなみに気をつかいたい
雨の日でも洗濯したい
洋室で暮らしたい
趣味
料理が好き
服やおしゃれが好き
推し活グッズを飾りたい
オークション・通販が好き
ガーデニングが好き
お得な条件
インターネット無料
ZOOM信濃町 701号室の賃貸契約情報
毎月支払う |
家賃25.9万円/月共益費20,000円/月 |
|---|---|
初期費用 |
敷金1ヶ月 (25.9万円)礼金1ヶ月 (25.9万円)保証金-敷引き償却金- |
更新料 |
259,000円 |
鍵交換費用 |
- |
室内清掃費用 |
- |
駐車場料金 |
41,800円 |
損保・ |
借家賠付きの火災保険にご加入いただきます。 |
保証会社 |
加入要 保証会社利用料:初回保証料:総賃料等の50% 月額保証料:総賃料等の1% |
契約期間 |
2年 |
入居可能日 |
即入居可 |
フリーレント期間 |
- |
取引形態 |
一般媒介 |
備考 |
・短期違約金有:1年未満解約する場合、総賃料等の1ヶ月分。 ・ペット飼育相談可能:飼育時:敷金1ヶ月追加(別途飼育細則参照・要申請書)または体長50cm未満、原則1匹迄(ペット飼育の場合、退去時ルームクリーニング及び消臭費用がかかります) ・一部法人保証会社未加入時:敷金・礼金を各1ヶ月追加 ・バイク:要空き確認・2年分一括払いとなります。 バイク置き場:有料 |
ZOOM信濃町 701号室の建物情報
建物名称 |
ZOOM信濃町 |
|---|---|
最寄駅 |
|
所在地 |
東京都新宿区左門町 |
階層 |
7階部分(地上13階建) |
構造 |
RC |
築年数 |
新築 |
駐車場 |
41,800円 |
小学校学区 |
四谷第六小学校 |
中学校学区 |
四谷中学校 |
- 学区データについて
- ※学区データは必ずしも正確とは限りません。詳細に関しては最寄店舗または各自治体の教育委員会に必ずご確認ください。
無料この物件に問い合わせ
- ZOOM信濃町 701号室

-
25.9万円
(共益費
20,000円)
- 敷
- 1ヶ月
- 礼
- 1ヶ月
- 保
- -
- 償
- -
ZOOM信濃町 701号室の物件のお問い合わせ先・取り扱い店舗
ハウスコム 池袋西口店
- アクセス
-
山手線「池袋駅」西口徒歩1分
東京メトロ 丸ノ内線「池袋駅」D11出口徒歩1分
- 住所
- 〒171-0021 東京都豊島区西池袋1丁目19−6 松長ビル 2階
- 営業時間
- 10:00~18:00
- 定休日
- なし
- 営業エリア
- 豊島区 板橋区 新宿区 練馬区 文京区
- 取引態様
- 賃貸仲介業




















