パレ・ロワイヤル南青山 502号室(5階/2LDK)の賃貸物件(賃貸マンション)
東京都港区にあるパレ・ロワイヤル南青山 502号室は独立洗面台、ルーフバルコニー、2階以上、オール電化、エレベーターなどが特徴です。最寄り駅の東京メトロ 銀座線表参道駅から徒歩4分です。パレ・ロワイヤル南青山 502号室の詳細はハウスコム 事業戦略室までお気軽にお問い合わせください!
情報更新日:
次回更新予定日:
※次回更新予定日について:お店側では順次空室確認を行っていますが、次回更新予定日までに空室確認が行えない場合には、この物件情報は自動的に削除されます。
パレ・ロワイヤル南青山 502号室の賃貸物件部屋概要
家賃 |
48万円
初期費用を |
|---|---|
共益費 |
25,000円
入居可能時期 |
敷金/礼金 |
960,000円 / 480,000円 |
保証金/ |
- / - |
最寄駅 |
|
所在地 |
東京都港区南青山 |
部屋番号 |
502号室 |
間取り |
2LDK(洋8・洋6・LDK17) |
専有面積 |
75.95㎡ |
築年数 |
1977年12月(築49年) |
階数 |
5階部分(地上5階建) |
方位・位置 |
南 / その他 |
物件種別 |
賃貸マンション |
構造 |
RC |
駐車場 |
無 |
小学校学区 |
青南小学校 |
中学校学区 |
青山中学校 |
他の空き部屋 |
ー |
- 学区データについて
- ※学区データは必ずしも正確とは限りません。詳細に関しては最寄店舗または各自治体の教育委員会に必ずご確認ください。
パレ・ロワイヤル南青山 502号室の特徴
セキュリティ
この物件の建物には、オートロックや防犯カメラや宅配ボックスが設置されており、来客時には居室内のテレビモニターにて訪問者の顔を確認することができます。
室内設備
システムキッチンには、IHコンロが備え付けられています。 トイレは、温水洗浄便座機能付きになります。 女性に嬉しい設備の独立した洗面化粧台があります。
居室状況
エアコンが設置されています。 収納スペースとして、玄関にはシューズボックスがあります。
建物設備共用部分
居室外の専有スペースとして、洗濯物を干すなどの用途として利用できるバルコニーがあります。 建物の共用スペースに、日々の出入に便利なエレベーターや、いざという時の防犯カメラや、急な外出や不在がちのご家庭の荷物受け取りに便利な宅配ボックスが設置されています。
周辺施設
この物件の学区は、青南小学校区・青山中学校区です。
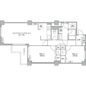
パレ・ロワイヤル南青山 502号室の間取り
間取り:2LDK
間取詳細:2LDK(洋8・洋6・LDK17)
専有面積:75.95㎡
方位:南
部屋位置:その他
パレ・ロワイヤル南青山 502号室の設備
キッチン
システムキッチン
IHコンロ
バス・トイレ
バス・トイレ別
温水洗浄便座
独立洗面台
玄関
TVモニタ付インターホン
オートロック
宅配ボックス
収納
シューズボックス
バルコニー
バルコニー
ルーフバルコニー
室内設備
エアコン
位置・立地
2階以上
最上階
南向き
インフラ
インターネット可
オール電化
建物設備
エレベーター
防犯カメラ
ライフステージ
一人暮らしに人気の設備
カップルに人気の設備
家族に人気の設備
夫婦に人気の設備
三世代で人気の設備
こだわり
セキュリティ対策重視
外で子どもと遊びたい
趣味
ガーデニングが好き
パレ・ロワイヤル南青山 502号室の賃貸契約情報
毎月支払う |
家賃48万円/月共益費25,000円/月 |
|---|---|
初期費用 |
敷金960,000円礼金480,000円保証金-敷引き償却金- |
更新料 |
480,000円 |
鍵交換費用 |
- |
室内清掃費用 |
- |
鍵交換代 |
37,400円 |
アクト安心ライフ24 |
16,500円 |
駐車場料金 |
無 |
損保・ |
借家賠付きの火災保険にご加入いただきます。 |
保証会社 |
加入要 保証会社利用料:エポスカード 申込時必要書類・初回・月次・条件等の詳細につきましては、申し込み前にご確認ください。 |
契約期間 |
定期借家 2年 |
入居可能日 |
2026年04月 |
フリーレント期間 |
- |
取引形態 |
一般媒介 |
備考 |
- |
パレ・ロワイヤル南青山 502号室の建物情報
建物名称 |
パレ・ロワイヤル南青山 |
|---|---|
最寄駅 |
|
所在地 |
東京都港区南青山 |
階層 |
5階部分(地上5階建) |
構造 |
RC |
築年数 |
1977年12月(築49年) |
駐車場 |
無 |
小学校学区 |
青南小学校 |
中学校学区 |
青山中学校 |
- 学区データについて
- ※学区データは必ずしも正確とは限りません。詳細に関しては最寄店舗または各自治体の教育委員会に必ずご確認ください。
無料この物件に問い合わせ
- パレ・ロワイヤル南青山 502号室

-
48万円
(共益費
25,000円)
- 敷
- 960,000円
- 礼
- 480,000円
- 保
- -
- 償
- -
パレ・ロワイヤル南青山 502号室の物件のお問い合わせ先・取り扱い店舗
ハウスコム 事業戦略室
- アクセス
-
山手線「品川駅」港南口徒歩3分
- 住所
- 〒108-0075 東京都港区港南2-16-1 品川イーストワンタワー9階
- 営業時間
- 10:00~17:00
- 定休日
- 土曜日・日曜日(祝日定休)
- 営業エリア
- 北区、荒川区、豊島区、文京区、台東区、中央区、新宿区、千代田区、渋谷区、港区、品川区
- 取引態様
- 賃貸仲介業


















