クレセントコート川崎 309号室(3階/1R)の賃貸物件(賃貸マンション)
神奈川県川崎市麻生区にあるクレセントコート川崎 309号室は宅配ボックス、フローリング、南向き、インターネット可、CSなどが特徴です。最寄り駅の小田急小田原線読売ランド前駅から徒歩7分です。クレセントコート川崎 309号室の詳細はハウスコム 向ヶ丘遊園店までお気軽にお問い合わせください!
情報更新日:
次回更新予定日:
※次回更新予定日について:お店側では順次空室確認を行っていますが、次回更新予定日までに空室確認が行えない場合には、この物件情報は自動的に削除されます。
クレセントコート川崎 309号室の賃貸物件部屋概要
家賃 |
5.3万円
初期費用を |
|---|---|
共益費 |
8,000円
入居可能時期 |
敷金/礼金 |
- / - |
保証金/ |
- / - |
最寄駅 |
|
所在地 |
神奈川県川崎市麻生区高石 |
部屋番号 |
309号室 |
間取り |
1R(洋0) |
専有面積 |
24.27㎡ |
築年数 |
1991年1月(築36年) |
階数 |
3階部分(地上4階地下1階建) |
方位・位置 |
南 / 角部屋 |
物件種別 |
賃貸マンション |
構造 |
RC |
駐車場 |
無 |
小学校学区 |
西生田小学校 |
中学校学区 |
西生田中学校 |
他の空き部屋 |
332号室 |
- 学区データについて
- ※学区データは必ずしも正確とは限りません。詳細に関しては最寄店舗または各自治体の教育委員会に必ずご確認ください。
クレセントコート川崎 309号室の特徴
契約条件
この物件は、2人入居もご契約できます。 敷金と礼金が無料なため、初期費用が比較的安くなる傾向にあります。
セキュリティ
この物件の建物には、オートロックや防犯カメラや宅配ボックスが設置されております。
室内設備
IHコンロが備え付けられています。
居室状況
お部屋の床は、フローリングとなっており、エアコンが設置されています。 インターネットも無料で入居後すぐ生活が始められます。 収納スペースとして、基本的な居室にクローゼットがあります。
建物設備共用部分
居室外の専有スペースとして、洗濯物を干すなどの用途として利用できるバルコニーがあります。 建物の共用スペースに、日々の出入に便利なエレベーターや、いざという時の防犯カメラや、急な外出や不在がちのご家庭の荷物受け取りに便利な宅配ボックスが設置されています。
周辺施設
この物件の学区は、西生田小学校区・西生田中学校区です。
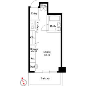
クレセントコート川崎 309号室の間取り
間取り:1R
間取詳細:1R(洋0)
専有面積:24.27㎡
方位:南
部屋位置:角部屋
クレセントコート川崎 309号室の設備
キッチン
IHコンロ
玄関
オートロック
宅配ボックス
収納
クローゼット
バルコニー
バルコニー
ルーフバルコニー
室内設備
エアコン
フローリング
位置・立地
2階以上
角部屋
南向き
インフラ
インターネット可
BS
CS
都市ガス
建物設備
エレベーター
防犯カメラ
入居条件
2人入居可
即入居可
ライフステージ
一人暮らしに人気の設備
家族に人気の設備
夫婦に人気の設備
三世代で人気の設備
こだわり
外で子どもと遊びたい
洋室で暮らしたい
寝るためだけの部屋
趣味
オークション・通販が好き
ガーデニングが好き
お得な条件
フリーレント
インターネット無料
クレセントコート川崎 309号室の賃貸契約情報
毎月支払う |
家賃5.3万円/月共益費8,000円/月 |
|---|---|
初期費用 |
敷金-礼金-保証金-敷引き償却金- |
更新料 |
79,500円 |
鍵交換費用 |
- |
室内清掃費用 |
- |
駐車場料金 |
無 |
損保・ |
借家賠付きの火災保険にご加入いただきます。 |
保証会社 |
加入要 保証会社利用料:エムぞう君(C) 初回保証料55%~ ※最低保証料55,000円 年間:11,000円 ※年間 |
契約期間 |
2年 |
入居可能日 |
即入居可 |
フリーレント期間 |
1ヶ月 |
取引形態 |
一般媒介 |
備考 |
- |
クレセントコート川崎 309号室の建物情報
建物名称 |
クレセントコート川崎 |
|---|---|
最寄駅 |
|
所在地 |
神奈川県川崎市麻生区高石 |
階層 |
3階部分(地上4階地下1階建) |
構造 |
RC |
築年数 |
1991年1月(築36年) |
駐車場 |
無 |
小学校学区 |
西生田小学校 |
中学校学区 |
西生田中学校 |
- 学区データについて
- ※学区データは必ずしも正確とは限りません。詳細に関しては最寄店舗または各自治体の教育委員会に必ずご確認ください。
無料この物件に問い合わせ
- クレセントコート川崎 309号室

-
5.3万円
(共益費
8,000円)
- 敷
- -
- 礼
- -
- 保
- -
- 償
- -
クレセントコート川崎 309号室の物件のお問い合わせ先・取り扱い店舗
ハウスコム 向ヶ丘遊園店
- アクセス
-
小田急小田原線「向ヶ丘遊園駅」南口徒歩1分
- 住所
- 〒214-0014 神奈川県川崎市多摩区登戸2735 中和ビル 1階
- 営業時間
- 10:00~18:00
- 定休日
- なし
- 営業エリア
- 神奈川県川崎市多摩区,神奈川県川崎市高津区,神奈川県川崎市麻生区,東京都世田谷区,東京都狛江市,東京都調布市,東京都町田市,東京都稲城市
- 取引態様
- 賃貸仲介業
























