エステムプラザ日本橋 404号室(1K)の賃貸物件(賃貸マンション)
東京都中央区にあるエステムプラザ日本橋 404号室はシステムキッチン、ガスコンロ、温水洗浄便座、オートロック、角部屋などが特徴です。最寄り駅の東京メトロ 半蔵門線水天宮前駅から徒歩3分です。エステムプラザ日本橋 404号室の詳細はハウスコム 事業戦略室までお気軽にお問い合わせください!
情報更新日:
次回更新予定日:
※次回更新予定日について:お店側では順次空室確認を行っていますが、次回更新予定日までに空室確認が行えない場合には、この物件情報は自動的に削除されます。
エステムプラザ日本橋 404号室の賃貸物件部屋概要
家賃 |
11.9万円
初期費用を |
|---|---|
共益費 |
10,000円
入居可能時期 |
敷金/礼金 |
- / 119,000円 |
保証金/ |
129,000円 / - |
最寄駅 |
|
所在地 |
東京都中央区日本橋蛎殻町 |
部屋番号 |
404号室 |
間取り |
1K |
専有面積 |
22.51㎡ |
築年数 |
2006年11月(築20年) |
階数 |
地上13階建 |
方位・位置 |
南東 / 角部屋 |
物件種別 |
賃貸マンション |
構造 |
RC |
駐車場 |
- |
小学校学区 |
有馬小学校 |
中学校学区 |
日本橋中学校 |
他の空き部屋 |
ー |
- 学区データについて
- ※学区データは必ずしも正確とは限りません。詳細に関しては最寄店舗または各自治体の教育委員会に必ずご確認ください。
エステムプラザ日本橋 404号室の特徴
契約条件
敷金が無料なため、初期費用が比較的安くなる傾向にあります。
セキュリティ
この物件の建物には、オートロックや防犯カメラや宅配ボックスが設置されており、来客時には居室内のテレビモニターにて訪問者の顔を確認することができます。
室内設備
システムキッチンには、2つ以上のガスコンロが備え付けられています。 トイレは、温水洗浄便座機能付きになります。 洗濯に便利な設備として、室内洗濯機置場があります。浴室乾燥機も設置されているので、梅雨時の生乾き臭も比較的防ぐことができます。
居室状況
お部屋の床は、フローリングとなっており、エアコンが設置されています。 収納スペースとして、玄関にはシューズボックスがあります。
建物設備共用部分
居室外の専有スペースとして、洗濯物を干すなどの用途として利用できるバルコニーがあります。 建物の共用スペースに、日々の出入に便利なエレベーターや、いざという時の防犯カメラや、急な外出や不在がちのご家庭の荷物受け取りに便利な宅配ボックスが設置されています。 駐輪場、バイク置き場が利用できます。
周辺施設
この物件の学区は、有馬小学校区・日本橋中学校区です。
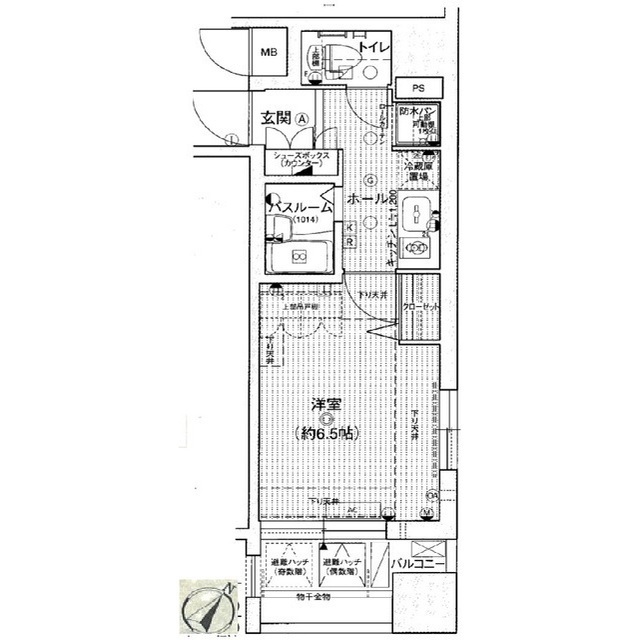
エステムプラザ日本橋 404号室の間取り
間取り:1K
間取詳細:1K
専有面積:22.51㎡
方位:南東
部屋位置:角部屋
エステムプラザ日本橋 404号室の設備
キッチン
システムキッチン
ガスコンロ
ガスコンロ二口以上
バス・トイレ
バス・トイレ別
浴室乾燥機
温水洗浄便座
玄関
TVモニタ付インターホン
オートロック
宅配ボックス
収納
シューズボックス
バルコニー
バルコニー
ルーフバルコニー
室内設備
エアコン
フローリング
室内洗濯機置場
位置・立地
角部屋
インフラ
インターネット可
都市ガス
建物設備
エレベーター
防犯カメラ
駐輪場
バイク置き場
分譲賃貸
ライフステージ
一人暮らしに人気の設備
カップルに人気の設備
家族に人気の設備
夫婦に人気の設備
三世代で人気の設備
こだわり
外で子どもと遊びたい
雨の日でも洗濯したい
洋室で暮らしたい
趣味
ガーデニングが好き
エステムプラザ日本橋 404号室の賃貸契約情報
毎月支払う |
家賃11.9万円/月共益費10,000円/月 |
|---|---|
初期費用 |
敷金-礼金119,000円保証金129,000円敷引き償却金- |
更新料 |
- |
鍵交換費用 |
- |
室内清掃費用 |
- |
駐車場料金 |
- |
損保・ |
借家賠付きの火災保険にご加入いただきます。 |
保証会社 |
|
契約期間 |
- |
入居可能日 |
2026年05月中旬 |
フリーレント期間 |
- |
取引形態 |
一般媒介 |
備考 |
- |
エステムプラザ日本橋 404号室の建物情報
建物名称 |
エステムプラザ日本橋 |
|---|---|
最寄駅 |
|
所在地 |
東京都中央区日本橋蛎殻町 |
階層 |
地上13階建 |
構造 |
RC |
築年数 |
2006年11月(築20年) |
駐車場 |
- |
小学校学区 |
有馬小学校 |
中学校学区 |
日本橋中学校 |
- 学区データについて
- ※学区データは必ずしも正確とは限りません。詳細に関しては最寄店舗または各自治体の教育委員会に必ずご確認ください。
無料この物件に問い合わせ
- エステムプラザ日本橋 404号室

-
11.9万円
(共益費
10,000円)
- 敷
- -
- 礼
- 119,000円
- 保
- 129,000円
- 償
- -
エステムプラザ日本橋 404号室の物件のお問い合わせ先・取り扱い店舗
ハウスコム 事業戦略室
- アクセス
-
山手線「品川駅」港南口徒歩3分
- 住所
- 〒108-0075 東京都港区港南2-16-1 品川イーストワンタワー9階
- 営業時間
- 10:00~17:00
- 定休日
- 土曜日・日曜日(祝日定休)
- 営業エリア
- 北区、荒川区、豊島区、文京区、台東区、中央区、新宿区、千代田区、渋谷区、港区、品川区
- 取引態様
- 賃貸仲介業











