神田三崎町の完工年月(2004年12月)築の賃貸マンション ***号室(2階/2LDK)の賃貸物件(賃貸マンション)
東京都千代田区にある神田三崎町の完工年月(2004年12月)築の賃貸マンション ***号室は浴室乾燥機、2階以上、CATV、CS、エレベーターなどが特徴です。最寄り駅の総武線・中央線各駅停車水道橋駅から徒歩5分です。神田三崎町の完工年月(2004年12月)築の賃貸マンション ***号室の詳細はハウスコム 事業戦略室までお気軽にお問い合わせください!
情報更新日:
次回更新予定日:
※次回更新予定日について:お店側では順次空室確認を行っていますが、次回更新予定日までに空室確認が行えない場合には、この物件情報は自動的に削除されます。
神田三崎町の完工年月(2004年12月)築の賃貸マンション ***号室の賃貸物件部屋概要
家賃 |
32.3万円
初期費用を |
|---|---|
共益費 |
25,000円
入居可能時期 |
敷金/礼金 |
1ヶ月 / 1ヶ月 |
保証金/ |
- / - |
最寄駅 |
|
所在地 |
東京都千代田区神田三崎町 |
部屋番号 |
***号室 |
間取り |
2LDK(洋6・洋5・他12.1・K3.1) |
専有面積 |
57.96㎡ |
築年数 |
2004年12月(築22年) |
階数 |
2階部分(地上14階地下1階建) |
方位・位置 |
南西 / その他 |
物件種別 |
賃貸マンション |
構造 |
SRC |
駐車場 |
- |
小学校学区 |
お茶の水小学校 |
中学校学区 |
神田一橋中学校 |
他の空き部屋 |
***号室 |
- 学区データについて
- ※学区データは必ずしも正確とは限りません。詳細に関しては最寄店舗または各自治体の教育委員会に必ずご確認ください。
神田三崎町の完工年月(2004年12月)築の賃貸マンション ***号室の特徴
契約条件
ペットの飼育もご相談ください。
セキュリティ
この物件の建物には、オートロックや防犯カメラや宅配ボックスが設置されており、来客時には居室内のテレビモニターにて訪問者の顔を確認することができます。
室内設備
システムキッチンが備え付けられています。 トイレは、温水洗浄便座機能付きになります。 女性に嬉しい設備の独立した洗面化粧台があります。 洗濯に便利な設備として、浴室乾燥機も設置されているので、梅雨時の生乾き臭も比較的防ぐことができます。
居室状況
お部屋の床は、フローリングとなっており、エアコンが設置されています。 収納スペースとして、基本的な居室にクローゼットがあります。
建物設備共用部分
建物の共用スペースに、日々の出入に便利なエレベーターや、いざという時の防犯カメラや、急な外出や不在がちのご家庭の荷物受け取りに便利な宅配ボックスが設置されています。 駐輪場が利用できます。
周辺施設
この物件の学区は、お茶の水小学校区・神田一橋中学校区です。
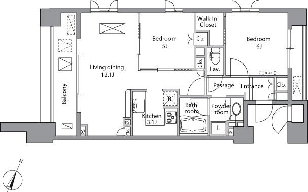
神田三崎町の完工年月(2004年12月)築の賃貸マンション ***号室の間取り
間取り:2LDK
間取詳細:2LDK(洋6・洋5・他12.1・K3.1)
専有面積:57.96㎡
方位:南西
部屋位置:その他
神田三崎町の完工年月(2004年12月)築の賃貸マンション ***号室の設備
キッチン
システムキッチン
バス・トイレ
バス・トイレ別
浴室乾燥機
温水洗浄便座
独立洗面台
玄関
TVモニタ付インターホン
オートロック
宅配ボックス
収納
クローゼット
室内設備
エアコン
フローリング
位置・立地
2階以上
インフラ
CATV
BS
CS
建物設備
エレベーター
防犯カメラ
駐輪場
入居条件
ペット可・相談
ライフステージ
一人暮らしに人気の設備
カップルに人気の設備
家族に人気の設備
夫婦に人気の設備
三世代で人気の設備
こだわり
セキュリティ対策重視
雨の日でも洗濯したい
洋室で暮らしたい
神田三崎町の完工年月(2004年12月)築の賃貸マンション ***号室の賃貸契約情報
毎月支払う |
家賃32.3万円/月共益費25,000円/月 |
|---|---|
初期費用 |
敷金1ヶ月 (32.3万円)礼金1ヶ月 (32.3万円)保証金-敷引き償却金- |
更新料 |
323,000円 |
鍵交換費用 |
22,000円 |
室内清掃費用 |
- |
入居者限定会員サービス/2年 |
11,000円 |
駐車場料金 |
- |
損保・ |
借家賠付きの火災保険にご加入いただきます。 |
保証会社 |
加入要 保証会社利用料:【IRS③】IUCレジデンシャルサポート |
契約期間 |
2年 |
入居可能日 |
2026年05月中旬 |
フリーレント期間 |
- |
取引形態 |
一般媒介 |
備考 |
- |
神田三崎町の完工年月(2004年12月)築の賃貸マンション ***号室の建物情報
建物名称 |
神田三崎町の完工年月(2004年12月)築の賃貸マンション |
|---|---|
最寄駅 |
|
所在地 |
東京都千代田区神田三崎町 |
階層 |
2階部分(地上14階地下1階建) |
構造 |
SRC |
築年数 |
2004年12月(築22年) |
駐車場 |
- |
小学校学区 |
お茶の水小学校 |
中学校学区 |
神田一橋中学校 |
- 学区データについて
- ※学区データは必ずしも正確とは限りません。詳細に関しては最寄店舗または各自治体の教育委員会に必ずご確認ください。
無料この物件に問い合わせ
- 神田三崎町の完工年月(2004年12月)築の賃貸マンション ***号室

-
32.3万円
(共益費
25,000円)
- 敷
- 1ヶ月
- 礼
- 1ヶ月
- 保
- -
- 償
- -
神田三崎町の完工年月(2004年12月)築の賃貸マンション ***号室の物件のお問い合わせ先・取り扱い店舗
ハウスコム 事業戦略室
- アクセス
-
山手線「品川駅」港南口徒歩3分
- 住所
- 〒108-0075 東京都港区港南2-16-1 品川イーストワンタワー9階
- 営業時間
- 10:00~17:00
- 定休日
- 土曜日・日曜日(祝日定休)
- 営業エリア
- 北区、荒川区、豊島区、文京区、台東区、中央区、新宿区、千代田区、渋谷区、港区、品川区
- 取引態様
- 賃貸仲介業
























