仲池上の完工年月(2025年1月)築の賃貸マンション ***号室(6階/3LDK)の賃貸物件(賃貸マンション)
東京都大田区にある仲池上の完工年月(2025年1月)築の賃貸マンション ***号室は独立洗面台、ルーフバルコニー、角部屋、インターネット可、防犯カメラなどが特徴です。最寄り駅の都営浅草線西馬込駅から徒歩12分です。仲池上の完工年月(2025年1月)築の賃貸マンション ***号室の詳細はハウスコム 大岡山店までお気軽にお問い合わせください!
情報更新日:
次回更新予定日:
※次回更新予定日について:お店側では順次空室確認を行っていますが、次回更新予定日までに空室確認が行えない場合には、この物件情報は自動的に削除されます。
仲池上の完工年月(2025年1月)築の賃貸マンション ***号室の賃貸物件部屋概要
家賃 |
23.5万円
初期費用を |
|---|---|
共益費 |
20,000円
入居可能時期 |
敷金/礼金 |
1ヶ月 / 1ヶ月 |
保証金/ |
- / - |
最寄駅 |
|
所在地 |
東京都大田区仲池上 |
部屋番号 |
***号室 |
間取り |
3LDK(LDK11.4・洋5・洋4.1・洋3) |
専有面積 |
50.09㎡ |
築年数 |
2025年1月(築2年) |
階数 |
6階部分(地上8階建) |
方位・位置 |
東 / 角部屋 |
物件種別 |
賃貸マンション |
構造 |
RC |
駐車場 |
- |
小学校学区 |
池雪小学校 |
中学校学区 |
大森第十中学校 |
他の空き部屋 |
ー |
- 学区データについて
- ※学区データは必ずしも正確とは限りません。詳細に関しては最寄店舗または各自治体の教育委員会に必ずご確認ください。
仲池上の完工年月(2025年1月)築の賃貸マンション ***号室の特徴
-
一人暮らしに人気の設備

-
カップルに人気の設備

-
家族に人気の設備

-
夫婦に人気の設備

-
三世代で人気の設備

-
セキュリティ対策重視

-
外で子どもと遊びたい

-
雨の日でも洗濯したい

-
料理が好き

-
推し活グッズを飾りたい

-
ガーデニングが好き

契約条件
この物件は、2人入居もご契約できます。 ペットの飼育もご相談ください。
セキュリティ
この物件の建物には、オートロックや防犯カメラや宅配ボックスが設置されており、来客時には居室内のテレビモニターにて訪問者の顔を確認することができます。
室内設備
システムキッチンが備え付けられています。 トイレは、温水洗浄便座機能付きになります。 女性に嬉しい設備の独立した洗面化粧台があります。 洗濯に便利な設備として、室内洗濯機置場があります。
居室状況
エアコンが設置されています。 収納スペースとして、玄関にはシューズボックスがあります。
建物設備共用部分
居室外の専有スペースとして、洗濯物を干すなどの用途として利用できるバルコニーがあります。 建物の共用スペースに、日々の出入に便利なエレベーターや、いざという時の防犯カメラや、急な外出や不在がちのご家庭の荷物受け取りに便利な宅配ボックスや、居室内を常に清潔に保てる24時間利用可能なゴミ捨て置き場が設置されています。 駐輪場、バイク置き場が利用できます。
周辺施設
この物件の学区は、池雪小学校区・大森第十中学校区です。
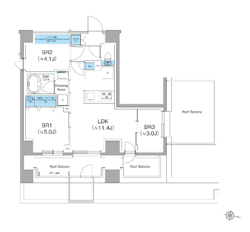
仲池上の完工年月(2025年1月)築の賃貸マンション ***号室の間取り
間取り:3LDK
間取詳細:3LDK(LDK11.4・洋5・洋4.1・洋3)
専有面積:50.09㎡
方位:東
部屋位置:角部屋
仲池上の完工年月(2025年1月)築の賃貸マンション ***号室の設備
キッチン
システムキッチン
カウンターキッチン
バス・トイレ
バス・トイレ別
温水洗浄便座
独立洗面台
玄関
TVモニタ付インターホン
オートロック
宅配ボックス
収納
シューズボックス
バルコニー
バルコニー
ルーフバルコニー
室内設備
エアコン
室内洗濯機置場
位置・立地
2階以上
角部屋
インフラ
インターネット可
建物設備
エレベーター
防犯カメラ
24時間ゴミ出しOK
駐輪場
バイク置き場
入居条件
ペット可・相談
2人入居可
オンライン相談可
オンライン内見可
ライフステージ
一人暮らしに人気の設備
カップルに人気の設備
家族に人気の設備
夫婦に人気の設備
三世代で人気の設備
こだわり
セキュリティ対策重視
外で子どもと遊びたい
雨の日でも洗濯したい
趣味
料理が好き
推し活グッズを飾りたい
ガーデニングが好き
仲池上の完工年月(2025年1月)築の賃貸マンション ***号室の賃貸契約情報
毎月支払う |
家賃23.5万円/月共益費20,000円/月 |
|---|---|
初期費用 |
敷金1ヶ月 (23.5万円)礼金1ヶ月 (23.5万円)保証金-敷引き償却金- |
更新料 |
235,000円 |
鍵交換費用 |
38,500円 |
室内清掃費用 |
- |
駐車場料金 |
- |
損保・ |
借家賠付きの火災保険にご加入いただきます。 |
保証会社 |
加入要 保証会社利用料:初回契約時:40%、更新時:10,000円、月額:1,000円、※保証会社の更新は1年毎となります |
契約期間 |
2年 |
入居可能日 |
相談 |
フリーレント期間 |
- |
取引形態 |
一般媒介 |
備考 |
1年未満解約時、賃料1ヶ月分の違約金有り ペットは小型犬又は猫どちらか2匹まで相談可(敷金1ヶ月積み増し)セカンドハウス利用不可 |
仲池上の完工年月(2025年1月)築の賃貸マンション ***号室の建物情報
建物名称 |
仲池上の完工年月(2025年1月)築の賃貸マンション |
|---|---|
最寄駅 |
|
所在地 |
東京都大田区仲池上 |
階層 |
6階部分(地上8階建) |
構造 |
RC |
築年数 |
2025年1月(築2年) |
駐車場 |
- |
小学校学区 |
池雪小学校 |
中学校学区 |
大森第十中学校 |
- 学区データについて
- ※学区データは必ずしも正確とは限りません。詳細に関しては最寄店舗または各自治体の教育委員会に必ずご確認ください。
無料この物件に問い合わせ
- 仲池上の完工年月(2025年1月)築の賃貸マンション ***号室

-
23.5万円
(共益費
20,000円)
- 敷
- 1ヶ月
- 礼
- 1ヶ月
- 保
- -
- 償
- -
仲池上の完工年月(2025年1月)築の賃貸マンション ***号室の物件のお問い合わせ先・取り扱い店舗
ハウスコム 大岡山店
- アクセス
-
東急目黒線「大岡山駅」徒歩1分
- 住所
- 〒145-0062 東京都大田区北千束1丁目51−6 サンルミナスA 1階
- 営業時間
- 10:00~18:00
- 定休日
- なし
- 営業エリア
- 大田区,目黒区,品川区,世田谷区
- 取引態様
- 賃貸仲介業





























