ブラウ菊川プレイス ***号室(5階/1LDK)の賃貸物件(賃貸マンション)
東京都墨田区にあるブラウ菊川プレイス ***号室はシステムキッチン、オートロック、エアコン、南向き、CSなどが特徴です。最寄り駅の都営新宿線菊川駅から徒歩5分です。ブラウ菊川プレイス ***号室の詳細はハウスコム 押上店までお気軽にお問い合わせください!
情報更新日:
次回更新予定日:
※次回更新予定日について:お店側では順次空室確認を行っていますが、次回更新予定日までに空室確認が行えない場合には、この物件情報は自動的に削除されます。
ブラウ菊川プレイス ***号室の賃貸物件部屋概要
家賃 |
18.5万円
初期費用を |
|---|---|
共益費 |
15,000円
入居可能時期 |
敷金/礼金 |
1ヶ月 / 1ヶ月 |
保証金/ |
- / - |
最寄駅 |
|
所在地 |
東京都墨田区立川 |
部屋番号 |
***号室 |
間取り |
1LDK |
専有面積 |
40.54㎡ |
築年数 |
2021年3月(築5年) |
階数 |
5階部分(地上11階建) |
方位・位置 |
南 / その他 |
物件種別 |
賃貸マンション |
構造 |
RC |
駐車場 |
無 |
小学校学区 |
中和小学校 |
中学校学区 |
竪川中学校 |
他の空き部屋 |
***号室 |
- 学区データについて
- ※学区データは必ずしも正確とは限りません。詳細に関しては最寄店舗または各自治体の教育委員会に必ずご確認ください。
ブラウ菊川プレイス ***号室の特徴
セキュリティ
この物件の建物には、オートロックや宅配ボックスが設置されております。
室内設備
システムキッチンが備え付けられています。 お風呂とトイレは別です。お風呂には、追い焚き機能が備わっています。 女性に嬉しい設備の独立した洗面化粧台があります。 洗濯に便利な設備として、室内洗濯機置場があります。浴室乾燥機も設置されているので、梅雨時の生乾き臭も比較的防ぐことができます。
居室状況
お部屋の床は、フローリングとなっており、エアコンが設置されています。
建物設備共用部分
居室外の専有スペースとして、洗濯物を干すなどの用途として利用できるバルコニーがあります。 建物の共用スペースに、日々の出入に便利なエレベーターや、急な外出や不在がちのご家庭の荷物受け取りに便利な宅配ボックスが設置されています。 バイク置き場が利用できます。
周辺施設
この物件の学区は、中和小学校区・竪川中学校区です。
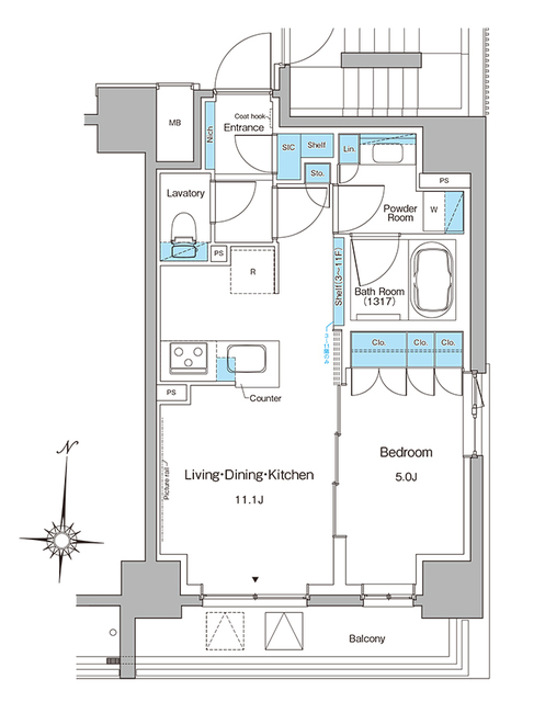
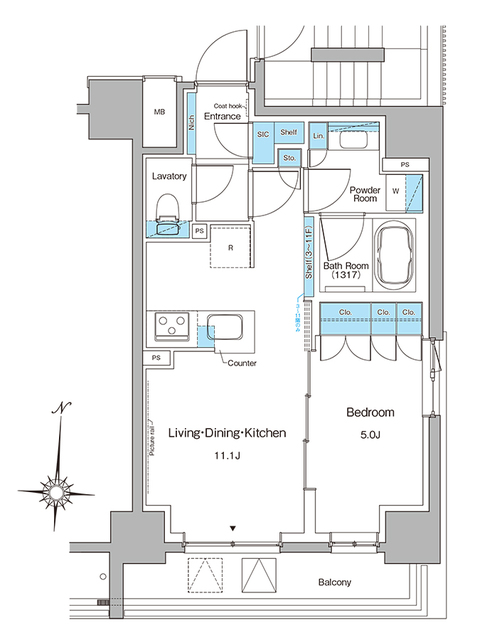
ブラウ菊川プレイス ***号室の間取り
間取り:1LDK
間取詳細:1LDK
専有面積:40.54㎡
方位:南
部屋位置:その他
ブラウ菊川プレイス ***号室の設備
キッチン
システムキッチン
バス・トイレ
バス・トイレ別
追い焚き
浴室乾燥機
独立洗面台
玄関
オートロック
宅配ボックス
バルコニー
バルコニー
ルーフバルコニー
室内設備
エアコン
フローリング
室内洗濯機置場
位置・立地
2階以上
南向き
インフラ
BS
CS
建物設備
エレベーター
バイク置き場
ライフステージ
一人暮らしに人気の設備
カップルに人気の設備
家族に人気の設備
夫婦に人気の設備
三世代で人気の設備
こだわり
外で子どもと遊びたい
雨の日でも洗濯したい
洋室で暮らしたい
趣味
ガーデニングが好き
ブラウ菊川プレイス ***号室の賃貸契約情報
毎月支払う |
家賃18.5万円/月共益費15,000円/月 |
|---|---|
初期費用 |
敷金1ヶ月 (18.5万円)礼金1ヶ月 (18.5万円)保証金-敷引き償却金- |
更新料 |
185,000円 |
鍵交換費用 |
- |
室内清掃費用 |
- |
室内清掃費 |
62,431円 |
鍵交換費 |
22,000円 |
駐車場料金 |
無 |
損保・ |
借家賠付きの火災保険にご加入いただきます。 |
保証会社 |
加入要 保証会社利用料:保証会社名:レジデントアシスタンス株式会社/初回保証委託料(最低20000円):月額賃料等の50%、 2年目以降:9600円/年 |
契約期間 |
2年 |
入居可能日 |
即入居可 |
フリーレント期間 |
- |
取引形態 |
一般媒介 |
備考 |
- |
ブラウ菊川プレイス ***号室の建物情報
建物名称 |
ブラウ菊川プレイス |
|---|---|
最寄駅 |
|
所在地 |
東京都墨田区立川 |
階層 |
5階部分(地上11階建) |
構造 |
RC |
築年数 |
2021年3月(築5年) |
駐車場 |
無 |
小学校学区 |
中和小学校 |
中学校学区 |
竪川中学校 |
- 学区データについて
- ※学区データは必ずしも正確とは限りません。詳細に関しては最寄店舗または各自治体の教育委員会に必ずご確認ください。
無料この物件に問い合わせ
- ブラウ菊川プレイス ***号室

-
18.5万円
(共益費
15,000円)
- 敷
- 1ヶ月
- 礼
- 1ヶ月
- 保
- -
- 償
- -
ブラウ菊川プレイス ***号室の物件のお問い合わせ先・取り扱い店舗
ハウスコム 押上店
- アクセス
-
東京メトロ 半蔵門線「押上駅」B1出口徒歩1分
- 住所
- 〒130-0002 東京都墨田区業平4丁目16−2 三橋ビル 1F
- 営業時間
- 10:00~18:00
- 定休日
- 水曜日
- 営業エリア
- 墨田区・江東区・中央区・台東区・江戸川区・葛飾区・足立区・荒川区
- 取引態様
- 賃貸仲介業



















