シャトー上福岡 104号室(1階/1R)の賃貸物件(賃貸アパート)
埼玉県ふじみ野市にあるシャトー上福岡 104号室はIHコンロ、ロフト付、1階、インターネット可などが特徴です。最寄り駅の東武東上線上福岡駅から徒歩20分です。シャトー上福岡 104号室の詳細はハウスコム 和光店までお気軽にお問い合わせください!
情報更新日:
次回更新予定日:
※次回更新予定日について:お店側では順次空室確認を行っていますが、次回更新予定日までに空室確認が行えない場合には、この物件情報は自動的に削除されます。
シャトー上福岡 104号室の賃貸物件部屋概要
家賃 |
2.2万円
初期費用を |
|---|---|
共益費 |
2,000円
入居可能時期 |
敷金/礼金 |
- / - |
保証金/ |
- / - |
最寄駅 |
|
所在地 |
埼玉県ふじみ野市元福岡 |
部屋番号 |
104号室 |
間取り |
1R |
専有面積 |
12.15㎡ |
築年数 |
1987年12月(築39年) |
階数 |
1階部分(地上2階建) |
方位・位置 |
ー / その他 |
物件種別 |
賃貸アパート |
構造 |
木造 |
駐車場 |
- |
小学校学区 |
元福小学校 |
中学校学区 |
葦原中学校 |
他の空き部屋 |
ー |
- 学区データについて
- ※学区データは必ずしも正確とは限りません。詳細に関しては最寄店舗または各自治体の教育委員会に必ずご確認ください。
シャトー上福岡 104号室の特徴
契約条件
敷金と礼金が無料なため、初期費用が比較的安くなる傾向にあります。
室内設備
IHコンロが備え付けられています。
居室状況
居室には、ロフトが設置されており大規模な収納スペースやセパレートされた寝室として活用できます。 インターネットも無料で入居後すぐ生活が始められます。
周辺施設
この物件の学区は、元福小学校区・葦原中学校区です。
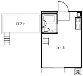
シャトー上福岡 104号室の間取り
間取り:1R
間取詳細:1R
専有面積:12.15㎡
方位:ー
部屋位置:その他
シャトー上福岡 104号室の設備
キッチン
IHコンロ
室内設備
ロフト付
位置・立地
1階
インフラ
インターネット可
ライフステージ
一人暮らしに人気の設備
トレンド
ミニマリスト
こだわり
寝るためだけの部屋
お得な条件
インターネット無料
シャトー上福岡 104号室の賃貸契約情報
毎月支払う |
家賃2.2万円/月共益費2,000円/月 |
|---|---|
初期費用 |
敷金-礼金-保証金-敷引き償却金- |
更新料 |
22,000円 |
鍵交換費用 |
- |
室内清掃費用 |
- |
駐車場料金 |
- |
損保・ |
借家賠付きの火災保険にご加入いただきます。 |
保証会社 |
加入要 保証会社利用料:初回保証料2万円(年1万円)~ |
契約期間 |
2年 |
入居可能日 |
相談 |
フリーレント期間 |
- |
取引形態 |
一般媒介 |
備考 |
- |
シャトー上福岡 104号室の建物情報
建物名称 |
シャトー上福岡 |
|---|---|
最寄駅 |
|
所在地 |
埼玉県ふじみ野市元福岡 |
階層 |
1階部分(地上2階建) |
構造 |
木造 |
築年数 |
1987年12月(築39年) |
駐車場 |
- |
小学校学区 |
元福小学校 |
中学校学区 |
葦原中学校 |
- 学区データについて
- ※学区データは必ずしも正確とは限りません。詳細に関しては最寄店舗または各自治体の教育委員会に必ずご確認ください。
無料この物件に問い合わせ
- シャトー上福岡 104号室

-
2.2万円
(共益費
2,000円)
- 敷
- -
- 礼
- -
- 保
- -
- 償
- -
シャトー上福岡 104号室の物件のお問い合わせ先・取り扱い店舗
ハウスコム 和光店
土日営業
- アクセス
-
東武東上線「和光市駅」南口徒歩1分
- 住所
- 〒351-0114 埼玉県和光市本町6−8 大澤ビル 1階
- 営業時間
- 10:00~18:00
- 定休日
- 水曜日
- 営業エリア
- 和光市、朝霞市、新座市、志木市、富士見市、ふじみ野市、板橋区、練馬区
- 取引態様
- 賃貸仲介業
お問い合わせNo. HC4-4991164-104-0104

















