ザ・パークハビオ神楽坂香月 314号室(3階/1R)の賃貸物件(賃貸マンション)
東京都新宿区にあるザ・パークハビオ神楽坂香月 314号室は浴室乾燥機、独立洗面台、2階以上、CS、楽器可・相談などが特徴です。最寄り駅の東京メトロ 有楽町線江戸川橋駅から徒歩4分です。ザ・パークハビオ神楽坂香月 314号室の詳細はハウスコム 明大前店までお気軽にお問い合わせください!
情報更新日:
次回更新予定日:
※次回更新予定日について:お店側では順次空室確認を行っていますが、次回更新予定日までに空室確認が行えない場合には、この物件情報は自動的に削除されます。
ザ・パークハビオ神楽坂香月 314号室の賃貸物件部屋概要
家賃 |
14.7万円
初期費用を |
|---|---|
共益費 |
15,000円
入居可能時期 |
敷金/礼金 |
147,000円 / 147,000円 |
保証金/ |
- / - |
最寄駅 |
|
所在地 |
東京都新宿区水道町 |
部屋番号 |
314号室 |
間取り |
1R(洋8.6) |
専有面積 |
26.07㎡ |
築年数 |
2019年4月(築7年) |
階数 |
3階部分(地上8階建) |
方位・位置 |
北 / 角部屋 |
物件種別 |
賃貸マンション |
構造 |
RC |
駐車場 |
無 |
小学校学区 |
江戸川小学校 |
中学校学区 |
牛込第三中学校 |
他の空き部屋 |
507号室 |
- 学区データについて
- ※学区データは必ずしも正確とは限りません。詳細に関しては最寄店舗または各自治体の教育委員会に必ずご確認ください。
ザ・パークハビオ神楽坂香月 314号室の特徴
契約条件
ペットの飼育や楽器演奏もご相談ください。
セキュリティ
この物件の建物には、オートロックや防犯カメラや宅配ボックスが設置されており、来客時には居室内のテレビモニターにて訪問者の顔を確認することができます。
室内設備
システムキッチンが備え付けられています。 お風呂とトイレは別です。お風呂には、追い焚き機能が備わっています。 トイレは、温水洗浄便座機能付きになります。 女性に嬉しい設備の独立した洗面化粧台があります。 洗濯に便利な設備として、室内洗濯機置場があります。浴室乾燥機も設置されているので、梅雨時の生乾き臭も比較的防ぐことができます。
居室状況
お部屋の床は、フローリングとなっており、エアコンが設置されています。 照明器具が備え付けられており、入居後すぐ生活が始められます。 収納スペースとして、通常よりも収納力の高いウォークインクローゼット、玄関にはシューズボックスがあります。
建物設備共用部分
建物の共用スペースに、日々の出入に便利なエレベーターや、いざという時の防犯カメラや、急な外出や不在がちのご家庭の荷物受け取りに便利な宅配ボックスが設置されています。
周辺施設
この物件の学区は、江戸川小学校区・牛込第三中学校区です。
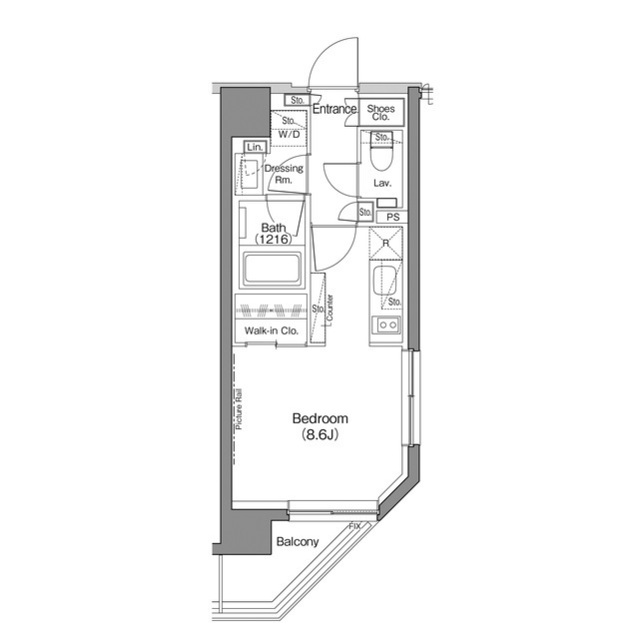
ザ・パークハビオ神楽坂香月 314号室の間取り
間取り:1R
間取詳細:1R(洋8.6)
専有面積:26.07㎡
方位:北
部屋位置:角部屋
ザ・パークハビオ神楽坂香月 314号室の設備
キッチン
システムキッチン
バス・トイレ
バス・トイレ別
追い焚き
浴室乾燥機
温水洗浄便座
独立洗面台
玄関
TVモニタ付インターホン
オートロック
宅配ボックス
収納
ウォークインクローゼット
シューズボックス
室内設備
エアコン
フローリング
室内洗濯機置場
照明器具付
位置・立地
2階以上
角部屋
インフラ
インターネット可
CATV
BS
CS
建物設備
エレベーター
防犯カメラ
入居条件
ペット可・相談
楽器可・相談
即入居可
ライフステージ
一人暮らしに人気の設備
カップルに人気の設備
家族に人気の設備
夫婦に人気の設備
三世代で人気の設備
こだわり
セキュリティ対策重視
雨の日でも洗濯したい
洋室で暮らしたい
趣味
服やおしゃれが好き
ザ・パークハビオ神楽坂香月 314号室の賃貸契約情報
毎月支払う |
家賃14.7万円/月共益費15,000円/月 |
|---|---|
初期費用 |
敷金147,000円礼金147,000円保証金-敷引き償却金- |
更新料 |
- |
鍵交換費用 |
- |
室内清掃費用 |
- |
駐車場料金 |
無 |
損保・ |
借家賠付きの火災保険にご加入いただきます。 |
保証会社 |
加入要 保証会社利用料:SBIギャランティ 初年度委託料:賃料等合計額の40%(最低保証料2万円)2年目以降:1年毎8千円 |
契約期間 |
- |
入居可能日 |
即入居可 |
フリーレント期間 |
- |
取引形態 |
一般媒介 |
備考 |
- |
ザ・パークハビオ神楽坂香月 314号室の建物情報
建物名称 |
ザ・パークハビオ神楽坂香月 |
|---|---|
最寄駅 |
|
所在地 |
東京都新宿区水道町 |
階層 |
3階部分(地上8階建) |
構造 |
RC |
築年数 |
2019年4月(築7年) |
駐車場 |
無 |
小学校学区 |
江戸川小学校 |
中学校学区 |
牛込第三中学校 |
- 学区データについて
- ※学区データは必ずしも正確とは限りません。詳細に関しては最寄店舗または各自治体の教育委員会に必ずご確認ください。
無料この物件に問い合わせ
- ザ・パークハビオ神楽坂香月 314号室

-
14.7万円
(共益費
15,000円)
- 敷
- 147,000円
- 礼
- 147,000円
- 保
- -
- 償
- -
ザ・パークハビオ神楽坂香月 314号室の物件のお問い合わせ先・取り扱い店舗
ハウスコム 明大前店
- アクセス
-
京王線「明大前駅」中央口徒歩1分
京王井の頭線「明大前駅」中央口徒歩1分
- 住所
- 〒156-0043 東京都世田谷区松原2丁目44−1 グランシーン明大前 1階
- 営業時間
- 10:00~18:00
- 定休日
- なし
- 営業エリア
- 世田谷区・杉並区・渋谷区・中野区・新宿区・三鷹市・調布市
- 取引態様
- 賃貸仲介業

















