道伯ゴールドヒルズ グッドスリー 408号室(4階/1LDK)の賃貸物件(賃貸マンション)
三重県鈴鹿市にある道伯ゴールドヒルズ グッドスリー 408号室は追い焚き、エアコン、フローリング、2階以上、CATVなどが特徴です。最寄り駅の近鉄鈴鹿線平田町駅から徒歩14分です。道伯ゴールドヒルズ グッドスリー 408号室の詳細はハウスコム 四日市店までお気軽にお問い合わせください!
情報更新日:
次回更新予定日:
※次回更新予定日について:お店側では順次空室確認を行っていますが、次回更新予定日までに空室確認が行えない場合には、この物件情報は自動的に削除されます。
道伯ゴールドヒルズ グッドスリー 408号室の賃貸物件部屋概要
家賃 |
5.7万円
初期費用を |
|---|---|
共益費 |
5,000円
入居可能時期 |
敷金/礼金 |
2ヶ月 / 1ヶ月 |
保証金/ |
- / - |
最寄駅 |
|
所在地 |
三重県鈴鹿市道伯 |
部屋番号 |
408号室 |
間取り |
1LDK |
専有面積 |
40.14㎡ |
築年数 |
2007年10月(築19年) |
階数 |
4階部分(地上5階建) |
方位・位置 |
ー / その他 |
物件種別 |
賃貸マンション |
構造 |
RC |
駐車場 |
無 |
小学校学区 |
飯野小学校 |
中学校学区 |
創徳中学校 |
他の空き部屋 |
105号室 206号室 |
- 学区データについて
- ※学区データは必ずしも正確とは限りません。詳細に関しては最寄店舗または各自治体の教育委員会に必ずご確認ください。
道伯ゴールドヒルズ グッドスリー 408号室の特徴
室内設備
お風呂とトイレは一緒のユニットバスです。お風呂には、追い焚き機能が備わっています。
居室状況
お部屋の床は、フローリングとなっており、エアコンが設置されています。
周辺施設
この物件の学区は、飯野小学校区・創徳中学校区です。
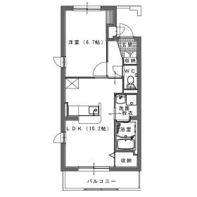
道伯ゴールドヒルズ グッドスリー 408号室の間取り
間取り:1LDK
間取詳細:1LDK
専有面積:40.14㎡
方位:ー
部屋位置:その他
道伯ゴールドヒルズ グッドスリー 408号室の設備
バス・トイレ
追い焚き
室内設備
エアコン
フローリング
位置・立地
2階以上
インフラ
CATV
ライフステージ
カップルに人気の設備
家族に人気の設備
夫婦に人気の設備
三世代で人気の設備
こだわり
洋室で暮らしたい
寝るためだけの部屋
道伯ゴールドヒルズ グッドスリー 408号室の賃貸契約情報
毎月支払う |
家賃5.7万円/月共益費5,000円/月 |
|---|---|
初期費用 |
敷金2ヶ月 (11.4万円)礼金1ヶ月 (5.7万円)保証金-敷引き償却金- |
更新料 |
- |
鍵交換費用 |
- |
室内清掃費用 |
- |
駐車場料金 |
無 |
損保・ |
借家賠付きの火災保険にご加入いただきます。 |
保証会社 |
|
契約期間 |
2年 |
入居可能日 |
2026年04月 |
フリーレント期間 |
- |
取引形態 |
一般媒介 |
備考 |
- |
道伯ゴールドヒルズ グッドスリー 408号室の建物情報
建物名称 |
道伯ゴールドヒルズ グッドスリー |
|---|---|
最寄駅 |
|
所在地 |
三重県鈴鹿市道伯 |
階層 |
4階部分(地上5階建) |
構造 |
RC |
築年数 |
2007年10月(築19年) |
駐車場 |
無 |
小学校学区 |
飯野小学校 |
中学校学区 |
創徳中学校 |
- 学区データについて
- ※学区データは必ずしも正確とは限りません。詳細に関しては最寄店舗または各自治体の教育委員会に必ずご確認ください。
無料この物件に問い合わせ
- 道伯ゴールドヒルズ グッドスリー 408号室

-
5.7万円
(共益費
5,000円)
- 敷
- 2ヶ月
- 礼
- 1ヶ月
- 保
- -
- 償
- -
道伯ゴールドヒルズ グッドスリー 408号室の物件のお問い合わせ先・取り扱い店舗
ハウスコム 四日市店
水曜日営業
土日営業
年中無休(年末年始などを除く)
- アクセス
-
近鉄名古屋線「近鉄四日市駅」西口より送迎あり
- 住所
- 〒510-0064 三重県四日市市新正2丁目7−25
- 営業時間
- 10:00~18:00
- 定休日
- なし
- 営業エリア
- 四日市市、桑名市、鈴鹿市、いなべ市、三重郡川越町、三重郡朝日町、三重郡菰野町、三重郡東員町
- 取引態様
- 賃貸仲介業
お問い合わせNo. HC4-5426825-408-0014







