コンフォート聖 2号室(1階/3LDK)の賃貸物件(賃貸一戸建て)
静岡県静岡市駿河区にあるコンフォート聖 2号室は独立洗面台、シューズボックス、エアコン、室内洗濯機置場、オンライン内見可などが特徴です。最寄り駅の静岡鉄道静岡清水線県総合運動場駅から徒歩13分です。コンフォート聖 2号室の詳細はハウスコム 静岡店までお気軽にお問い合わせください!
情報更新日:
次回更新予定日:
※次回更新予定日について:お店側では順次空室確認を行っていますが、次回更新予定日までに空室確認が行えない場合には、この物件情報は自動的に削除されます。
コンフォート聖 2号室の賃貸物件部屋概要
家賃 |
12.5万円
初期費用を |
|---|---|
共益費 |
-
入居可能時期 |
敷金/礼金 |
- / - |
保証金/ |
- / - |
最寄駅 |
|
所在地 |
静岡県静岡市駿河区聖一色 |
部屋番号 |
2号室 |
間取り |
3LDK(洋6・洋5.3・洋5.3・LDK12.7) |
専有面積 |
79.40㎡ |
築年数 |
2014年7月(築12年) |
階数 |
1階部分(地上2階建) |
方位・位置 |
南 / 角部屋 |
物件種別 |
賃貸一戸建て |
構造 |
木造 |
駐車場 |
空有 賃料に含む |
小学校学区 |
東豊田小学校 |
中学校学区 |
東豊田中学校 |
他の空き部屋 |
ー |
- 学区データについて
- ※学区データは必ずしも正確とは限りません。詳細に関しては最寄店舗または各自治体の教育委員会に必ずご確認ください。
コンフォート聖 2号室の特徴
-
一人暮らしに人気の設備

-
カップルに人気の設備

-
家族に人気の設備

-
夫婦に人気の設備

-
三世代で人気の設備

-
外で子どもと遊びたい

-
急な来客でも駐車したい

-
雨の日でも洗濯したい

-
洋室で暮らしたい

-
推し活グッズを飾りたい

-
ガーデニングが好き

契約条件
この物件は、2人入居もご契約できます。 また、ご契約時に保証人は不要です。 敷金と礼金が無料なため、初期費用が比較的安くなる傾向にあります。
セキュリティ
来客時には居室内のテレビモニターにて訪問者の顔を確認することができます。
室内設備
システムキッチンが備え付けられています。 トイレは、温水洗浄便座機能付きになります。 女性に嬉しい設備のシャワーの付いている洗面化粧台があります。 洗濯に便利な設備として、室内洗濯機置場があります。浴室乾燥機も設置されているので、梅雨時の生乾き臭も比較的防ぐことができます。
居室状況
お部屋の床は、フローリングとなっており、エアコンが設置されています。 収納スペースとして、基本的な居室にクローゼットを設置、玄関にはシューズボックスがあります。
建物設備共用部分
居室外の専有スペースとして、洗濯物を干すなどの用途として利用できるバルコニーがあります。 平面駐車場があり2台以上の車で利用することができます。駐輪場が利用できます。
周辺施設
この物件の学区は、東豊田小学校区・東豊田中学校区です。
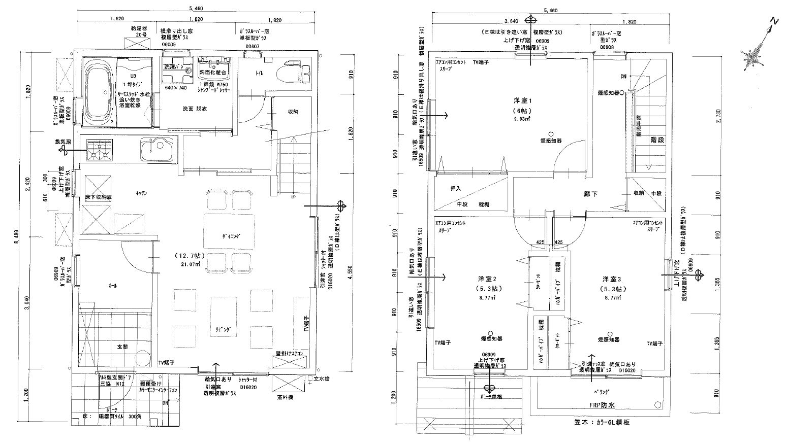
コンフォート聖 2号室の間取り
間取り:3LDK
間取詳細:3LDK(洋6・洋5.3・洋5.3・LDK12.7)
専有面積:79.40㎡
方位:南
部屋位置:角部屋
コンフォート聖 2号室の設備
キッチン
システムキッチン
カウンターキッチン
バス・トイレ
バス・トイレ別
浴室乾燥機
温水洗浄便座
独立洗面台
シャワー付洗面化粧台
玄関
TVモニタ付インターホン
収納
クローゼット
シューズボックス
バルコニー
バルコニー
ルーフバルコニー
室内設備
エアコン
フローリング
室内洗濯機置場
位置・立地
1階
角部屋
南向き
インフラ
プロパンガス
建物設備
駐車場
平面駐車場
駐車2台以上可
駐輪場
入居条件
2人入居可
オンライン相談可
オンライン内見可
保証人不要
ライフステージ
一人暮らしに人気の設備
カップルに人気の設備
家族に人気の設備
夫婦に人気の設備
三世代で人気の設備
こだわり
外で子どもと遊びたい
急な来客でも駐車したい
雨の日でも洗濯したい
洋室で暮らしたい
趣味
推し活グッズを飾りたい
ガーデニングが好き
コンフォート聖 2号室の賃貸契約情報
毎月支払う |
家賃12.5万円/月共益費- |
|---|---|
初期費用 |
敷金-礼金-保証金-敷引き償却金- |
更新料 |
- |
鍵交換費用 |
28,000円 |
室内清掃費用 |
150,000円 |
サポートコール24 |
14,300円 |
駐車場料金 |
空有 賃料に含む |
損保・ |
借家賠付きの火災保険にご加入いただきます。 |
保証会社 |
加入要 保証会社利用料:家賃保証料:37,500円 (オリコの場合) |
契約期間 |
2年 |
入居可能日 |
2026年04月下旬 |
フリーレント期間 |
- |
取引形態 |
一般媒介 |
備考 |
- |
コンフォート聖 2号室の建物情報
建物名称 |
コンフォート聖 |
|---|---|
最寄駅 |
|
所在地 |
静岡県静岡市駿河区聖一色 |
階層 |
1階部分(地上2階建) |
構造 |
木造 |
築年数 |
2014年7月(築12年) |
駐車場 |
空有 賃料に含む |
小学校学区 |
東豊田小学校 |
中学校学区 |
東豊田中学校 |
- 学区データについて
- ※学区データは必ずしも正確とは限りません。詳細に関しては最寄店舗または各自治体の教育委員会に必ずご確認ください。
無料この物件に問い合わせ
- コンフォート聖 2号室

-
12.5万円
(共益費
-)
- 敷
- -
- 礼
- -
- 保
- -
- 償
- -
コンフォート聖 2号室の物件のお問い合わせ先・取り扱い店舗
ハウスコム 静岡店
- アクセス
-
東海道本線(JR東海)「静岡駅」南口徒歩2分
- 住所
- 〒422-8067 静岡県静岡市駿河区南町10−5 地建南町ビル 1階
- 営業時間
- 10:00~18:00
- 定休日
- なし
- 営業エリア
- 静岡市駿河区,静岡市葵区,静岡市清水区
- 取引態様
- 賃貸仲介業
