小港町3丁目貸家 A号室(3LDK)の賃貸物件(賃貸一戸建て)
神奈川県横浜市中区にある小港町3丁目貸家 A号室は浴室乾燥機、温水洗浄便座、シャワー付洗面化粧台、全居室収納、ルーフバルコニーなどが特徴です。最寄り駅の根岸線山手駅から徒歩27分です。小港町3丁目貸家 A号室の詳細はハウスコム 上大岡店までお気軽にお問い合わせください!
情報更新日:
次回更新予定日:
※次回更新予定日について:お店側では順次空室確認を行っていますが、次回更新予定日までに空室確認が行えない場合には、この物件情報は自動的に削除されます。
小港町3丁目貸家 A号室の賃貸物件部屋概要
家賃 |
21万円
初期費用を |
|---|---|
共益費 |
-
入居可能時期 |
敷金/礼金 |
2ヶ月 / - |
保証金/ |
- / - |
最寄駅 |
|
所在地 |
神奈川県横浜市中区小港町 |
部屋番号 |
A号室 |
間取り |
3LDK |
専有面積 |
87.34㎡ |
築年数 |
新築 |
階数 |
地上3階建 |
方位・位置 |
南西 / その他 |
物件種別 |
賃貸一戸建て |
構造 |
木造 |
駐車場 |
無 |
小学校学区 |
大鳥小学校 |
中学校学区 |
大鳥中学校 |
他の空き部屋 |
B号室 |
- 学区データについて
- ※学区データは必ずしも正確とは限りません。詳細に関しては最寄店舗または各自治体の教育委員会に必ずご確認ください。
小港町3丁目貸家 A号室の特徴
-
一人暮らしに人気の設備

-
カップルに人気の設備

-
家族に人気の設備

-
夫婦に人気の設備

-
三世代で人気の設備

-
外で子どもと遊びたい

-
雨の日でも洗濯したい

-
持ち物をスッキリ隠す収納部屋

-
推し活グッズを飾りたい

-
ガーデニングが好き

契約条件
礼金が無料なため、初期費用が比較的安くなる傾向にあります。
セキュリティ
来客時には居室内のテレビモニターにて訪問者の顔を確認することができます。
室内設備
システムキッチンが備え付けられています。 お風呂とトイレは別です。お風呂には、追い焚き機能が備わっています。 トイレは、温水洗浄便座機能付きになります。 女性に嬉しい設備のシャワーの付いている洗面化粧台があります。 洗濯に便利な設備として、室内洗濯機置場があります。浴室乾燥機も設置されているので、梅雨時の生乾き臭も比較的防ぐことができます。
居室状況
エアコンが設置されています。 収納スペースとして、玄関にはシューズボックスがあります。
建物設備共用部分
居室外の専有スペースとして、洗濯物を干すなどの用途として利用できるバルコニーがあります。
周辺施設
この物件の学区は、大鳥小学校区・大鳥中学校区です。
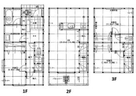
小港町3丁目貸家 A号室の間取り
間取り:3LDK
間取詳細:3LDK
専有面積:87.34㎡
方位:南西
部屋位置:その他
小港町3丁目貸家 A号室の設備
キッチン
システムキッチン
カウンターキッチン
バス・トイレ
バス・トイレ別
追い焚き
浴室乾燥機
温水洗浄便座
独立洗面台
シャワー付洗面化粧台
玄関
TVモニタ付インターホン
収納
シューズボックス
全居室収納
バルコニー
バルコニー
ルーフバルコニー
室内設備
エアコン
室内洗濯機置場
インフラ
都市ガス
ライフステージ
一人暮らしに人気の設備
カップルに人気の設備
家族に人気の設備
夫婦に人気の設備
三世代で人気の設備
こだわり
外で子どもと遊びたい
雨の日でも洗濯したい
持ち物をスッキリ隠す収納部屋
趣味
推し活グッズを飾りたい
ガーデニングが好き
小港町3丁目貸家 A号室の賃貸契約情報
毎月支払う |
家賃21万円/月共益費- |
|---|---|
初期費用 |
敷金2ヶ月 (42万円)礼金-保証金-敷引き償却金- |
更新料 |
210,000円 |
鍵交換費用 |
- |
室内清掃費用 |
- |
駐車場料金 |
無 |
損保・ |
借家賠付きの火災保険にご加入いただきます。 |
保証会社 |
加入要 保証会社利用料:総賃料の50%、1年毎に12000円 |
契約期間 |
2年 |
入居可能日 |
相談 |
フリーレント期間 |
- |
取引形態 |
一般媒介 |
備考 |
- |
小港町3丁目貸家 A号室の建物情報
建物名称 |
小港町3丁目貸家 |
|---|---|
最寄駅 |
|
所在地 |
神奈川県横浜市中区小港町 |
階層 |
地上3階建 |
構造 |
木造 |
築年数 |
新築 |
駐車場 |
無 |
小学校学区 |
大鳥小学校 |
中学校学区 |
大鳥中学校 |
- 学区データについて
- ※学区データは必ずしも正確とは限りません。詳細に関しては最寄店舗または各自治体の教育委員会に必ずご確認ください。
無料この物件に問い合わせ
- 小港町3丁目貸家 A号室

-
21万円
(共益費
-)
- 敷
- 2ヶ月
- 礼
- -
- 保
- -
- 償
- -
小港町3丁目貸家 A号室の物件のお問い合わせ先・取り扱い店舗
ハウスコム 上大岡店
- アクセス
-
京急本線「上大岡駅」徒歩2分
- 住所
- 〒233-0002 神奈川県横浜市港南区上大岡西1丁目11−7 第10オーヴァルビル 1階
- 営業時間
- 10:00~18:00
- 定休日
- なし
- 営業エリア
- 横浜市南区,横浜市港南区,横浜市磯子区
- 取引態様
- 賃貸仲介業

