イージスワン 302号室(3階/1LDK)の賃貸物件(賃貸アパート)
埼玉県さいたま市中央区にあるイージスワン 302号室はシステムキッチン、カウンターキッチン、エアコン、2階以上、事務所可・相談などが特徴です。最寄り駅の埼京線北与野駅から徒歩20分です。イージスワン 302号室の詳細はハウスコム 大宮店までお気軽にお問い合わせください!
情報更新日:
次回更新予定日:
※次回更新予定日について:お店側では順次空室確認を行っていますが、次回更新予定日までに空室確認が行えない場合には、この物件情報は自動的に削除されます。
イージスワン 302号室の賃貸物件部屋概要
家賃 |
12.87万円
初期費用を |
|---|---|
共益費 |
5,000円
入居可能時期 |
敷金/礼金 |
1ヶ月 / 1ヶ月 |
保証金/ |
- / - |
最寄駅 |
|
所在地 |
埼玉県さいたま市中央区本町西 |
部屋番号 |
302号室 |
間取り |
1LDK |
専有面積 |
39.14㎡ |
築年数 |
新築 |
階数 |
3階部分(地上3階建) |
方位・位置 |
北東 / その他 |
物件種別 |
賃貸アパート |
構造 |
木造 |
駐車場 |
- |
小学校学区 |
与野八幡小学校 |
中学校学区 |
与野西中学校 |
他の空き部屋 |
201号室 202号室 203号室 301号室 303号室 |
- 学区データについて
- ※学区データは必ずしも正確とは限りません。詳細に関しては最寄店舗または各自治体の教育委員会に必ずご確認ください。
イージスワン 302号室の特徴
-
一人暮らしに人気の設備

-
カップルに人気の設備

-
家族に人気の設備

-
夫婦に人気の設備

-
三世代で人気の設備

-
外で子どもと遊びたい

-
雨の日でも洗濯したい

-
洋室で暮らしたい

-
推し活グッズを飾りたい

-
オークション・通販が好き

-
ガーデニングが好き

契約条件
法人契約・事務所のご利用もご相談ください。
セキュリティ
この物件の建物には、オートロックや宅配ボックスが設置されており、来客時には居室内のテレビモニターにて訪問者の顔を確認することができます。
室内設備
システムキッチンには、2つ以上のガスコンロが備え付けられています。 お風呂とトイレは別です。お風呂には、追い焚き機能が備わっています。 トイレは、温水洗浄便座機能付きになります。 女性に嬉しい設備のシャワーの付いている洗面化粧台があります。 洗濯に便利な設備として、室内洗濯機置場があります。浴室乾燥機も設置されているので、梅雨時の生乾き臭も比較的防ぐことができます。
居室状況
お部屋の床は、フローリングとなっており、エアコンが設置されています。 インターネットも無料で入居後すぐ生活が始められます。 収納スペースとして、基本的な居室にクローゼットがあります。
建物設備共用部分
居室外の専有スペースとして、洗濯物を干すなどの用途として利用できるバルコニーがあります。 建物の共用スペースに、急な外出や不在がちのご家庭の荷物受け取りに便利な宅配ボックスが設置されています。 駐輪場が利用できます。
周辺施設
この物件の学区は、与野八幡小学校区・与野西中学校区です。
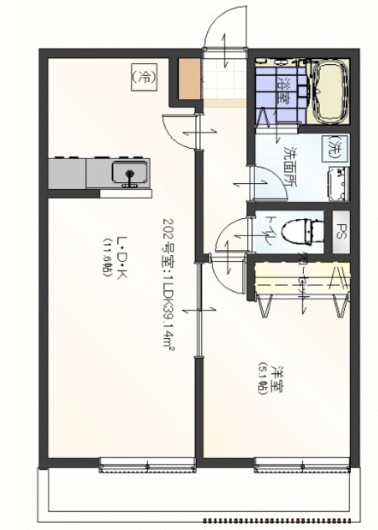
イージスワン 302号室の間取り
間取り:1LDK
間取詳細:1LDK
専有面積:39.14㎡
方位:北東
部屋位置:その他
イージスワン 302号室の設備
キッチン
システムキッチン
カウンターキッチン
ガスコンロ
ガスコンロ二口以上
バス・トイレ
バス・トイレ別
追い焚き
浴室乾燥機
温水洗浄便座
独立洗面台
シャワー付洗面化粧台
玄関
TVモニタ付インターホン
オートロック
宅配ボックス
収納
クローゼット
バルコニー
バルコニー
ルーフバルコニー
室内設備
エアコン
フローリング
室内洗濯機置場
位置・立地
2階以上
最上階
インフラ
インターネット可
都市ガス
建物設備
駐輪場
入居条件
事務所可・相談
オンライン相談可
オンライン内見可
即入居可
ライフステージ
一人暮らしに人気の設備
カップルに人気の設備
家族に人気の設備
夫婦に人気の設備
三世代で人気の設備
こだわり
外で子どもと遊びたい
雨の日でも洗濯したい
洋室で暮らしたい
趣味
推し活グッズを飾りたい
オークション・通販が好き
ガーデニングが好き
お得な条件
インターネット無料
イージスワン 302号室の賃貸契約情報
毎月支払う |
家賃12.87万円/月共益費5,000円/月 |
|---|---|
初期費用 |
敷金1ヶ月 (12.87万円)礼金1ヶ月 (12.87万円)保証金-敷引き償却金- |
更新料 |
128,700円 |
鍵交換費用 |
- |
室内清掃費用 |
- |
駐車場料金 |
- |
損保・ |
借家賠付きの火災保険にご加入いただきます。 |
保証会社 |
加入要 保証会社利用料:契約時:総賃料の50% |
契約期間 |
2年 |
入居可能日 |
即入居可 |
フリーレント期間 |
- |
取引形態 |
一般媒介 |
備考 |
保証会社利用必須 契約時:総賃料の50% |
イージスワン 302号室の建物情報
建物名称 |
イージスワン |
|---|---|
最寄駅 |
|
所在地 |
埼玉県さいたま市中央区本町西 |
階層 |
3階部分(地上3階建) |
構造 |
木造 |
築年数 |
新築 |
駐車場 |
- |
小学校学区 |
与野八幡小学校 |
中学校学区 |
与野西中学校 |
- 学区データについて
- ※学区データは必ずしも正確とは限りません。詳細に関しては最寄店舗または各自治体の教育委員会に必ずご確認ください。
無料この物件に問い合わせ
- イージスワン 302号室

-
12.87万円
(共益費
5,000円)
- 敷
- 1ヶ月
- 礼
- 1ヶ月
- 保
- -
- 償
- -
イージスワン 302号室の物件のお問い合わせ先・取り扱い店舗
ハウスコム 大宮店
- アクセス
-
京浜東北・根岸線「大宮駅」西口徒歩1分
- 住所
- 〒330-0854 埼玉県さいたま市大宮区桜木町1丁目1−4 TS-114ビル 1階
- 営業時間
- 10:00~18:00
- 定休日
- なし
- 営業エリア
- さいたま市中央区,さいたま市北区,さいたま市大宮区,さいたま市桜区,さいたま市西区,さいたま市見沼区,岩槻区,上尾市,北足立郡伊奈町
- 取引態様
- 賃貸仲介業
























