所沢ガレージハウス 101号室(1階/1DK)の賃貸物件(賃貸アパート)
埼玉県所沢市にある所沢ガレージハウス 101号室は浴室乾燥機、独立洗面台、ロフト付、バイク置き場、2人入居可などが特徴です。最寄り駅の西武池袋線・豊島線狭山ヶ丘駅から徒歩20分です。所沢ガレージハウス 101号室の詳細はハウスコム 所沢駅前店までお気軽にお問い合わせください!
情報更新日:
次回更新予定日:
※次回更新予定日について:お店側では順次空室確認を行っていますが、次回更新予定日までに空室確認が行えない場合には、この物件情報は自動的に削除されます。
所沢ガレージハウス 101号室の賃貸物件部屋概要
家賃 |
11.5万円
初期費用を |
|---|---|
共益費 |
3,000円
入居可能時期 |
敷金/礼金 |
- / 1ヶ月 |
保証金/ |
- / - |
最寄駅 |
|
所在地 |
埼玉県所沢市林 |
部屋番号 |
101号室 |
間取り |
1DK |
専有面積 |
47.53㎡ |
築年数 |
2024年2月(築3年) |
階数 |
1階部分(地上2階建) |
方位・位置 |
ー / その他 |
物件種別 |
賃貸アパート |
構造 |
木造 |
駐車場 |
空有 賃料に含む |
小学校学区 |
林小学校 |
中学校学区 |
三ヶ島中学校 |
他の空き部屋 |
ー |
- 学区データについて
- ※学区データは必ずしも正確とは限りません。詳細に関しては最寄店舗または各自治体の教育委員会に必ずご確認ください。
所沢ガレージハウス 101号室の特徴
契約条件
この物件は、外国籍の方もご相談の上、2人入居もご契約できます。 また、ご契約時に保証人は不要です。 敷金が無料なため、初期費用が比較的安くなる傾向にあります。
セキュリティ
来客時には居室内のテレビモニターにて訪問者の顔を確認することができます。
室内設備
システムキッチンには、IHコンロが備え付けられています。 お風呂とトイレは別です。お風呂には、追い焚き機能が備わっています。 トイレは、温水洗浄便座機能付きになります。 女性に嬉しい設備の独立した洗面化粧台があります。 洗濯に便利な設備として、浴室乾燥機も設置されているので、梅雨時の生乾き臭も比較的防ぐことができます。
居室状況
居室には、ロフトが設置されており大規模な収納スペースやセパレートされた寝室として活用できます。 お部屋の床は、フローリングとなっており、エアコンが設置されています。 照明器具が備え付けられており、入居後すぐ生活が始められます。 収納スペースとして、基本的な居室にクローゼットを設置、玄関にはシューズボックスがあります。
建物設備共用部分
平面駐車場があります。駐輪場、バイク置き場が利用できます。
周辺施設
この物件の学区は、林小学校区・三ヶ島中学校区です。
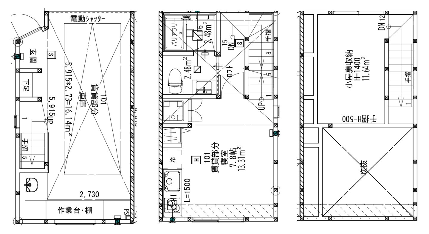
所沢ガレージハウス 101号室の間取り
間取り:1DK
間取詳細:1DK
専有面積:47.53㎡
方位:ー
部屋位置:その他
所沢ガレージハウス 101号室の設備
キッチン
システムキッチン
IHコンロ
バス・トイレ
バス・トイレ別
追い焚き
浴室乾燥機
温水洗浄便座
独立洗面台
玄関
TVモニタ付インターホン
収納
クローゼット
シューズボックス
室内設備
エアコン
フローリング
ロフト付
照明器具付
デザイナーズ
位置・立地
1階
インフラ
都市ガス
建物設備
駐車場
平面駐車場
駐輪場
バイク置き場
入居条件
2人入居可
外国人可・相談
LGBTフレンドリー
オンライン相談可
オンライン内見可
保証人不要
即入居可
ライフステージ
一人暮らしに人気の設備
カップルに人気の設備
家族に人気の設備
夫婦に人気の設備
三世代で人気の設備
こだわり
雨の日でも洗濯したい
洋室で暮らしたい
所沢ガレージハウス 101号室の賃貸契約情報
毎月支払う |
家賃11.5万円/月共益費3,000円/月 |
|---|---|
初期費用 |
敷金-礼金1ヶ月 (11.5万円)保証金-敷引き償却金- |
更新料 |
115,000円 |
鍵交換費用 |
27,500円 |
室内清掃費用 |
- |
駐車場料金 |
空有 賃料に含む |
損保・ |
借家賠付きの火災保険にご加入いただきます。 |
保証会社 |
加入要 保証会社利用料:初回50%、更新年1万または月800円 |
契約期間 |
2年 |
入居可能日 |
即入居可 |
フリーレント期間 |
- |
取引形態 |
一般媒介 |
備考 |
- |
所沢ガレージハウス 101号室の建物情報
建物名称 |
所沢ガレージハウス |
|---|---|
最寄駅 |
|
所在地 |
埼玉県所沢市林 |
階層 |
1階部分(地上2階建) |
構造 |
木造 |
築年数 |
2024年2月(築3年) |
駐車場 |
空有 賃料に含む |
小学校学区 |
林小学校 |
中学校学区 |
三ヶ島中学校 |
- 学区データについて
- ※学区データは必ずしも正確とは限りません。詳細に関しては最寄店舗または各自治体の教育委員会に必ずご確認ください。
無料この物件に問い合わせ
- 所沢ガレージハウス 101号室

-
11.5万円
(共益費
3,000円)
- 敷
- -
- 礼
- 1ヶ月
- 保
- -
- 償
- -
所沢ガレージハウス 101号室の物件のお問い合わせ先・取り扱い店舗
ハウスコム 所沢駅前店
- アクセス
-
西武池袋線・豊島線「所沢駅」西口徒歩2分
- 住所
- 〒359-1123 埼玉県所沢市日吉町11−20 フジビル 5階
- 営業時間
- 10:00~18:00
- 定休日
- 水曜日
- 営業エリア
- 所沢市,東村山市,入間市,清瀬市,狭山市,飯能市.日高市
- 取引態様
- 賃貸仲介業






























