プレール・ドゥーク亀戸小村井 504号室(5階/1K)の賃貸物件(賃貸マンション)
東京都墨田区にあるプレール・ドゥーク亀戸小村井 504号室はシステムキッチン、TVモニタ付インターホン、オートロック、ルーフバルコニー、ペット可・相談などが特徴です。最寄り駅の東武亀戸線小村井駅から徒歩5分です。プレール・ドゥーク亀戸小村井 504号室の詳細はハウスコム 押上店までお気軽にお問い合わせください!
情報更新日:
次回更新予定日:
※次回更新予定日について:お店側では順次空室確認を行っていますが、次回更新予定日までに空室確認が行えない場合には、この物件情報は自動的に削除されます。
プレール・ドゥーク亀戸小村井 504号室の賃貸物件部屋概要
家賃 |
10.8万円
初期費用を |
|---|---|
共益費 |
10,000円
入居可能時期 |
敷金/礼金 |
- / 108,000円 |
保証金/ |
- / - |
最寄駅 |
|
所在地 |
東京都墨田区立花 |
部屋番号 |
504号室 |
間取り |
1K(洋9.5・K0) |
専有面積 |
27.27㎡ |
築年数 |
新築 |
階数 |
5階部分(地上6階建) |
方位・位置 |
西 / その他 |
物件種別 |
賃貸マンション |
構造 |
RC |
駐車場 |
無 |
小学校学区 |
中川小学校 |
中学校学区 |
吾嬬立花中学校 |
他の空き部屋 |
102号室 204号室 205号室 304号室 305号室 404号室 405号室 505号室 604号室 |
- 学区データについて
- ※学区データは必ずしも正確とは限りません。詳細に関しては最寄店舗または各自治体の教育委員会に必ずご確認ください。
プレール・ドゥーク亀戸小村井 504号室の特徴
契約条件
ペットの飼育もご相談ください。 また、保証会社との契約が必要となる場合があります。 敷金が無料なため、初期費用が比較的安くなる傾向にあります。
セキュリティ
この物件の建物には、オートロックや防犯カメラが設置されており、来客時には居室内のテレビモニターにて訪問者の顔を確認することができます。
室内設備
システムキッチンが備え付けられています。 洗濯に便利な設備として、室内洗濯機置場があります。浴室乾燥機も設置されているので、梅雨時の生乾き臭も比較的防ぐことができます。
居室状況
エアコンが設置されています。
建物設備共用部分
居室外の専有スペースとして、洗濯物を干すなどの用途として利用できるバルコニーがあります。 建物の共用スペースに、いざという時の防犯カメラが設置されています。
周辺施設
この物件の学区は、中川小学校区・吾嬬立花中学校区です。
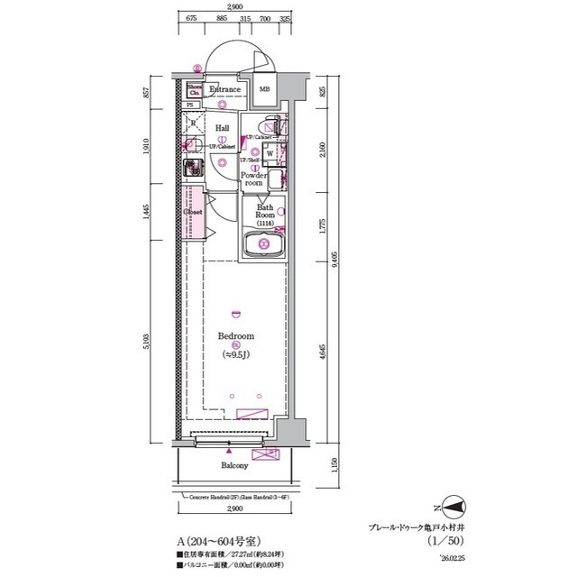
プレール・ドゥーク亀戸小村井 504号室の間取り
間取り:1K
間取詳細:1K(洋9.5・K0)
専有面積:27.27㎡
方位:西
部屋位置:その他
プレール・ドゥーク亀戸小村井 504号室の設備
キッチン
システムキッチン
バス・トイレ
浴室乾燥機
玄関
TVモニタ付インターホン
オートロック
バルコニー
バルコニー
ルーフバルコニー
室内設備
エアコン
室内洗濯機置場
位置・立地
2階以上
建物設備
防犯カメラ
入居条件
ペット可・相談
保証会社利用可
ライフステージ
一人暮らしに人気の設備
カップルに人気の設備
家族に人気の設備
夫婦に人気の設備
三世代で人気の設備
こだわり
セキュリティ対策重視
外で子どもと遊びたい
雨の日でも洗濯したい
趣味
ガーデニングが好き
プレール・ドゥーク亀戸小村井 504号室の賃貸契約情報
毎月支払う |
家賃10.8万円/月共益費10,000円/月 |
|---|---|
初期費用 |
敷金-礼金108,000円保証金-敷引き償却金- |
更新料 |
- |
鍵交換費用 |
- |
室内清掃費用 |
- |
駐車場料金 |
無 |
損保・ |
借家賠付きの火災保険にご加入いただきます。 |
保証会社 |
利用可 保証会社利用料:全保連株式会社 初回保証料20,000円、月額保証料550円、年間保証料10,000円 |
契約期間 |
- |
入居可能日 |
2026年03月下旬 |
フリーレント期間 |
- |
取引形態 |
一般媒介 |
備考 |
- |
プレール・ドゥーク亀戸小村井 504号室の建物情報
建物名称 |
プレール・ドゥーク亀戸小村井 |
|---|---|
最寄駅 |
|
所在地 |
東京都墨田区立花 |
階層 |
5階部分(地上6階建) |
構造 |
RC |
築年数 |
新築 |
駐車場 |
無 |
小学校学区 |
中川小学校 |
中学校学区 |
吾嬬立花中学校 |
- 学区データについて
- ※学区データは必ずしも正確とは限りません。詳細に関しては最寄店舗または各自治体の教育委員会に必ずご確認ください。
無料この物件に問い合わせ
- プレール・ドゥーク亀戸小村井 504号室

-
10.8万円
(共益費
10,000円)
- 敷
- -
- 礼
- 108,000円
- 保
- -
- 償
- -
プレール・ドゥーク亀戸小村井 504号室の物件のお問い合わせ先・取り扱い店舗
ハウスコム 押上店
- アクセス
-
東京メトロ 半蔵門線「押上駅」B1出口徒歩1分
- 住所
- 〒130-0002 東京都墨田区業平4丁目16−2 三橋ビル 1F
- 営業時間
- 10:00~18:00
- 定休日
- 水曜日
- 営業エリア
- 墨田区・江東区・中央区・台東区・江戸川区・葛飾区・足立区・荒川区
- 取引態様
- 賃貸仲介業






















