S-RESIDENCE瑞江 702号室(7階/3LDK)の賃貸物件(賃貸マンション)
東京都江戸川区にあるS-RESIDENCE瑞江 702号室はバス・トイレ別、独立洗面台、オートロック、2階以上、バイク置き場などが特徴です。最寄り駅の都営新宿線瑞江駅から徒歩10分です。S-RESIDENCE瑞江 702号室の詳細はハウスコム 事業戦略室までお気軽にお問い合わせください!
情報更新日:
次回更新予定日:
※次回更新予定日について:お店側では順次空室確認を行っていますが、次回更新予定日までに空室確認が行えない場合には、この物件情報は自動的に削除されます。
S-RESIDENCE瑞江 702号室の賃貸物件部屋概要
家賃 |
28万円
初期費用を |
|---|---|
共益費 |
15,000円
入居可能時期 |
敷金/礼金 |
- / - |
保証金/ |
- / - |
最寄駅 |
|
所在地 |
東京都江戸川区瑞江 |
部屋番号 |
702号室 |
間取り |
3LDK |
専有面積 |
62.10㎡ |
築年数 |
2024年4月(築2年) |
階数 |
7階部分(地上8階建) |
方位・位置 |
北 / その他 |
物件種別 |
賃貸マンション |
構造 |
RC |
駐車場 |
空無し |
小学校学区 |
下鎌田小学校 |
中学校学区 |
瑞江第二中学校 |
他の空き部屋 |
102号室 ***号室 302号室 702号室 |
- 学区データについて
- ※学区データは必ずしも正確とは限りません。詳細に関しては最寄店舗または各自治体の教育委員会に必ずご確認ください。
S-RESIDENCE瑞江 702号室の特徴
契約条件
敷金と礼金が無料なため、初期費用が比較的安くなる傾向にあります。
セキュリティ
この物件の建物には、オートロックが設置されており、来客時には居室内のテレビモニターにて訪問者の顔を確認することができます。
室内設備
カウンターキッチンが備え付けられています。 お風呂とトイレは別です。お風呂には、追い焚き機能が備わっています。 トイレは、温水洗浄便座機能付きになります。 女性に嬉しい設備の独立した洗面化粧台があります。 洗濯に便利な設備として、浴室乾燥機も設置されているので、梅雨時の生乾き臭も比較的防ぐことができます。
居室状況
エアコンが設置されています。 収納スペースとして、通常よりも収納力の高いウォークインクローゼットがあります。
建物設備共用部分
駐輪場、バイク置き場が利用できます。
周辺施設
この物件の学区は、下鎌田小学校区・瑞江第二中学校区です。
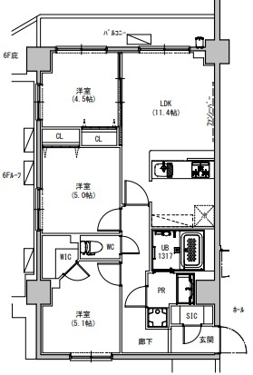
S-RESIDENCE瑞江 702号室の間取り
間取り:3LDK
間取詳細:3LDK
専有面積:62.10㎡
方位:北
部屋位置:その他
S-RESIDENCE瑞江 702号室の設備
キッチン
カウンターキッチン
バス・トイレ
バス・トイレ別
追い焚き
浴室乾燥機
温水洗浄便座
独立洗面台
玄関
TVモニタ付インターホン
オートロック
収納
ウォークインクローゼット
室内設備
エアコン
位置・立地
2階以上
建物設備
駐輪場
バイク置き場
ライフステージ
一人暮らしに人気の設備
カップルに人気の設備
家族に人気の設備
夫婦に人気の設備
三世代で人気の設備
こだわり
雨の日でも洗濯したい
趣味
服やおしゃれが好き
推し活グッズを飾りたい
S-RESIDENCE瑞江 702号室の賃貸契約情報
毎月支払う |
家賃28万円/月共益費15,000円/月 |
|---|---|
初期費用 |
敷金-礼金-保証金-敷引き償却金- |
更新料 |
- |
鍵交換費用 |
- |
室内清掃費用 |
- |
火災保険料 |
22,000円 |
駐車場料金 |
空無し |
損保・ |
借家賠付きの火災保険にご加入いただきます。 |
保証会社 |
|
契約期間 |
2年 |
入居可能日 |
2026年04月中旬 |
フリーレント期間 |
- |
取引形態 |
一般媒介 |
備考 |
- |
S-RESIDENCE瑞江 702号室の建物情報
建物名称 |
S-RESIDENCE瑞江 |
|---|---|
最寄駅 |
|
所在地 |
東京都江戸川区瑞江 |
階層 |
7階部分(地上8階建) |
構造 |
RC |
築年数 |
2024年4月(築2年) |
駐車場 |
空無し |
小学校学区 |
下鎌田小学校 |
中学校学区 |
瑞江第二中学校 |
- 学区データについて
- ※学区データは必ずしも正確とは限りません。詳細に関しては最寄店舗または各自治体の教育委員会に必ずご確認ください。
無料この物件に問い合わせ
- S-RESIDENCE瑞江 702号室

-
28万円
(共益費
15,000円)
- 敷
- -
- 礼
- -
- 保
- -
- 償
- -
S-RESIDENCE瑞江 702号室の物件のお問い合わせ先・取り扱い店舗
ハウスコム 事業戦略室
- アクセス
-
山手線「品川駅」港南口徒歩3分
- 住所
- 〒108-0075 東京都港区港南2-16-1 品川イーストワンタワー9階
- 営業時間
- 10:00~17:00
- 定休日
- 土曜日・日曜日(祝日定休)
- 営業エリア
- 北区、荒川区、豊島区、文京区、台東区、中央区、新宿区、千代田区、渋谷区、港区、品川区
- 取引態様
- 賃貸仲介業


























