レオパレスサンスクリットササB 103号室(1階/1K)の賃貸物件(賃貸アパート)
神奈川県相模原市緑区にあるレオパレスサンスクリットササB 103号室は温水洗浄便座、エアコン、ロフト付、1階、CATVなどが特徴です。最寄り駅の横浜線橋本駅からバスで11分、相模原協同病院入口から徒歩3分です。レオパレスサンスクリットササB 103号室の詳細はハウスコム 橋本店までお気軽にお問い合わせください!
情報更新日:
次回更新予定日:
※次回更新予定日について:お店側では順次空室確認を行っていますが、次回更新予定日までに空室確認が行えない場合には、この物件情報は自動的に削除されます。
レオパレスサンスクリットササB 103号室の賃貸物件部屋概要
家賃 |
6.4万円
初期費用を |
|---|---|
共益費 |
5,000円
入居可能時期 |
敷金/礼金 |
- / 64,000円 |
保証金/ |
- / - |
最寄駅 |
|
所在地 |
神奈川県相模原市緑区下九沢 |
部屋番号 |
103号室 |
間取り |
1K(洋6) |
専有面積 |
19.87㎡ |
築年数 |
2004年4月(築22年) |
階数 |
1階部分(地上2階建) |
方位・位置 |
南西 / その他 |
物件種別 |
賃貸アパート |
構造 |
木造 |
駐車場 |
無 |
小学校学区 |
二本松小学校 |
中学校学区 |
内出中学校 |
他の空き部屋 |
ー |
- 学区データについて
- ※学区データは必ずしも正確とは限りません。詳細に関しては最寄店舗または各自治体の教育委員会に必ずご確認ください。
レオパレスサンスクリットササB 103号室の特徴
契約条件
敷金が無料なため、初期費用が比較的安くなる傾向にあります。
セキュリティ
この物件の建物には、宅配ボックスが設置されております。
室内設備
電気コンロが備え付けられています。 トイレは、温水洗浄便座機能付きになります。 洗濯に便利な設備として、室内洗濯機置場があります。
居室状況
居室には、ロフトが設置されており大規模な収納スペースやセパレートされた寝室として活用できます。 エアコンが設置されています。
建物設備共用部分
建物の共用スペースに、急な外出や不在がちのご家庭の荷物受け取りに便利な宅配ボックスが設置されています。
周辺施設
この物件の学区は、二本松小学校区・内出中学校区です。近くには、徒歩12分(950m)でグルメシティ二本松店があります。
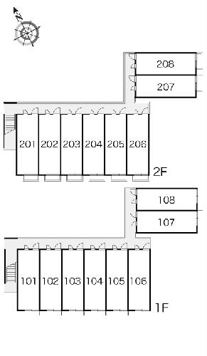
レオパレスサンスクリットササB 103号室の間取り
間取り:1K
間取詳細:1K(洋6)
専有面積:19.87㎡
方位:南西
部屋位置:その他
レオパレスサンスクリットササB 103号室の設備
キッチン
電気コンロ
バス・トイレ
バス・トイレ別
温水洗浄便座
玄関
宅配ボックス
室内設備
エアコン
室内洗濯機置場
ロフト付
位置・立地
1階
インフラ
インターネット可
CATV
ライフステージ
一人暮らしに人気の設備
カップルに人気の設備
家族に人気の設備
夫婦に人気の設備
三世代で人気の設備
トレンド
ミニマリスト
こだわり
雨の日でも洗濯したい
寝るためだけの部屋
レオパレスサンスクリットササB 103号室の賃貸契約情報
毎月支払う |
家賃6.4万円/月共益費5,000円/月 |
|---|---|
初期費用 |
敷金-礼金64,000円保証金-敷引き償却金- |
更新料 |
- |
鍵交換費用 |
16,500円 |
室内清掃費用 |
41,800円 |
抗菌施工(任意) |
23,760円 |
駐車場料金 |
無 |
損保・ |
借家賠付きの火災保険にご加入いただきます。 |
保証会社 |
加入要 保証会社利用料:保証料:83390円(契約内容により100~120%で変動有)※記載金額は120%の場合 |
契約期間 |
- |
入居可能日 |
2026年04月下旬 |
フリーレント期間 |
- |
取引形態 |
一般媒介 |
備考 |
鍵交換費10260円、抗菌施工(任意)17712円から23328円(税込) |
レオパレスサンスクリットササB 103号室の建物情報
建物名称 |
レオパレスサンスクリットササB |
|---|---|
最寄駅 |
|
所在地 |
神奈川県相模原市緑区下九沢 |
階層 |
1階部分(地上2階建) |
構造 |
木造 |
築年数 |
2004年4月(築22年) |
駐車場 |
無 |
小学校学区 |
二本松小学校 |
中学校学区 |
内出中学校 |
- 学区データについて
- ※学区データは必ずしも正確とは限りません。詳細に関しては最寄店舗または各自治体の教育委員会に必ずご確認ください。
無料この物件に問い合わせ
- レオパレスサンスクリットササB 103号室

-
6.4万円
(共益費
5,000円)
- 敷
- -
- 礼
- 64,000円
- 保
- -
- 償
- -
レオパレスサンスクリットササB 103号室の物件のお問い合わせ先・取り扱い店舗
ハウスコム 橋本店
- アクセス
-
横浜線「橋本駅」北口徒歩1分
- 住所
- 〒252-0143 神奈川県相模原市緑区橋本6−2−2 B’sタワー橋本E棟2階
- 営業時間
- 10:00~18:00
- 定休日
- 水曜日
- 営業エリア
- 相模原市、町田市、八王子市、多摩市
- 取引態様
- 賃貸仲介業





















