文蔵の完工年月(2002年3月)築の賃貸マンション ***号室(3階/2LDK)の賃貸物件(賃貸マンション)
埼玉県さいたま市南区にある文蔵の完工年月(2002年3月)築の賃貸マンション ***号室はシステムキッチン、バス・トイレ別、独立洗面台、クローゼット、エアコンなどが特徴です。最寄り駅の京浜東北・根岸線南浦和駅から徒歩10分です。文蔵の完工年月(2002年3月)築の賃貸マンション ***号室の詳細はハウスコム 川口店までお気軽にお問い合わせください!
情報更新日:
次回更新予定日:
※次回更新予定日について:お店側では順次空室確認を行っていますが、次回更新予定日までに空室確認が行えない場合には、この物件情報は自動的に削除されます。
文蔵の完工年月(2002年3月)築の賃貸マンション ***号室の賃貸物件部屋概要
家賃 |
13.7万円
初期費用を |
|---|---|
共益費 |
10,000円
入居可能時期 |
敷金/礼金 |
1ヶ月 / 2ヶ月 |
保証金/ |
- / - |
最寄駅 |
|
所在地 |
埼玉県さいたま市南区文蔵 |
部屋番号 |
***号室 |
間取り |
2LDK(他10.5・K2.6・和6・洋5) |
専有面積 |
55.00㎡ |
築年数 |
2002年3月(築24年) |
階数 |
3階部分(地上8階建) |
方位・位置 |
東 / その他 |
物件種別 |
賃貸マンション |
構造 |
RC |
駐車場 |
- |
小学校学区 |
文蔵小学校 |
中学校学区 |
岸中学校 |
他の空き部屋 |
***号室 ***号室 |
- 学区データについて
- ※学区データは必ずしも正確とは限りません。詳細に関しては最寄店舗または各自治体の教育委員会に必ずご確認ください。
文蔵の完工年月(2002年3月)築の賃貸マンション ***号室の特徴
セキュリティ
この物件の建物には、オートロックが設置されております。
室内設備
システムキッチンが備え付けられています。 女性に嬉しい設備の独立した洗面化粧台があります。
居室状況
居室には、和室の居室もあり、子育てやリラックススペースとしての利用もできます。 お部屋の床は、フローリングとなっており、エアコンが設置されています。 収納スペースとして、基本的な居室にクローゼットがあります。
建物設備共用部分
建物の共用スペースに、日々の出入に便利なエレベーターが設置されています。 駐輪場が利用できます。
周辺施設
この物件の学区は、文蔵小学校区・岸中学校区です。
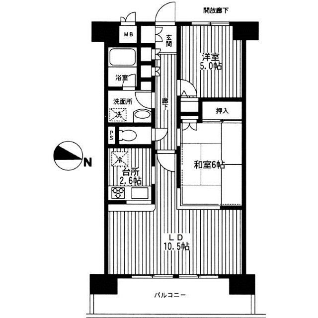
文蔵の完工年月(2002年3月)築の賃貸マンション ***号室の間取り
間取り:2LDK
間取詳細:2LDK(他10.5・K2.6・和6・洋5)
専有面積:55.00㎡
方位:東
部屋位置:その他
文蔵の完工年月(2002年3月)築の賃貸マンション ***号室の設備
キッチン
システムキッチン
バス・トイレ
バス・トイレ別
独立洗面台
玄関
オートロック
収納
クローゼット
室内設備
エアコン
フローリング
和室あり
位置・立地
2階以上
建物設備
エレベーター
駐輪場
ライフステージ
一人暮らしに人気の設備
カップルに人気の設備
家族に人気の設備
夫婦に人気の設備
三世代で人気の設備
こだわり
洋室で暮らしたい
文蔵の完工年月(2002年3月)築の賃貸マンション ***号室の賃貸契約情報
毎月支払う |
家賃13.7万円/月共益費10,000円/月 |
|---|---|
初期費用 |
敷金1ヶ月 (13.7万円)礼金2ヶ月 (27.4万円)保証金-敷引き償却金- |
更新料 |
137,000円 |
鍵交換費用 |
27,500円 |
室内清掃費用 |
- |
入居者限定会員サービス会費/2年 |
11,000円 |
駐車場料金 |
- |
損保・ |
借家賠付きの火災保険にご加入いただきます。 |
保証会社 |
加入要 保証会社利用料:【IRS①】IUCレジデンシャルサポート |
契約期間 |
2年 |
入居可能日 |
2026年05月下旬 |
フリーレント期間 |
- |
取引形態 |
一般媒介 |
備考 |
- |
文蔵の完工年月(2002年3月)築の賃貸マンション ***号室の建物情報
建物名称 |
文蔵の完工年月(2002年3月)築の賃貸マンション |
|---|---|
最寄駅 |
|
所在地 |
埼玉県さいたま市南区文蔵 |
階層 |
3階部分(地上8階建) |
構造 |
RC |
築年数 |
2002年3月(築24年) |
駐車場 |
- |
小学校学区 |
文蔵小学校 |
中学校学区 |
岸中学校 |
- 学区データについて
- ※学区データは必ずしも正確とは限りません。詳細に関しては最寄店舗または各自治体の教育委員会に必ずご確認ください。
無料この物件に問い合わせ
- 文蔵の完工年月(2002年3月)築の賃貸マンション ***号室

-
13.7万円
(共益費
10,000円)
- 敷
- 1ヶ月
- 礼
- 2ヶ月
- 保
- -
- 償
- -
文蔵の完工年月(2002年3月)築の賃貸マンション ***号室の物件のお問い合わせ先・取り扱い店舗
ハウスコム 川口店
- アクセス
-
京浜東北・根岸線「川口駅」東口徒歩1分
- 住所
- 〒332-0017 埼玉県川口市栄町3丁目5−1 高梨ビル 3F
- 営業時間
- 10:00~18:00
- 定休日
- なし
- 営業エリア
- 川口市・戸田市・蕨市・さいたま市・東京都北区
- 取引態様
- 賃貸仲介業


























