ライオンズアーバンシティ木場 407号室(4階/1DK)の賃貸物件(賃貸マンション)
東京都江東区にあるライオンズアーバンシティ木場 407号室はガスコンロ二口以上、オートロック、室内洗濯機置場、学生限定・歓迎、保証人不要などが特徴です。最寄り駅の東京メトロ 東西線木場駅から徒歩4分です。ライオンズアーバンシティ木場 407号室の詳細はハウスコム 押上店までお気軽にお問い合わせください!
情報更新日:
次回更新予定日:
※次回更新予定日について:お店側では順次空室確認を行っていますが、次回更新予定日までに空室確認が行えない場合には、この物件情報は自動的に削除されます。
ライオンズアーバンシティ木場 407号室の賃貸物件部屋概要
家賃 |
12.9万円
初期費用を |
|---|---|
共益費 |
8,000円
入居可能時期 |
敷金/礼金 |
1ヶ月 / 1ヶ月 |
保証金/ |
- / - |
最寄駅 |
|
所在地 |
東京都江東区木場 |
部屋番号 |
407号室 |
間取り |
1DK |
専有面積 |
35.05㎡ |
築年数 |
1998年1月(築29年) |
階数 |
4階部分(地上8階地下1階建) |
方位・位置 |
北 / その他 |
物件種別 |
賃貸マンション |
構造 |
RC |
駐車場 |
- |
小学校学区 |
平久小学校 |
中学校学区 |
深川第八中学校 |
他の空き部屋 |
ー |
- 学区データについて
- ※学区データは必ずしも正確とは限りません。詳細に関しては最寄店舗または各自治体の教育委員会に必ずご確認ください。
ライオンズアーバンシティ木場 407号室の特徴
-
一人暮らしに人気の設備

-
カップルに人気の設備

-
家族に人気の設備

-
夫婦に人気の設備

-
三世代で人気の設備

-
外で子どもと遊びたい

-
身だしなみに気をつかいたい

-
雨の日でも洗濯したい

-
洋室で暮らしたい

-
コスパ重視のリフォーム部屋

-
服やおしゃれが好き

-
ガーデニングが好き

契約条件
この物件は、入居者が学生限定もしくは歓迎で2人入居もご契約できます。 また、ご契約時に保証人は不要です。
セキュリティ
この物件の建物には、オートロックや宅配ボックスが設置されております。
室内設備
システムキッチンには、2つ以上のガスコンロが備え付けられています。 トイレは、温水洗浄便座機能付きになります。 女性に嬉しい設備の独立した洗面化粧台があります。 洗濯に便利な設備として、室内洗濯機置場があります。浴室乾燥機も設置されているので、梅雨時の生乾き臭も比較的防ぐことができます。
居室状況
お部屋の床は、フローリングとなっており、エアコンが設置されています。 収納スペースとして、通常よりも収納力の高いウォークインクローゼット、玄関にはシューズボックスがあります。
建物設備共用部分
居室外の専有スペースとして、洗濯物を干すなどの用途として利用できるバルコニーがあります。 建物の共用スペースに、日々の出入に便利なエレベーターや、急な外出や不在がちのご家庭の荷物受け取りに便利な宅配ボックスが設置されています。
周辺施設
この物件の学区は、平久小学校区・深川第八中学校区です。
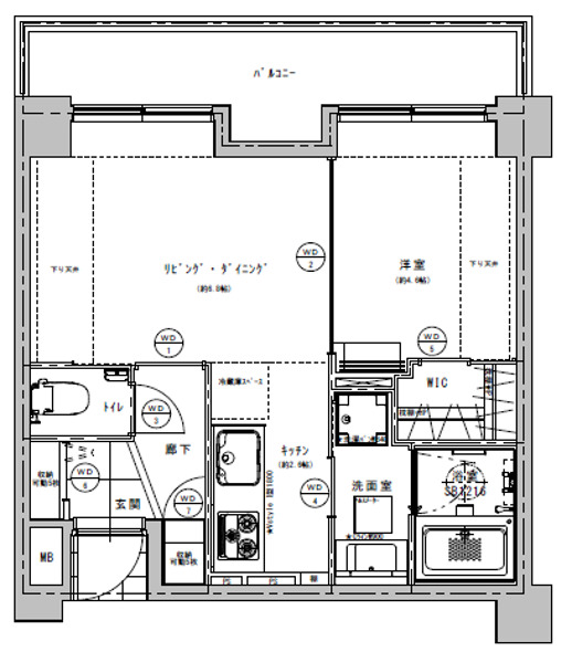
ライオンズアーバンシティ木場 407号室の間取り
間取り:1DK
間取詳細:1DK
専有面積:35.05㎡
方位:北
部屋位置:その他
ライオンズアーバンシティ木場 407号室の設備
キッチン
システムキッチン
ガスコンロ
ガスコンロ二口以上
バス・トイレ
バス・トイレ別
浴室乾燥機
温水洗浄便座
独立洗面台
玄関
オートロック
宅配ボックス
収納
ウォークインクローゼット
シューズボックス
バルコニー
バルコニー
ルーフバルコニー
室内設備
エアコン
フローリング
室内洗濯機置場
リノベーション済
位置・立地
2階以上
インフラ
インターネット可
BS
都市ガス
建物設備
エレベーター
分譲賃貸
入居条件
2人入居可
学生限定・歓迎
保証人不要
ライフステージ
一人暮らしに人気の設備
カップルに人気の設備
家族に人気の設備
夫婦に人気の設備
三世代で人気の設備
こだわり
外で子どもと遊びたい
身だしなみに気をつかいたい
雨の日でも洗濯したい
洋室で暮らしたい
コスパ重視のリフォーム部屋
趣味
服やおしゃれが好き
ガーデニングが好き
ライオンズアーバンシティ木場 407号室の賃貸契約情報
毎月支払う |
家賃12.9万円/月共益費8,000円/月 |
|---|---|
初期費用 |
敷金1ヶ月 (12.9万円)礼金1ヶ月 (12.9万円)保証金-敷引き償却金- |
更新料 |
- |
鍵交換費用 |
33,000円 |
室内清掃費用 |
59,400円 |
シーラプレミアムクラブ |
24,200円 |
駐車場料金 |
- |
損保・ |
借家賠付きの火災保険にご加入いただきます。 |
保証会社 |
加入要 保証会社:エルズサポート 保証会社利用料:初回50%、月額保証料700円、月額事務手数料330円~ 外国籍の方:GTNを利用。初回保証料100%(最低保証料40,000円)、月額保証料1,000円 |
契約期間 |
定期借家 2年 |
入居可能日 |
2026年05月上旬 |
フリーレント期間 |
- |
取引形態 |
一般媒介 |
備考 |
- |
ライオンズアーバンシティ木場 407号室の建物情報
建物名称 |
ライオンズアーバンシティ木場 |
|---|---|
最寄駅 |
|
所在地 |
東京都江東区木場 |
階層 |
4階部分(地上8階地下1階建) |
構造 |
RC |
築年数 |
1998年1月(築29年) |
駐車場 |
- |
小学校学区 |
平久小学校 |
中学校学区 |
深川第八中学校 |
- 学区データについて
- ※学区データは必ずしも正確とは限りません。詳細に関しては最寄店舗または各自治体の教育委員会に必ずご確認ください。
無料この物件に問い合わせ
- ライオンズアーバンシティ木場 407号室

-
12.9万円
(共益費
8,000円)
- 敷
- 1ヶ月
- 礼
- 1ヶ月
- 保
- -
- 償
- -
ライオンズアーバンシティ木場 407号室の物件のお問い合わせ先・取り扱い店舗
ハウスコム 押上店
- アクセス
-
東京メトロ 半蔵門線「押上駅」B1出口徒歩1分
- 住所
- 〒130-0002 東京都墨田区業平4丁目16−2 三橋ビル 1F
- 営業時間
- 10:00~18:00
- 定休日
- 水曜日
- 営業エリア
- 墨田区・江東区・中央区・台東区・江戸川区・葛飾区・足立区・荒川区
- 取引態様
- 賃貸仲介業









