プラザ・ドゥ・クレール ***号室(1階/1K)の賃貸物件(賃貸アパート)
埼玉県越谷市にあるプラザ・ドゥ・クレール ***号室はTVモニタ付インターホン、エアコン、ロフト付、1階、インターネット可などが特徴です。最寄り駅の東武スカイツリーライン・伊勢崎線・大師線大袋駅から徒歩4分です。プラザ・ドゥ・クレール ***号室の詳細はハウスコム 東川口店までお気軽にお問い合わせください!
情報更新日:
次回更新予定日:
※次回更新予定日について:お店側では順次空室確認を行っていますが、次回更新予定日までに空室確認が行えない場合には、この物件情報は自動的に削除されます。
プラザ・ドゥ・クレール ***号室の賃貸物件部屋概要
家賃 |
3.5万円
初期費用を |
|---|---|
共益費 |
3,000円
入居可能時期 |
敷金/礼金 |
- / - |
保証金/ |
- / - |
最寄駅 |
|
所在地 |
埼玉県越谷市大字袋山 |
部屋番号 |
***号室 |
間取り |
1K |
専有面積 |
16.00㎡ |
築年数 |
1990年7月(築36年) |
階数 |
1階部分(地上2階建) |
方位・位置 |
ー / その他 |
物件種別 |
賃貸アパート |
構造 |
木造 |
駐車場 |
空無し |
小学校学区 |
大袋東小学校 |
中学校学区 |
大袋中学校 |
他の空き部屋 |
ー |
- 学区データについて
- ※学区データは必ずしも正確とは限りません。詳細に関しては最寄店舗または各自治体の教育委員会に必ずご確認ください。
プラザ・ドゥ・クレール ***号室の特徴
契約条件
敷金と礼金が無料なため、初期費用が比較的安くなる傾向にあります。
セキュリティ
来客時には居室内のテレビモニターにて訪問者の顔を確認することができます。
居室状況
居室には、ロフトが設置されており大規模な収納スペースやセパレートされた寝室として活用できます。 エアコンが設置されています。 インターネットも無料で入居後すぐ生活が始められます。
周辺施設
この物件の学区は、大袋東小学校区・大袋中学校区です。
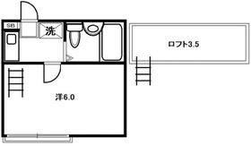
プラザ・ドゥ・クレール ***号室の間取り
間取り:1K
間取詳細:1K
専有面積:16.00㎡
方位:ー
部屋位置:その他
プラザ・ドゥ・クレール ***号室の設備
玄関
TVモニタ付インターホン
室内設備
エアコン
ロフト付
位置・立地
1階
インフラ
インターネット可
CATV
BS
ライフステージ
一人暮らしに人気の設備
トレンド
ミニマリスト
お得な条件
インターネット無料
プラザ・ドゥ・クレール ***号室の賃貸契約情報
毎月支払う |
家賃3.5万円/月共益費3,000円/月 |
|---|---|
初期費用 |
敷金-礼金-保証金-敷引き償却金- |
更新料 |
35,000円 |
鍵交換費用 |
- |
室内清掃費用 |
- |
駐車場料金 |
空無し |
損保・ |
借家賠付きの火災保険にご加入いただきます。 |
保証会社 |
加入要 保証会社利用料:初回保証料賃料等総額の40%~(最低保証料18000円) |
契約期間 |
2年 |
入居可能日 |
相談 |
フリーレント期間 |
- |
取引形態 |
一般媒介 |
備考 |
- |
プラザ・ドゥ・クレール ***号室の建物情報
建物名称 |
プラザ・ドゥ・クレール |
|---|---|
最寄駅 |
|
所在地 |
埼玉県越谷市大字袋山 |
階層 |
1階部分(地上2階建) |
構造 |
木造 |
築年数 |
1990年7月(築36年) |
駐車場 |
空無し |
小学校学区 |
大袋東小学校 |
中学校学区 |
大袋中学校 |
1/11 外観
- 学区データについて
- ※学区データは必ずしも正確とは限りません。詳細に関しては最寄店舗または各自治体の教育委員会に必ずご確認ください。
無料この物件に問い合わせ
- プラザ・ドゥ・クレール ***号室

-
3.5万円
(共益費
3,000円)
- 敷
- -
- 礼
- -
- 保
- -
- 償
- -
プラザ・ドゥ・クレール ***号室の物件のお問い合わせ先・取り扱い店舗
ハウスコム 東川口店
駅徒歩3分以内
駅徒歩5分以内
土日営業
- アクセス
-
武蔵野線「東川口駅」南口徒歩3分
- 住所
- 〒333-0811 埼玉県川口市戸塚2丁目21−34 アルトピアーノ 1階
- 営業時間
- 10:00~18:00
- 定休日
- 水曜日
- 営業エリア
- 川口市内・さいたま市内・越谷市、草加市
- 取引態様
- 賃貸仲介業
お問い合わせNo. HC4-3100761-102-0182






















