ザ・パークハビオ川口 401号室(4階/1DK)の賃貸物件(賃貸マンション)
埼玉県川口市にあるザ・パークハビオ川口 401号室はシステムキッチン、浴室乾燥機、TVモニタ付インターホン、角部屋、即入居可などが特徴です。最寄り駅の京浜東北・根岸線川口駅から徒歩4分です。ザ・パークハビオ川口 401号室の詳細はハウスコム 東川口店までお気軽にお問い合わせください!
情報更新日:
次回更新予定日:
※次回更新予定日について:お店側では順次空室確認を行っていますが、次回更新予定日までに空室確認が行えない場合には、この物件情報は自動的に削除されます。
ザ・パークハビオ川口 401号室の賃貸物件部屋概要
家賃 |
10.7万円
初期費用を |
|---|---|
共益費 |
15,000円
入居可能時期 |
敷金/礼金 |
107,000円 / - |
保証金/ |
- / - |
最寄駅 |
|
所在地 |
埼玉県川口市本町 |
部屋番号 |
401号室 |
間取り |
1DK(洋3.1・D4.3) |
専有面積 |
27.96㎡ |
築年数 |
2023年9月(築3年) |
階数 |
4階部分(地上10階建) |
方位・位置 |
南西 / 角部屋 |
物件種別 |
賃貸マンション |
構造 |
RC |
駐車場 |
無 |
小学校学区 |
本町小学校 |
中学校学区 |
南中学校 |
他の空き部屋 |
***号室 306号室 601号室 804号室 |
- 学区データについて
- ※学区データは必ずしも正確とは限りません。詳細に関しては最寄店舗または各自治体の教育委員会に必ずご確認ください。
ザ・パークハビオ川口 401号室の特徴
契約条件
ペットの飼育や楽器演奏もご相談ください。 礼金が無料なため、初期費用が比較的安くなる傾向にあります。
セキュリティ
この物件の建物には、オートロックや防犯カメラや宅配ボックスが設置されており、来客時には居室内のテレビモニターにて訪問者の顔を確認することができます。
室内設備
システムキッチンが備え付けられています。 トイレは、温水洗浄便座機能付きになります。 洗濯に便利な設備として、室内洗濯機置場があります。浴室乾燥機も設置されているので、梅雨時の生乾き臭も比較的防ぐことができます。
居室状況
お部屋の床は、フローリングとなっており、エアコンが設置されています。 インターネットも無料で入居後すぐ生活が始められます。
建物設備共用部分
建物の共用スペースに、日々の出入に便利なエレベーターや、いざという時の防犯カメラや、急な外出や不在がちのご家庭の荷物受け取りに便利な宅配ボックスが設置されています。
周辺施設
この物件の学区は、本町小学校区・南中学校区です。
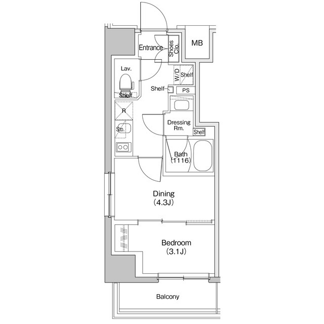
ザ・パークハビオ川口 401号室の間取り
間取り:1DK
間取詳細:1DK(洋3.1・D4.3)
専有面積:27.96㎡
方位:南西
部屋位置:角部屋
ザ・パークハビオ川口 401号室の設備
キッチン
システムキッチン
バス・トイレ
バス・トイレ別
浴室乾燥機
温水洗浄便座
玄関
TVモニタ付インターホン
オートロック
宅配ボックス
室内設備
エアコン
フローリング
室内洗濯機置場
位置・立地
2階以上
角部屋
インフラ
インターネット可
BS
CS
建物設備
エレベーター
防犯カメラ
入居条件
ペット可・相談
楽器可・相談
即入居可
ライフステージ
一人暮らしに人気の設備
カップルに人気の設備
家族に人気の設備
夫婦に人気の設備
三世代で人気の設備
こだわり
セキュリティ対策重視
雨の日でも洗濯したい
洋室で暮らしたい
趣味
オークション・通販が好き
お得な条件
フリーレント
インターネット無料
ザ・パークハビオ川口 401号室の賃貸契約情報
毎月支払う |
家賃10.7万円/月共益費15,000円/月 |
|---|---|
初期費用 |
敷金107,000円礼金-保証金-敷引き償却金- |
更新料 |
- |
鍵交換費用 |
- |
室内清掃費用 |
- |
駐車場料金 |
無 |
損保・ |
借家賠付きの火災保険にご加入いただきます。 |
保証会社 |
加入要 保証会社利用料:日本セーフティー 初年度委託料:賃料等合計額の50%(最低保証料2万円)2年目以降:1年毎1万円 |
契約期間 |
- |
入居可能日 |
即入居可 |
フリーレント期間 |
1ヶ月 |
取引形態 |
一般媒介 |
備考 |
- |
ザ・パークハビオ川口 401号室の建物情報
建物名称 |
ザ・パークハビオ川口 |
|---|---|
最寄駅 |
|
所在地 |
埼玉県川口市本町 |
階層 |
4階部分(地上10階建) |
構造 |
RC |
築年数 |
2023年9月(築3年) |
駐車場 |
無 |
小学校学区 |
本町小学校 |
中学校学区 |
南中学校 |
- 学区データについて
- ※学区データは必ずしも正確とは限りません。詳細に関しては最寄店舗または各自治体の教育委員会に必ずご確認ください。
無料この物件に問い合わせ
- ザ・パークハビオ川口 401号室

-
10.7万円
(共益費
15,000円)
- 敷
- 107,000円
- 礼
- -
- 保
- -
- 償
- -
ザ・パークハビオ川口 401号室の物件のお問い合わせ先・取り扱い店舗
ハウスコム 東川口店
- アクセス
-
武蔵野線「東川口駅」南口徒歩3分
- 住所
- 〒333-0811 埼玉県川口市戸塚2丁目21−34 アルトピアーノ 1階
- 営業時間
- 10:00~18:00
- 定休日
- 水曜日
- 営業エリア
- 川口市内・さいたま市内・越谷市、草加市
- 取引態様
- 賃貸仲介業





































