ヴェラビスタ 303号室(3階/1LDK)の賃貸物件(賃貸マンション)
東京都昭島市にあるヴェラビスタ 303号室はシステムキッチン、ガスコンロ、追い焚き、バルコニー、ルームシェア可・相談などが特徴です。最寄り駅の青梅線中神駅から徒歩8分です。ヴェラビスタ 303号室の詳細はハウスコム 立川南口店までお気軽にお問い合わせください!
情報更新日:
次回更新予定日:
※次回更新予定日について:お店側では順次空室確認を行っていますが、次回更新予定日までに空室確認が行えない場合には、この物件情報は自動的に削除されます。
ヴェラビスタ 303号室の賃貸物件部屋概要
家賃 |
10万円
初期費用を |
|---|---|
共益費 |
4,000円
入居可能時期 |
敷金/礼金 |
1ヶ月 / 1.5ヶ月 |
保証金/ |
- / - |
最寄駅 |
|
所在地 |
東京都昭島市中神町 |
部屋番号 |
303号室 |
間取り |
1LDK(洋6.9・LDK12) |
専有面積 |
48.00㎡ |
築年数 |
2014年1月(築13年) |
階数 |
3階部分(地上3階建) |
方位・位置 |
南西 / その他 |
物件種別 |
賃貸マンション |
構造 |
鉄骨造 |
駐車場 |
12,100円 |
小学校学区 |
武蔵野小学校 |
中学校学区 |
瑞雲中学校 |
他の空き部屋 |
ー |
- 学区データについて
- ※学区データは必ずしも正確とは限りません。詳細に関しては最寄店舗または各自治体の教育委員会に必ずご確認ください。
ヴェラビスタ 303号室の特徴
-
一人暮らしに人気の設備

-
カップルに人気の設備

-
家族に人気の設備

-
夫婦に人気の設備

-
三世代で人気の設備

-
外で子どもと遊びたい

-
雨の日でも洗濯したい

-
洋室で暮らしたい

-
服やおしゃれが好き

-
オークション・通販が好き

-
ガーデニングが好き

契約条件
この物件は、入居者が学生限定もしくは歓迎で2人入居やルームシェアもご契約できます。 ペットの飼育もご相談ください。 また、ご契約時に保証人は不要です。
セキュリティ
この物件の建物には、オートロックや宅配ボックスが設置されており、来客時には居室内のテレビモニターにて訪問者の顔を確認することができます。
室内設備
システムキッチンには、ガスコンロが備え付けられています。 お風呂とトイレは別です。お風呂には、追い焚き機能が備わっています。 トイレは、温水洗浄便座機能付きになります。 女性に嬉しい設備のシャワーの付いている洗面化粧台があります。 洗濯に便利な設備として、室内洗濯機置場があります。浴室乾燥機も設置されているので、梅雨時の生乾き臭も比較的防ぐことができます。
居室状況
お部屋の床は、フローリングとなっており、エアコンが設置されています。 インターネットも無料で入居後すぐ生活が始められます。 収納スペースとして、基本的な居室にクローゼットを設置、通常よりも収納力の高いウォークインクローゼット、玄関にはシューズボックスがあります。
建物設備共用部分
居室外の専有スペースとして、洗濯物を干すなどの用途として利用できるバルコニーがあります。 建物の共用スペースに、急な外出や不在がちのご家庭の荷物受け取りに便利な宅配ボックスが設置されています。 駐輪場、バイク置き場が利用できます。
周辺施設
この物件の学区は、武蔵野小学校区・瑞雲中学校区です。近くには、徒歩8分(640m)で中神駅があります。
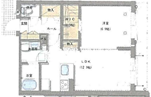
ヴェラビスタ 303号室の間取り
間取り:1LDK
間取詳細:1LDK(洋6.9・LDK12)
専有面積:48.00㎡
方位:南西
部屋位置:その他
ヴェラビスタ 303号室の設備
キッチン
システムキッチン
ガスコンロ
バス・トイレ
バス・トイレ別
追い焚き
浴室乾燥機
温水洗浄便座
独立洗面台
シャワー付洗面化粧台
玄関
TVモニタ付インターホン
オートロック
宅配ボックス
収納
クローゼット
ウォークインクローゼット
シューズボックス
バルコニー
バルコニー
ルーフバルコニー
室内設備
エアコン
フローリング
室内洗濯機置場
位置・立地
2階以上
最上階
インフラ
インターネット可
CATV
BS
プロパンガス
建物設備
駐輪場
バイク置き場
入居条件
ペット可・相談
2人入居可
ルームシェア可・相談
学生限定・歓迎
オンライン内見可
保証人不要
ライフステージ
一人暮らしに人気の設備
カップルに人気の設備
家族に人気の設備
夫婦に人気の設備
三世代で人気の設備
こだわり
外で子どもと遊びたい
雨の日でも洗濯したい
洋室で暮らしたい
趣味
服やおしゃれが好き
オークション・通販が好き
ガーデニングが好き
お得な条件
インターネット無料
ヴェラビスタ 303号室の賃貸契約情報
毎月支払う |
家賃10万円/月共益費4,000円/月 |
|---|---|
初期費用 |
敷金1ヶ月 (10万円)礼金1.5ヶ月 (15万円)保証金-敷引き償却金- |
更新料 |
100,000円 |
鍵交換費用 |
- |
室内清掃費用 |
- |
駐車場料金 |
12,100円 |
損保・ |
借家賠付きの火災保険にご加入いただきます。 |
保証会社 |
加入要 保証会社利用料:初回保証料:賃料総額の50% 年間:10000円 月額保証料:賃料総額の1.5% |
契約期間 |
2年 |
入居可能日 |
2026年04月下旬 |
フリーレント期間 |
- |
取引形態 |
一般媒介 |
備考 |
ペット飼育時は敷金1ヶ月 サニタリーパック:51700円 消火剤:6600円 24時間サポート:16500円 鍵交換費用:24200円 火災保険要加入:9100円~ |
ヴェラビスタ 303号室の建物情報
建物名称 |
ヴェラビスタ |
|---|---|
最寄駅 |
|
所在地 |
東京都昭島市中神町 |
階層 |
3階部分(地上3階建) |
構造 |
鉄骨造 |
築年数 |
2014年1月(築13年) |
駐車場 |
12,100円 |
小学校学区 |
武蔵野小学校 |
中学校学区 |
瑞雲中学校 |
- 学区データについて
- ※学区データは必ずしも正確とは限りません。詳細に関しては最寄店舗または各自治体の教育委員会に必ずご確認ください。
無料この物件に問い合わせ
- ヴェラビスタ 303号室

-
10万円
(共益費
4,000円)
- 敷
- 1ヶ月
- 礼
- 1.5ヶ月
- 保
- -
- 償
- -
ヴェラビスタ 303号室の物件のお問い合わせ先・取り扱い店舗
ハウスコム 立川南口店
- アクセス
-
中央本線(JR東日本)「立川駅」南口徒歩1分
- 住所
- 〒190-0023 東京都立川市柴崎町3丁目6−1 立川Nビル 1階
- 営業時間
- 10:00~18:00
- 定休日
- なし
- 営業エリア
- 立川市・日野市・昭島市・国立市・国分寺市・東大和市・武蔵村山市・福生市・あきる野市・羽村市・青梅市・西多摩郡
- 取引態様
- 賃貸仲介業





























