モア・ステージ千葉桜木参番館 313号室(3階/3LDK)の賃貸物件(賃貸マンション)
千葉県千葉市若葉区にあるモア・ステージ千葉桜木参番館 313号室は追い焚き、温水洗浄便座、独立洗面台、ルーフバルコニー、角部屋などが特徴です。最寄り駅の千葉都市モノレール桜木駅から徒歩10分です。モア・ステージ千葉桜木参番館 313号室の詳細はハウスコム 千葉店までお気軽にお問い合わせください!
情報更新日:
次回更新予定日:
※次回更新予定日について:お店側では順次空室確認を行っていますが、次回更新予定日までに空室確認が行えない場合には、この物件情報は自動的に削除されます。
モア・ステージ千葉桜木参番館 313号室の賃貸物件部屋概要
家賃 |
11.5万円
初期費用を |
|---|---|
共益費 |
-
入居可能時期 |
敷金/礼金 |
2ヶ月 / 1ヶ月 |
保証金/ |
- / - |
最寄駅 |
|
所在地 |
千葉県千葉市若葉区桜木 |
部屋番号 |
313号室 |
間取り |
3LDK(LDK14.8・洋6・洋6.1・洋6.5) |
専有面積 |
78.96㎡ |
築年数 |
1996年3月(築30年) |
階数 |
3階部分(地上4階建) |
方位・位置 |
南東 / 角部屋 |
物件種別 |
賃貸マンション |
構造 |
RC |
駐車場 |
無 |
小学校学区 |
桜木小学校 |
中学校学区 |
貝塚中学校 |
他の空き部屋 |
ー |
- 学区データについて
- ※学区データは必ずしも正確とは限りません。詳細に関しては最寄店舗または各自治体の教育委員会に必ずご確認ください。
モア・ステージ千葉桜木参番館 313号室の特徴
-
一人暮らしに人気の設備

-
カップルに人気の設備

-
家族に人気の設備

-
夫婦に人気の設備

-
三世代で人気の設備

-
外で子どもと遊びたい

-
身だしなみに気をつかいたい

-
雨の日でも洗濯したい

-
洋室で暮らしたい

-
料理が好き

-
服やおしゃれが好き

-
推し活グッズを飾りたい

-
ガーデニングが好き

セキュリティ
来客時には居室内のテレビモニターにて訪問者の顔を確認することができます。
室内設備
システムキッチンには、ガスコンロが備え付けられています。 お風呂とトイレは別です。お風呂には、追い焚き機能が備わっています。 トイレは、温水洗浄便座機能付きになります。 女性に嬉しい設備の独立した洗面化粧台があります。 洗濯に便利な設備として、室内洗濯機置場があります。
居室状況
お部屋の床は、フローリングとなっています。収納スペースとして、通常よりも収納力の高いウォークインクローゼットがあります。
建物設備共用部分
居室外の専有スペースとして、洗濯物を干すなどの用途として利用できるバルコニーがあります。 建物の共用スペースに、日々の出入に便利なエレベーターが設置されています。
周辺施設
この物件の学区は、桜木小学校区・貝塚中学校区です。
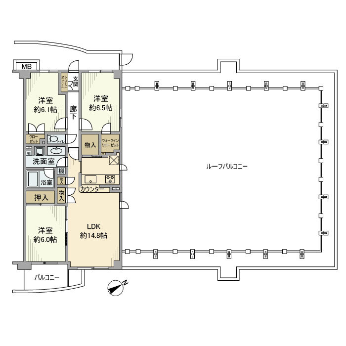
モア・ステージ千葉桜木参番館 313号室の間取り
間取り:3LDK
間取詳細:3LDK(LDK14.8・洋6・洋6.1・洋6.5)
専有面積:78.96㎡
方位:南東
部屋位置:角部屋
モア・ステージ千葉桜木参番館 313号室の設備
キッチン
システムキッチン
カウンターキッチン
ガスコンロ
バス・トイレ
バス・トイレ別
追い焚き
温水洗浄便座
独立洗面台
玄関
TVモニタ付インターホン
収納
ウォークインクローゼット
バルコニー
バルコニー
ルーフバルコニー
室内設備
フローリング
室内洗濯機置場
位置・立地
2階以上
角部屋
インフラ
都市ガス
建物設備
エレベーター
分譲賃貸
ライフステージ
一人暮らしに人気の設備
カップルに人気の設備
家族に人気の設備
夫婦に人気の設備
三世代で人気の設備
こだわり
外で子どもと遊びたい
身だしなみに気をつかいたい
雨の日でも洗濯したい
洋室で暮らしたい
趣味
料理が好き
服やおしゃれが好き
推し活グッズを飾りたい
ガーデニングが好き
モア・ステージ千葉桜木参番館 313号室の賃貸契約情報
毎月支払う |
家賃11.5万円/月共益費- |
|---|---|
初期費用 |
敷金2ヶ月 (23万円)礼金1ヶ月 (11.5万円)保証金-敷引き償却金- |
更新料 |
115,000円 |
鍵交換費用 |
- |
室内清掃費用 |
- |
駐車場登録料 1台(利用時のみ) |
11,000円 |
除菌施工料(契約時のみ) |
19,800円 |
駐車場料金 |
無 |
損保・ |
借家賠付きの火災保険にご加入いただきます。 |
保証会社 |
加入要 保証会社利用料:保証会社 要:初回 賃料総額100%+月額 賃料総額2%(最低1,000円) |
契約期間 |
2年 |
入居可能日 |
2026年04月上旬 |
フリーレント期間 |
- |
取引形態 |
一般媒介 |
備考 |
リロサポプラス加入必須 2500円 初期:駐車場登録料 1台(利用時のみ) 11000円 除菌施工料(契約時のみ) 19800円 保証会社利用必須 保証会社 要:初回 賃料総額100%月額 賃料総額2%(最低1,000円) |
モア・ステージ千葉桜木参番館 313号室の建物情報
建物名称 |
モア・ステージ千葉桜木参番館 |
|---|---|
最寄駅 |
|
所在地 |
千葉県千葉市若葉区桜木 |
階層 |
3階部分(地上4階建) |
構造 |
RC |
築年数 |
1996年3月(築30年) |
駐車場 |
無 |
小学校学区 |
桜木小学校 |
中学校学区 |
貝塚中学校 |
- 学区データについて
- ※学区データは必ずしも正確とは限りません。詳細に関しては最寄店舗または各自治体の教育委員会に必ずご確認ください。
無料この物件に問い合わせ
- モア・ステージ千葉桜木参番館 313号室

-
11.5万円
(共益費
-)
- 敷
- 2ヶ月
- 礼
- 1ヶ月
- 保
- -
- 償
- -
モア・ステージ千葉桜木参番館 313号室の物件のお問い合わせ先・取り扱い店舗
ハウスコム 千葉店
- アクセス
-
総武本線「千葉駅」東口徒歩1分
総武線・中央線各駅停車「千葉駅」東口徒歩1分
- 住所
- 〒260-0015 千葉県千葉市中央区富士見1丁目2−11 勝山ビル 4階
- 営業時間
- 10:00~18:00
- 定休日
- なし
- 営業エリア
- 千葉市内~千葉県内全域
- 取引態様
- 賃貸仲介業


