SYFORME MORISHITA 401号室(4階/2K)の賃貸物件(賃貸マンション)
東京都墨田区にあるSYFORME MORISHITA 401号室は独立洗面台、宅配ボックス、2階以上、BS、都市ガスなどが特徴です。最寄り駅の都営新宿線菊川駅から徒歩4分です。SYFORME MORISHITA 401号室の詳細はハウスコム 事業戦略室までお気軽にお問い合わせください!
情報更新日:
次回更新予定日:
※次回更新予定日について:お店側では順次空室確認を行っていますが、次回更新予定日までに空室確認が行えない場合には、この物件情報は自動的に削除されます。
SYFORME MORISHITA 401号室の賃貸物件部屋概要
家賃 |
12.5万円
初期費用を |
|---|---|
共益費 |
10,000円
入居可能時期 |
敷金/礼金 |
1ヶ月 / 1ヶ月 |
保証金/ |
- / - |
最寄駅 |
|
所在地 |
東京都墨田区菊川 |
部屋番号 |
401号室 |
間取り |
2K(洋4.3・洋4.6・K1.3) |
専有面積 |
28.49㎡ |
築年数 |
2020年2月(築7年) |
階数 |
4階部分(地上9階建) |
方位・位置 |
南 / 角部屋 |
物件種別 |
賃貸マンション |
構造 |
RC |
駐車場 |
- |
小学校学区 |
中和小学校 |
中学校学区 |
竪川中学校 |
他の空き部屋 |
ー |
- 学区データについて
- ※学区データは必ずしも正確とは限りません。詳細に関しては最寄店舗または各自治体の教育委員会に必ずご確認ください。
SYFORME MORISHITA 401号室の特徴
-
一人暮らしに人気の設備

-
カップルに人気の設備

-
家族に人気の設備

-
夫婦に人気の設備

-
三世代で人気の設備

-
外で子どもと遊びたい

-
雨の日でも洗濯したい

-
洋室で暮らしたい

-
オークション・通販が好き

-
ガーデニングが好き

契約条件
この物件は、2人入居もご契約できます。
セキュリティ
この物件の建物には、オートロックや防犯カメラや宅配ボックスが設置されております。
室内設備
システムキッチンが備え付けられています。 トイレは、温水洗浄便座機能付きになります。 女性に嬉しい設備の独立した洗面化粧台があります。 洗濯に便利な設備として、浴室乾燥機も設置されているので、梅雨時の生乾き臭も比較的防ぐことができます。
居室状況
お部屋の床は、フローリングとなっており、エアコンが設置されています。 インターネットも無料で入居後すぐ生活が始められます。 収納スペースとして、基本的な居室にクローゼットを設置、玄関にはシューズボックスがあります。
建物設備共用部分
居室外の専有スペースとして、洗濯物を干すなどの用途として利用できるバルコニーがあります。 建物の共用スペースに、日々の出入に便利なエレベーターや、いざという時の防犯カメラや、急な外出や不在がちのご家庭の荷物受け取りに便利な宅配ボックスが設置されています。
周辺施設
この物件の学区は、中和小学校区・竪川中学校区です。
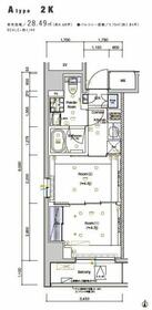
SYFORME MORISHITA 401号室の間取り
間取り:2K
間取詳細:2K(洋4.3・洋4.6・K1.3)
専有面積:28.49㎡
方位:南
部屋位置:角部屋
SYFORME MORISHITA 401号室の設備
キッチン
システムキッチン
バス・トイレ
バス・トイレ別
浴室乾燥機
温水洗浄便座
独立洗面台
玄関
オートロック
宅配ボックス
収納
クローゼット
シューズボックス
バルコニー
バルコニー
ルーフバルコニー
室内設備
エアコン
フローリング
位置・立地
2階以上
角部屋
南向き
インフラ
インターネット可
BS
CS
都市ガス
建物設備
エレベーター
防犯カメラ
入居条件
2人入居可
ライフステージ
一人暮らしに人気の設備
カップルに人気の設備
家族に人気の設備
夫婦に人気の設備
三世代で人気の設備
こだわり
外で子どもと遊びたい
雨の日でも洗濯したい
洋室で暮らしたい
趣味
オークション・通販が好き
ガーデニングが好き
お得な条件
インターネット無料
SYFORME MORISHITA 401号室の賃貸契約情報
毎月支払う |
家賃12.5万円/月共益費10,000円/月 |
|---|---|
初期費用 |
敷金1ヶ月 (12.5万円)礼金1ヶ月 (12.5万円)保証金-敷引き償却金- |
更新料 |
- |
鍵交換費用 |
33,000円 |
室内清掃費用 |
- |
SYLAプレミアムクラブ |
24,200円 |
室内清掃費用 |
52,800円 |
駐車場料金 |
- |
損保・ |
借家賠付きの火災保険にご加入いただきます。 |
保証会社 |
加入要 保証会社利用料:クレディセゾン 初回40%、以降10,000円/年(総賃料15万円以上:14,000円/年)~外国籍の方:GTNを利用。初回保証料100%(最低保証料40,000円)、月額保証料1,000円 |
契約期間 |
定期借家 2年 |
入居可能日 |
2026年05月下旬 |
フリーレント期間 |
- |
取引形態 |
一般媒介 |
備考 |
- |
SYFORME MORISHITA 401号室の建物情報
建物名称 |
SYFORME MORISHITA |
|---|---|
最寄駅 |
|
所在地 |
東京都墨田区菊川 |
階層 |
4階部分(地上9階建) |
構造 |
RC |
築年数 |
2020年2月(築7年) |
駐車場 |
- |
小学校学区 |
中和小学校 |
中学校学区 |
竪川中学校 |
- 学区データについて
- ※学区データは必ずしも正確とは限りません。詳細に関しては最寄店舗または各自治体の教育委員会に必ずご確認ください。
無料この物件に問い合わせ
- SYFORME MORISHITA 401号室

-
12.5万円
(共益費
10,000円)
- 敷
- 1ヶ月
- 礼
- 1ヶ月
- 保
- -
- 償
- -
SYFORME MORISHITA 401号室の物件のお問い合わせ先・取り扱い店舗
ハウスコム 事業戦略室
- アクセス
-
山手線「品川駅」港南口徒歩3分
- 住所
- 〒108-0075 東京都港区港南2-16-1 品川イーストワンタワー9階
- 営業時間
- 10:00~17:00
- 定休日
- 土曜日・日曜日(祝日定休)
- 営業エリア
- 北区、荒川区、豊島区、文京区、台東区、中央区、新宿区、千代田区、渋谷区、港区、品川区
- 取引態様
- 賃貸仲介業








