スペーシア梅屋敷 401号室(4階/1K)の賃貸物件(賃貸マンション)
東京都大田区にあるスペーシア梅屋敷 401号室はシステムキッチン、クローゼット、CATV、防犯カメラ、オンライン相談可などが特徴です。最寄り駅の京急本線梅屋敷駅から徒歩1分です。スペーシア梅屋敷 401号室の詳細はハウスコム 蒲田店までお気軽にお問い合わせください!
情報更新日:
次回更新予定日:
※次回更新予定日について:お店側では順次空室確認を行っていますが、次回更新予定日までに空室確認が行えない場合には、この物件情報は自動的に削除されます。
スペーシア梅屋敷 401号室の賃貸物件部屋概要
家賃 |
9.4万円
初期費用を |
|---|---|
共益費 |
10,000円
入居可能時期 |
敷金/礼金 |
- / - |
保証金/ |
- / - |
最寄駅 |
|
所在地 |
東京都大田区東蒲田 |
部屋番号 |
401号室 |
間取り |
1K(K0・洋7.1) |
専有面積 |
22.82㎡ |
築年数 |
2011年10月(築15年) |
階数 |
4階部分(地上14階建) |
方位・位置 |
北西 / その他 |
物件種別 |
賃貸マンション |
構造 |
RC |
駐車場 |
無 |
小学校学区 |
東蒲小学校 |
中学校学区 |
東蒲中学校 |
他の空き部屋 |
***号室 506号室 |
- 学区データについて
- ※学区データは必ずしも正確とは限りません。詳細に関しては最寄店舗または各自治体の教育委員会に必ずご確認ください。
スペーシア梅屋敷 401号室の特徴
契約条件
ご契約時に保証人は不要です。 敷金と礼金が無料なため、初期費用が比較的安くなる傾向にあります。
セキュリティ
この物件の建物には、オートロックや防犯カメラや宅配ボックスが設置されております。
室内設備
システムキッチンが備え付けられています。 洗濯に便利な設備として、室内洗濯機置場があります。浴室乾燥機も設置されているので、梅雨時の生乾き臭も比較的防ぐことができます。
居室状況
お部屋の床は、フローリングとなっており、エアコンが設置されています。 収納スペースとして、基本的な居室にクローゼットを設置、玄関にはシューズボックスがあります。
建物設備共用部分
居室外の専有スペースとして、洗濯物を干すなどの用途として利用できるバルコニーがあります。 建物の共用スペースに、日々の出入に便利なエレベーターや、いざという時の防犯カメラや、急な外出や不在がちのご家庭の荷物受け取りに便利な宅配ボックスが設置されています。
周辺施設
この物件の学区は、東蒲小学校区・東蒲中学校区です。
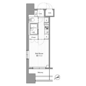
スペーシア梅屋敷 401号室の間取り
間取り:1K
間取詳細:1K(K0・洋7.1)
専有面積:22.82㎡
方位:北西
部屋位置:その他
スペーシア梅屋敷 401号室の設備
キッチン
システムキッチン
バス・トイレ
バス・トイレ別
浴室乾燥機
玄関
オートロック
宅配ボックス
収納
クローゼット
シューズボックス
バルコニー
バルコニー
ルーフバルコニー
室内設備
エアコン
フローリング
室内洗濯機置場
位置・立地
2階以上
インフラ
インターネット可
CATV
BS
CS
都市ガス
建物設備
エレベーター
防犯カメラ
入居条件
オンライン相談可
オンライン内見可
保証人不要
ライフステージ
一人暮らしに人気の設備
カップルに人気の設備
家族に人気の設備
夫婦に人気の設備
三世代で人気の設備
こだわり
外で子どもと遊びたい
雨の日でも洗濯したい
洋室で暮らしたい
趣味
ガーデニングが好き
スペーシア梅屋敷 401号室の賃貸契約情報
毎月支払う |
家賃9.4万円/月共益費10,000円/月 |
|---|---|
初期費用 |
敷金-礼金-保証金-敷引き償却金- |
更新料 |
94,000円 |
鍵交換費用 |
- |
室内清掃費用 |
- |
駐車場料金 |
無 |
損保・ |
借家賠付きの火災保険にご加入いただきます。 |
保証会社 |
加入要 保証会社利用料:賃料+管理費の50%~60%(別途 月次保証料、口座振替手数料、更新保証料等有り) |
契約期間 |
2年 |
入居可能日 |
2026年03月 |
フリーレント期間 |
- |
取引形態 |
一般媒介 |
備考 |
短期解約違約金:1年以内賃料の1カ月分 |
スペーシア梅屋敷 401号室の建物情報
建物名称 |
スペーシア梅屋敷 |
|---|---|
最寄駅 |
|
所在地 |
東京都大田区東蒲田 |
階層 |
4階部分(地上14階建) |
構造 |
RC |
築年数 |
2011年10月(築15年) |
駐車場 |
無 |
小学校学区 |
東蒲小学校 |
中学校学区 |
東蒲中学校 |
- 学区データについて
- ※学区データは必ずしも正確とは限りません。詳細に関しては最寄店舗または各自治体の教育委員会に必ずご確認ください。
無料この物件に問い合わせ
- スペーシア梅屋敷 401号室

-
9.4万円
(共益費
10,000円)
- 敷
- -
- 礼
- -
- 保
- -
- 償
- -
スペーシア梅屋敷 401号室の物件のお問い合わせ先・取り扱い店舗
ハウスコム 蒲田店
- アクセス
-
京浜東北・根岸線「蒲田駅」西口徒歩1分
- 住所
- 〒144-0051 東京都大田区西蒲田7丁目5−8 コパンビル 1階
- 営業時間
- 10:00~18:00
- 定休日
- なし
- 営業エリア
- 大田区、品川区、川崎市
- 取引態様
- 賃貸仲介業
























