ルフォンプログレ高田馬場ノース 306号室(3階/2LDK)の賃貸物件(賃貸マンション)
東京都新宿区にあるルフォンプログレ高田馬場ノース 306号室はシューズインクローゼット、フローリング、2階以上、CATV、エレベーターなどが特徴です。最寄り駅の山手線高田馬場駅から徒歩14分です。ルフォンプログレ高田馬場ノース 306号室の詳細はハウスコム 高田馬場店までお気軽にお問い合わせください!
情報更新日:
次回更新予定日:
※次回更新予定日について:お店側では順次空室確認を行っていますが、次回更新予定日までに空室確認が行えない場合には、この物件情報は自動的に削除されます。
ルフォンプログレ高田馬場ノース 306号室の賃貸物件部屋概要
家賃 |
26.6万円
初期費用を |
|---|---|
共益費 |
20,000円
入居可能時期 |
敷金/礼金 |
1ヶ月 / - |
保証金/ |
- / - |
最寄駅 |
|
所在地 |
東京都新宿区高田馬場 |
部屋番号 |
306号室 |
間取り |
2LDK(LDK11.8・洋4・洋3.4) |
専有面積 |
43.65㎡ |
築年数 |
新築 |
階数 |
3階部分(地上5階建) |
方位・位置 |
東 / その他 |
物件種別 |
賃貸マンション |
構造 |
RC |
駐車場 |
35,200円 |
小学校学区 |
戸塚第三小学校 |
中学校学区 |
新宿西戸山中学校 |
他の空き部屋 |
0103号室 0106号室 0112号室 0203号室 0204号室 0206号室 0208号室 0210号室 0211号室 0212号室 0213号室 0214号室 0216号室 0217号室 0218号室 0219号室 0221号室 0303号室 0304号室 0306号室 0308号室 0310号室 0311号室 0312号室 0313号室 0314号室 0316号室 0317号室 0318号室 0319号室 0321号室 0511号室 0512号室 103号室 106号室 112号室 203号室 204号室 206号室 208号室 210号室 211号室 212号室 213号室 214号室 216号室 217号室 218号室 219号室 221号室 303号室 304号室 308号室 310号室 311号室 312号室 313号室 314号室 316号室 317号室 318号室 319号室 321号室 511号室 512号室 |
- 学区データについて
- ※学区データは必ずしも正確とは限りません。詳細に関しては最寄店舗または各自治体の教育委員会に必ずご確認ください。
ルフォンプログレ高田馬場ノース 306号室の特徴
-
一人暮らしに人気の設備

-
カップルに人気の設備

-
家族に人気の設備

-
夫婦に人気の設備

-
三世代で人気の設備

-
セキュリティ対策重視

-
外で子どもと遊びたい

-
雨の日でも洗濯したい

-
洋室で暮らしたい

-
靴やスニーカーが好き

-
オークション・通販が好き

-
ガーデニングが好き

契約条件
この物件は、外国籍の方もご相談の上、2人入居もご契約できます。 ペットの飼育もご相談ください。 礼金が無料なため、初期費用が比較的安くなる傾向にあります。
セキュリティ
この物件の建物には、オートロックや防犯カメラや宅配ボックスが設置されており、来客時には居室内のテレビモニターにて訪問者の顔を確認することができます。
室内設備
システムキッチンには、ガスコンロが備え付けられています。 トイレは、温水洗浄便座機能付きになります。 女性に嬉しい設備の独立した洗面化粧台があります。 洗濯に便利な設備として、室内洗濯機置場があります。浴室乾燥機も設置されているので、梅雨時の生乾き臭も比較的防ぐことができます。
居室状況
お部屋の床は、フローリングとなっており、エアコンが設置されています。 照明器具が備え付けられており、インターネットも無料で入居後すぐ生活が始められます。 収納スペースとして、基本的な居室にクローゼットを設置、玄関にはシューズインクローゼットがあります。
建物設備共用部分
居室外の専有スペースとして、洗濯物を干すなどの用途として利用できるバルコニーがあります。 建物の共用スペースに、日々の出入に便利なエレベーターや、いざという時の防犯カメラや、急な外出や不在がちのご家庭の荷物受け取りに便利な宅配ボックスが設置されています。 駐輪場が利用できます。
周辺施設
この物件の学区は、戸塚第三小学校区・新宿西戸山中学校区です。
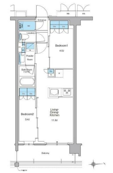
ルフォンプログレ高田馬場ノース 306号室の間取り
間取り:2LDK
間取詳細:2LDK(LDK11.8・洋4・洋3.4)
専有面積:43.65㎡
方位:東
部屋位置:その他
ルフォンプログレ高田馬場ノース 306号室の設備
キッチン
システムキッチン
ガスコンロ
バス・トイレ
バス・トイレ別
浴室乾燥機
温水洗浄便座
独立洗面台
玄関
TVモニタ付インターホン
オートロック
宅配ボックス
収納
クローゼット
シューズインクローゼット
シューズボックス
バルコニー
バルコニー
ルーフバルコニー
室内設備
エアコン
フローリング
室内洗濯機置場
照明器具付
位置・立地
2階以上
インフラ
インターネット可
CATV
BS
CS
都市ガス
建物設備
エレベーター
防犯カメラ
駐輪場
入居条件
ペット可・相談
2人入居可
外国人可・相談
オンライン相談可
ライフステージ
一人暮らしに人気の設備
カップルに人気の設備
家族に人気の設備
夫婦に人気の設備
三世代で人気の設備
こだわり
セキュリティ対策重視
外で子どもと遊びたい
雨の日でも洗濯したい
洋室で暮らしたい
趣味
靴やスニーカーが好き
オークション・通販が好き
ガーデニングが好き
お得な条件
インターネット無料
ルフォンプログレ高田馬場ノース 306号室の賃貸契約情報
毎月支払う |
家賃26.6万円/月共益費20,000円/月 |
|---|---|
初期費用 |
敷金1ヶ月 (26.6万円)礼金-保証金-敷引き償却金- |
更新料 |
- |
鍵交換費用 |
- |
室内清掃費用 |
- |
駐車場料金 |
35,200円 |
損保・ |
借家賠付きの火災保険にご加入いただきます。 |
保証会社 |
加入要 保証会社利用料:【新築プラン(2026年12月末まで)】初回保証料賃料共益費等20%、以後1年毎20% |
契約期間 |
定期借家 2年 |
入居可能日 |
2026年05月中旬 |
フリーレント期間 |
- |
取引形態 |
一般媒介 |
備考 |
清掃代:39600円 20平米超1375円/平米、エアコン清掃費用:16500円/台、ペット飼育時敷金1ヶ月(償却)追加 |
ルフォンプログレ高田馬場ノース 306号室の建物情報
建物名称 |
ルフォンプログレ高田馬場ノース |
|---|---|
最寄駅 |
|
所在地 |
東京都新宿区高田馬場 |
階層 |
3階部分(地上5階建) |
構造 |
RC |
築年数 |
新築 |
駐車場 |
35,200円 |
小学校学区 |
戸塚第三小学校 |
中学校学区 |
新宿西戸山中学校 |
- 学区データについて
- ※学区データは必ずしも正確とは限りません。詳細に関しては最寄店舗または各自治体の教育委員会に必ずご確認ください。
無料この物件に問い合わせ
- ルフォンプログレ高田馬場ノース 306号室

-
26.6万円
(共益費
20,000円)
- 敷
- 1ヶ月
- 礼
- -
- 保
- -
- 償
- -
ルフォンプログレ高田馬場ノース 306号室の物件のお問い合わせ先・取り扱い店舗
ハウスコム 高田馬場店
- アクセス
-
山手線「高田馬場駅」徒歩5分
- 住所
- 〒169-0075 東京都新宿区高田馬場1-17-18 マルシメビル1階
- 営業時間
- 10:00~18:00
- 定休日
- 水曜日
- 営業エリア
- 新宿区 豊島区 杉並区 中野区 文京区
- 取引態様
- 賃貸仲介業













