レオネクスト大塚 102号室(1階/1K)の賃貸物件(賃貸アパート)
東京都文京区にあるレオネクスト大塚 102号室は温水洗浄便座、TVモニタ付インターホン、室内洗濯機置場、1階、インターネット可などが特徴です。最寄り駅の東京メトロ 丸ノ内線新大塚駅から徒歩8分です。レオネクスト大塚 102号室の詳細はハウスコム 事業戦略室までお気軽にお問い合わせください!
情報更新日:
次回更新予定日:
※次回更新予定日について:お店側では順次空室確認を行っていますが、次回更新予定日までに空室確認が行えない場合には、この物件情報は自動的に削除されます。
レオネクスト大塚 102号室の賃貸物件部屋概要
家賃 |
11万円
初期費用を |
|---|---|
共益費 |
5,500円
入居可能時期 |
敷金/礼金 |
- / 110,000円 |
保証金/ |
- / - |
最寄駅 |
|
所在地 |
東京都文京区大塚 |
部屋番号 |
102号室 |
間取り |
1K |
専有面積 |
31.03㎡ |
築年数 |
2011年3月(築15年) |
階数 |
1階部分(地上2階建) |
方位・位置 |
ー / その他 |
物件種別 |
賃貸アパート |
構造 |
木造 |
駐車場 |
無 |
小学校学区 |
青柳小学校 |
中学校学区 |
音羽中学校 |
他の空き部屋 |
ー |
- 学区データについて
- ※学区データは必ずしも正確とは限りません。詳細に関しては最寄店舗または各自治体の教育委員会に必ずご確認ください。
レオネクスト大塚 102号室の特徴
契約条件
敷金が無料なため、初期費用が比較的安くなる傾向にあります。
セキュリティ
来客時には居室内のテレビモニターにて訪問者の顔を確認することができます。
室内設備
電気コンロが備え付けられています。 トイレは、温水洗浄便座機能付きになります。 洗濯に便利な設備として、室内洗濯機置場があります。
居室状況
エアコンが設置されています。
周辺施設
この物件の学区は、青柳小学校区・音羽中学校区です。
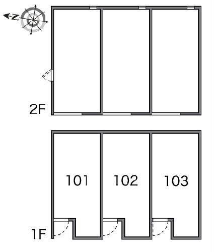
レオネクスト大塚 102号室の間取り
間取り:1K
間取詳細:1K
専有面積:31.03㎡
方位:ー
部屋位置:その他
レオネクスト大塚 102号室の設備
キッチン
電気コンロ
バス・トイレ
バス・トイレ別
温水洗浄便座
玄関
TVモニタ付インターホン
室内設備
エアコン
室内洗濯機置場
位置・立地
1階
インフラ
インターネット可
ライフステージ
一人暮らしに人気の設備
カップルに人気の設備
家族に人気の設備
夫婦に人気の設備
三世代で人気の設備
こだわり
雨の日でも洗濯したい
レオネクスト大塚 102号室の賃貸契約情報
毎月支払う |
家賃11万円/月共益費5,500円/月 |
|---|---|
初期費用 |
敷金-礼金110,000円保証金-敷引き償却金- |
更新料 |
- |
鍵交換費用 |
16,500円 |
室内清掃費用 |
41,800円 |
抗菌施工(任意) |
23,760円 |
駐車場料金 |
無 |
損保・ |
借家賠付きの火災保険にご加入いただきます。 |
保証会社 |
加入要 保証会社利用料:保証料:139190円(契約内容により100~120%で変動有)※記載金額は120%の場合 |
契約期間 |
- |
入居可能日 |
2026年04月下旬 |
フリーレント期間 |
- |
取引形態 |
一般媒介 |
備考 |
- |
レオネクスト大塚 102号室の建物情報
建物名称 |
レオネクスト大塚 |
|---|---|
最寄駅 |
|
所在地 |
東京都文京区大塚 |
階層 |
1階部分(地上2階建) |
構造 |
木造 |
築年数 |
2011年3月(築15年) |
駐車場 |
無 |
小学校学区 |
青柳小学校 |
中学校学区 |
音羽中学校 |
- 学区データについて
- ※学区データは必ずしも正確とは限りません。詳細に関しては最寄店舗または各自治体の教育委員会に必ずご確認ください。
無料この物件に問い合わせ
- レオネクスト大塚 102号室

-
11万円
(共益費
5,500円)
- 敷
- -
- 礼
- 110,000円
- 保
- -
- 償
- -
レオネクスト大塚 102号室の物件のお問い合わせ先・取り扱い店舗
ハウスコム 事業戦略室
- アクセス
-
山手線「品川駅」港南口徒歩3分
- 住所
- 〒108-0075 東京都港区港南2-16-1 品川イーストワンタワー9階
- 営業時間
- 10:00~17:00
- 定休日
- 土曜日・日曜日(祝日定休)
- 営業エリア
- 北区、荒川区、豊島区、文京区、台東区、中央区、新宿区、千代田区、渋谷区、港区、品川区
- 取引態様
- 賃貸仲介業
お問い合わせNo. HC5-5423448-102-1009















