プライヴ 201号室(2階/1R)の賃貸物件(賃貸マンション)
埼玉県蓮田市にあるプライヴ 201号室はガスコンロ、追い焚き、独立洗面台、ルーフバルコニー、プロパンガスなどが特徴です。最寄り駅の東北本線蓮田駅から徒歩7分です。プライヴ 201号室の詳細はハウスコム 久喜店までお気軽にお問い合わせください!
情報更新日:
次回更新予定日:
※次回更新予定日について:お店側では順次空室確認を行っていますが、次回更新予定日までに空室確認が行えない場合には、この物件情報は自動的に削除されます。
プライヴ 201号室の賃貸物件部屋概要
家賃 |
5.3万円
初期費用を |
|---|---|
共益費 |
3,000円
入居可能時期 |
敷金/礼金 |
1ヶ月 / 1ヶ月 |
保証金/ |
- / - |
最寄駅 |
|
所在地 |
埼玉県蓮田市東 |
部屋番号 |
201号室 |
間取り |
1R(洋8.5) |
専有面積 |
25.90㎡ |
築年数 |
2002年3月(築24年) |
階数 |
2階部分(地上3階建) |
方位・位置 |
南東 / その他 |
物件種別 |
賃貸マンション |
構造 |
鉄骨造 |
駐車場 |
無 |
小学校学区 |
蓮田南小学校 |
中学校学区 |
蓮田南中学校 |
他の空き部屋 |
ー |
- 学区データについて
- ※学区データは必ずしも正確とは限りません。詳細に関しては最寄店舗または各自治体の教育委員会に必ずご確認ください。
プライヴ 201号室の特徴
セキュリティ
来客時には居室内のテレビモニターにて訪問者の顔を確認することができます。
室内設備
ガスコンロが備え付けられています。 お風呂とトイレは別です。お風呂には、追い焚き機能が備わっています。 女性に嬉しい設備の独立した洗面化粧台があります。 洗濯に便利な設備として、室内洗濯機置場があります。
居室状況
エアコンが設置されています。
建物設備共用部分
居室外の専有スペースとして、洗濯物を干すなどの用途として利用できるバルコニーがあります。
周辺施設
この物件の学区は、蓮田南小学校区・蓮田南中学校区です。
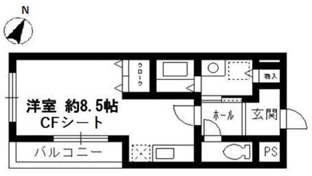
プライヴ 201号室の間取り
間取り:1R
間取詳細:1R(洋8.5)
専有面積:25.90㎡
方位:南東
部屋位置:その他
プライヴ 201号室の設備
キッチン
ガスコンロ
バス・トイレ
バス・トイレ別
追い焚き
独立洗面台
玄関
TVモニタ付インターホン
バルコニー
バルコニー
ルーフバルコニー
室内設備
エアコン
室内洗濯機置場
位置・立地
2階以上
インフラ
プロパンガス
ライフステージ
一人暮らしに人気の設備
カップルに人気の設備
家族に人気の設備
夫婦に人気の設備
三世代で人気の設備
こだわり
外で子どもと遊びたい
雨の日でも洗濯したい
寝るためだけの部屋
趣味
ガーデニングが好き
プライヴ 201号室の賃貸契約情報
毎月支払う |
家賃5.3万円/月共益費3,000円/月 |
|---|---|
初期費用 |
敷金1ヶ月 (5.3万円)礼金1ヶ月 (5.3万円)保証金-敷引き償却金- |
更新料 |
53,000円 |
鍵交換費用 |
- |
室内清掃費用 |
- |
鍵交換費 |
27,500円 |
駐車場料金 |
無 |
損保・ |
借家賠付きの火災保険にご加入いただきます。 |
保証会社 |
加入要 保証会社利用料:保証会社名:クレディセゾン/【契約時】月額総支払額の60%【月額】月額総支払額の1%【更新時】なし |
契約期間 |
2年 |
入居可能日 |
2026年04月中旬 |
フリーレント期間 |
- |
取引形態 |
一般媒介 |
備考 |
- |
プライヴ 201号室の建物情報
建物名称 |
プライヴ |
|---|---|
最寄駅 |
|
所在地 |
埼玉県蓮田市東 |
階層 |
2階部分(地上3階建) |
構造 |
鉄骨造 |
築年数 |
2002年3月(築24年) |
駐車場 |
無 |
小学校学区 |
蓮田南小学校 |
中学校学区 |
蓮田南中学校 |
1/4 外観
- 学区データについて
- ※学区データは必ずしも正確とは限りません。詳細に関しては最寄店舗または各自治体の教育委員会に必ずご確認ください。
無料この物件に問い合わせ
- プライヴ 201号室

-
5.3万円
(共益費
3,000円)
- 敷
- 1ヶ月
- 礼
- 1ヶ月
- 保
- -
- 償
- -
プライヴ 201号室の物件のお問い合わせ先・取り扱い店舗
ハウスコム 久喜店
駅徒歩3分以内
駅徒歩5分以内
水曜日営業
- アクセス
-
東北本線「久喜駅」徒歩2分
- 住所
- 〒346-0003 埼玉県久喜市久喜中央2丁目2−6 YAORIビル 1階
- 営業時間
- 10:00~18:00
- 定休日
- なし
- 営業エリア
- 久喜市内はもちろんのこと、埼玉県東部全域・茨城県南西部・群馬県南部など、お任せ下さい!
- 取引態様
- 賃貸仲介業
お問い合わせNo. HC5-1361651-201-0168















