南平野住宅14号棟 406号室(4階/2LDK)の賃貸物件(賃貸マンション)
埼玉県さいたま市岩槻区にある南平野住宅14号棟 406号室は追い焚き、エアコン、室内洗濯機置場、都市ガス、即入居可などが特徴です。最寄り駅の東武アーバンパークライン・野田線東岩槻駅から徒歩4分です。南平野住宅14号棟 406号室の詳細はハウスコム 大宮東口店までお気軽にお問い合わせください!
情報更新日:
次回更新予定日:
※次回更新予定日について:お店側では順次空室確認を行っていますが、次回更新予定日までに空室確認が行えない場合には、この物件情報は自動的に削除されます。
南平野住宅14号棟 406号室の賃貸物件部屋概要
家賃 |
5.9万円
初期費用を |
|---|---|
共益費 |
10,000円
入居可能時期 |
敷金/礼金 |
1ヶ月 / 1ヶ月 |
保証金/ |
- / - |
最寄駅 |
|
所在地 |
埼玉県さいたま市岩槻区東岩槻 |
部屋番号 |
406号室 |
間取り |
2LDK |
専有面積 |
50.80㎡ |
築年数 |
1972年12月(築54年) |
階数 |
4階部分(地上5階建) |
方位・位置 |
南東 / その他 |
物件種別 |
賃貸マンション |
構造 |
RC |
駐車場 |
4,000円 |
小学校学区 |
上里小学校 |
中学校学区 |
川通中学校 |
他の空き部屋 |
ー |
- 学区データについて
- ※学区データは必ずしも正確とは限りません。詳細に関しては最寄店舗または各自治体の教育委員会に必ずご確認ください。
南平野住宅14号棟 406号室の特徴
セキュリティ
来客時には居室内のテレビモニターにて訪問者の顔を確認することができます。
室内設備
お風呂とトイレは別です。お風呂には、追い焚き機能が備わっています。 トイレは、温水洗浄便座機能付きになります。 女性に嬉しい設備のシャワーの付いている洗面化粧台があります。 洗濯に便利な設備として、室内洗濯機置場があります。
居室状況
エアコンが設置されています。 収納スペースとして、玄関にはシューズボックスがあります。
建物設備共用部分
居室外の専有スペースとして、洗濯物を干すなどの用途として利用できるバルコニーがあります。 駐輪場、バイク置き場が利用できます。
周辺施設
この物件の学区は、上里小学校区・川通中学校区です。
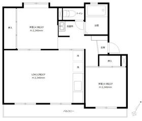
南平野住宅14号棟 406号室の間取り
間取り:2LDK
間取詳細:2LDK
専有面積:50.80㎡
方位:南東
部屋位置:その他
南平野住宅14号棟 406号室の設備
バス・トイレ
バス・トイレ別
追い焚き
温水洗浄便座
独立洗面台
シャワー付洗面化粧台
玄関
TVモニタ付インターホン
収納
シューズボックス
バルコニー
バルコニー
ルーフバルコニー
室内設備
エアコン
室内洗濯機置場
位置・立地
2階以上
インフラ
都市ガス
建物設備
駐輪場
バイク置き場
入居条件
即入居可
ライフステージ
一人暮らしに人気の設備
カップルに人気の設備
家族に人気の設備
夫婦に人気の設備
三世代で人気の設備
こだわり
外で子どもと遊びたい
雨の日でも洗濯したい
趣味
ガーデニングが好き
南平野住宅14号棟 406号室の賃貸契約情報
毎月支払う |
家賃5.9万円/月共益費10,000円/月 |
|---|---|
初期費用 |
敷金1ヶ月 (5.9万円)礼金1ヶ月 (5.9万円)保証金-敷引き償却金- |
更新料 |
59,000円 |
鍵交換費用 |
- |
室内清掃費用 |
- |
駐車場料金 |
4,000円 |
損保・ |
借家賠付きの火災保険にご加入いただきます。 |
保証会社 |
加入要 保証会社利用料:契約時保証料:賃料・管理費の70% ※継続保証料はかかりません |
契約期間 |
2年 |
入居可能日 |
即入居可 |
フリーレント期間 |
- |
取引形態 |
一般媒介 |
備考 |
- |
南平野住宅14号棟 406号室の建物情報
建物名称 |
南平野住宅14号棟 |
|---|---|
最寄駅 |
|
所在地 |
埼玉県さいたま市岩槻区東岩槻 |
階層 |
4階部分(地上5階建) |
構造 |
RC |
築年数 |
1972年12月(築54年) |
駐車場 |
4,000円 |
小学校学区 |
上里小学校 |
中学校学区 |
川通中学校 |
- 学区データについて
- ※学区データは必ずしも正確とは限りません。詳細に関しては最寄店舗または各自治体の教育委員会に必ずご確認ください。
無料この物件に問い合わせ
- 南平野住宅14号棟 406号室

-
5.9万円
(共益費
10,000円)
- 敷
- 1ヶ月
- 礼
- 1ヶ月
- 保
- -
- 償
- -
南平野住宅14号棟 406号室の物件のお問い合わせ先・取り扱い店舗
ハウスコム 大宮東口店
- アクセス
-
京浜東北・根岸線「大宮駅」東口(北)徒歩1分
- 住所
- 〒330-0846 埼玉県さいたま市大宮区大門町1丁目92−7 ハイカラ堂ビル 2階
- 営業時間
- 10:00~18:00
- 定休日
- 水曜日
- 営業エリア
- さいたま市大宮区、中央区、北区、西区、見沼区、西区、浦和区、岩槻区、上尾市、蓮田市、白岡市、伊奈町 etc.
- 取引態様
- 賃貸仲介業























