堀切の完工年月(2026年2月)築の賃貸マンション ***号室(8階/1K)の賃貸物件(賃貸マンション)
東京都葛飾区にある堀切の完工年月(2026年2月)築の賃貸マンション ***号室はバス・トイレ別、オートロック、宅配ボックス、シューズボックス、分譲賃貸などが特徴です。最寄り駅の京成本線堀切菖蒲園駅から徒歩10分です。堀切の完工年月(2026年2月)築の賃貸マンション ***号室の詳細はハウスコム 青砥店までお気軽にお問い合わせください!
情報更新日:
次回更新予定日:
※次回更新予定日について:お店側では順次空室確認を行っていますが、次回更新予定日までに空室確認が行えない場合には、この物件情報は自動的に削除されます。
堀切の完工年月(2026年2月)築の賃貸マンション ***号室の賃貸物件部屋概要
家賃 |
9.9万円
初期費用を |
|---|---|
共益費 |
12,000円
入居可能時期 |
敷金/礼金 |
- / 0.5ヶ月 |
保証金/ |
- / - |
最寄駅 |
|
所在地 |
東京都葛飾区堀切 |
部屋番号 |
***号室 |
間取り |
1K(洋8.5) |
専有面積 |
25.48㎡ |
築年数 |
新築 |
階数 |
8階部分(地上10階建) |
方位・位置 |
ー / その他 |
物件種別 |
賃貸マンション |
構造 |
RC |
駐車場 |
- |
小学校学区 |
堀切小学校 |
中学校学区 |
堀切中学校 |
他の空き部屋 |
***号室 ***号室 ***号室 ***号室 ***号室 ***号室 ***号室 ***号室 ***号室 ***号室 |
- 学区データについて
- ※学区データは必ずしも正確とは限りません。詳細に関しては最寄店舗または各自治体の教育委員会に必ずご確認ください。
堀切の完工年月(2026年2月)築の賃貸マンション ***号室の特徴
-
一人暮らしに人気の設備

-
カップルに人気の設備

-
家族に人気の設備

-
夫婦に人気の設備

-
三世代で人気の設備

-
セキュリティ対策重視

-
外で子どもと遊びたい

-
身だしなみに気をつかいたい

-
雨の日でも洗濯したい

-
洋室で暮らしたい

-
ガーデニングが好き

契約条件
この物件は、外国籍の方もご相談の上、ご契約できます。 敷金が無料なため、初期費用が比較的安くなる傾向にあります。
セキュリティ
この物件の建物には、オートロックや防犯カメラや宅配ボックスが設置されており、来客時には居室内のテレビモニターにて訪問者の顔を確認することができます。
室内設備
トイレは、温水洗浄便座機能付きになります。 女性に嬉しい設備のシャワーの付いている洗面化粧台があります。 洗濯に便利な設備として、室内洗濯機置場があります。浴室乾燥機も設置されているので、梅雨時の生乾き臭も比較的防ぐことができます。
居室状況
お部屋の床は、フローリングとなっており、エアコンが設置されています。 収納スペースとして、基本的な居室にクローゼットを設置、玄関にはシューズボックスがあります。
建物設備共用部分
居室外の専有スペースとして、洗濯物を干すなどの用途として利用できるバルコニーがあります。 建物の共用スペースに、日々の出入に便利なエレベーターや、いざという時の防犯カメラや、急な外出や不在がちのご家庭の荷物受け取りに便利な宅配ボックスが設置されています。
周辺施設
この物件の学区は、堀切小学校区・堀切中学校区です。
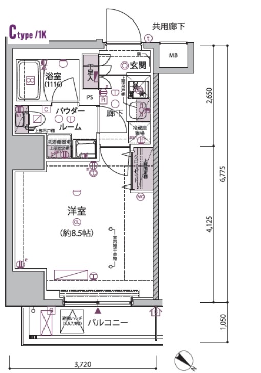
堀切の完工年月(2026年2月)築の賃貸マンション ***号室の間取り
間取り:1K
間取詳細:1K(洋8.5)
専有面積:25.48㎡
方位:ー
部屋位置:その他
堀切の完工年月(2026年2月)築の賃貸マンション ***号室の設備
バス・トイレ
バス・トイレ別
浴室乾燥機
温水洗浄便座
独立洗面台
シャワー付洗面化粧台
玄関
TVモニタ付インターホン
オートロック
宅配ボックス
収納
クローゼット
シューズボックス
バルコニー
バルコニー
ルーフバルコニー
室内設備
エアコン
フローリング
室内洗濯機置場
位置・立地
2階以上
インフラ
インターネット可
都市ガス
建物設備
エレベーター
防犯カメラ
分譲賃貸
入居条件
外国人可・相談
オンライン相談可
オンライン内見可
即入居可
ライフステージ
一人暮らしに人気の設備
カップルに人気の設備
家族に人気の設備
夫婦に人気の設備
三世代で人気の設備
こだわり
セキュリティ対策重視
外で子どもと遊びたい
身だしなみに気をつかいたい
雨の日でも洗濯したい
洋室で暮らしたい
趣味
ガーデニングが好き
堀切の完工年月(2026年2月)築の賃貸マンション ***号室の賃貸契約情報
毎月支払う |
家賃9.9万円/月共益費12,000円/月 |
|---|---|
初期費用 |
敷金-礼金0.5ヶ月 (4.95万円)保証金-敷引き償却金- |
更新料 |
99,000円 |
鍵交換費用 |
- |
室内清掃費用 |
- |
駐車場料金 |
- |
損保・ |
借家賠付きの火災保険にご加入いただきます。 |
保証会社 |
加入要 保証会社利用料:初回50%+毎月月額総賃料の1% |
契約期間 |
2年 |
入居可能日 |
即入居可 |
フリーレント期間 |
- |
取引形態 |
一般媒介 |
備考 |
?クリーニング費用は退去時実費精算 違約金等 /1年以内の解約で月額総賃料の1ヶ月分 |
堀切の完工年月(2026年2月)築の賃貸マンション ***号室の建物情報
建物名称 |
堀切の完工年月(2026年2月)築の賃貸マンション |
|---|---|
最寄駅 |
|
所在地 |
東京都葛飾区堀切 |
階層 |
8階部分(地上10階建) |
構造 |
RC |
築年数 |
新築 |
駐車場 |
- |
小学校学区 |
堀切小学校 |
中学校学区 |
堀切中学校 |
- 学区データについて
- ※学区データは必ずしも正確とは限りません。詳細に関しては最寄店舗または各自治体の教育委員会に必ずご確認ください。
無料この物件に問い合わせ
- 堀切の完工年月(2026年2月)築の賃貸マンション ***号室

-
9.9万円
(共益費
12,000円)
- 敷
- -
- 礼
- 0.5ヶ月
- 保
- -
- 償
- -
堀切の完工年月(2026年2月)築の賃貸マンション ***号室の物件のお問い合わせ先・取り扱い店舗
ハウスコム 青砥店
- アクセス
-
京成本線「青砥駅」改札を出て左折徒歩1分
- 住所
- 〒125-0062 東京都葛飾区青戸2丁目2−20 メゾンノア 1階
- 営業時間
- 10:00~18:00
- 定休日
- なし
- 営業エリア
- ◆葛飾区◆墨田区◆江戸川区◆足立区◆松戸市◆
- 取引態様
- 賃貸仲介業

