CITY WALK永福町 404号室(4階/1K)の賃貸物件(賃貸マンション)
東京都杉並区にあるCITY WALK永福町 404号室はシステムキッチン、独立洗面台、シューズボックス、最上階、インターネット可などが特徴です。最寄り駅の京王井の頭線永福町駅から徒歩11分です。CITY WALK永福町 404号室の詳細はハウスコム 明大前店までお気軽にお問い合わせください!
情報更新日:
次回更新予定日:
※次回更新予定日について:お店側では順次空室確認を行っていますが、次回更新予定日までに空室確認が行えない場合には、この物件情報は自動的に削除されます。
CITY WALK永福町 404号室の賃貸物件部屋概要
家賃 |
10万円
初期費用を |
|---|---|
共益費 |
5,000円
入居可能時期 |
敷金/礼金 |
- / - |
保証金/ |
- / - |
最寄駅 |
|
所在地 |
東京都杉並区和泉 |
部屋番号 |
404号室 |
間取り |
1K(洋6) |
専有面積 |
20.06㎡ |
築年数 |
新築 |
階数 |
4階部分(地上4階建) |
方位・位置 |
南東 / その他 |
物件種別 |
賃貸マンション |
構造 |
RC |
駐車場 |
- |
小学校学区 |
大宮小学校 |
中学校学区 |
大宮中学校 |
他の空き部屋 |
101号室 102号室 103号室 204号室 205号室 301号室 302号室 303号室 405号室 |
- 学区データについて
- ※学区データは必ずしも正確とは限りません。詳細に関しては最寄店舗または各自治体の教育委員会に必ずご確認ください。
CITY WALK永福町 404号室の特徴
契約条件
敷金と礼金が無料なため、初期費用が比較的安くなる傾向にあります。
セキュリティ
この物件の建物には、オートロックや防犯カメラや宅配ボックスが設置されており、来客時には居室内のテレビモニターにて訪問者の顔を確認することができます。
室内設備
システムキッチンには、IHコンロが備え付けられています。 トイレは、温水洗浄便座機能付きになります。 女性に嬉しい設備の独立した洗面化粧台があります。 洗濯に便利な設備として、室内洗濯機置場があります。浴室乾燥機も設置されているので、梅雨時の生乾き臭も比較的防ぐことができます。
居室状況
お部屋の床は、フローリングとなっており、エアコンが設置されています。 インターネットも無料で入居後すぐ生活が始められます。 収納スペースとして、基本的な居室にクローゼットを設置、玄関にはシューズボックスがあります。
建物設備共用部分
建物の共用スペースに、いざという時の防犯カメラや、急な外出や不在がちのご家庭の荷物受け取りに便利な宅配ボックスが設置されています。
周辺施設
この物件の学区は、大宮小学校区・大宮中学校区です。
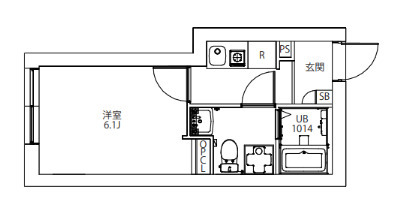
CITY WALK永福町 404号室の間取り
間取り:1K
間取詳細:1K(洋6)
専有面積:20.06㎡
方位:南東
部屋位置:その他
CITY WALK永福町 404号室の設備
キッチン
システムキッチン
IHコンロ
バス・トイレ
バス・トイレ別
浴室乾燥機
温水洗浄便座
独立洗面台
玄関
TVモニタ付インターホン
オートロック
宅配ボックス
収納
クローゼット
シューズボックス
室内設備
エアコン
フローリング
室内洗濯機置場
位置・立地
2階以上
最上階
インフラ
インターネット可
BS
CS
都市ガス
建物設備
防犯カメラ
入居条件
オンライン相談可
オンライン内見可
ライフステージ
一人暮らしに人気の設備
カップルに人気の設備
家族に人気の設備
夫婦に人気の設備
三世代で人気の設備
こだわり
セキュリティ対策重視
雨の日でも洗濯したい
洋室で暮らしたい
趣味
オークション・通販が好き
お得な条件
インターネット無料
CITY WALK永福町 404号室の賃貸契約情報
毎月支払う |
家賃10万円/月共益費5,000円/月 |
|---|---|
初期費用 |
敷金-礼金-保証金-敷引き償却金- |
更新料 |
100,000円 |
鍵交換費用 |
- |
室内清掃費用 |
- |
室内清掃費用 |
55,000円 |
24時間安心サポート |
16,500円 |
駐車場料金 |
- |
損保・ |
借家賠付きの火災保険にご加入いただきます。 |
保証会社 |
加入要 保証会社利用料:初回保証料:総賃料の50%、月額保証料:総賃料の1% |
契約期間 |
2年 |
入居可能日 |
2026年06月中旬 |
フリーレント期間 |
- |
取引形態 |
一般媒介 |
備考 |
退去時エアコンクリーニング費用:1基につき16500円、 短期解約違約金有(1年未満の解約で賃料2ヶ月分。2年未満の解約で賃料1ヶ月分) |
CITY WALK永福町 404号室の建物情報
建物名称 |
CITY WALK永福町 |
|---|---|
最寄駅 |
|
所在地 |
東京都杉並区和泉 |
階層 |
4階部分(地上4階建) |
構造 |
RC |
築年数 |
新築 |
駐車場 |
- |
小学校学区 |
大宮小学校 |
中学校学区 |
大宮中学校 |
- 学区データについて
- ※学区データは必ずしも正確とは限りません。詳細に関しては最寄店舗または各自治体の教育委員会に必ずご確認ください。
無料この物件に問い合わせ
- CITY WALK永福町 404号室

-
10万円
(共益費
5,000円)
- 敷
- -
- 礼
- -
- 保
- -
- 償
- -
CITY WALK永福町 404号室の物件のお問い合わせ先・取り扱い店舗
ハウスコム 明大前店
- アクセス
-
京王線「明大前駅」中央口徒歩1分
京王井の頭線「明大前駅」中央口徒歩1分
- 住所
- 〒156-0043 東京都世田谷区松原2丁目44−1 グランシーン明大前 1階
- 営業時間
- 10:00~18:00
- 定休日
- なし
- 営業エリア
- 世田谷区・杉並区・渋谷区・中野区・新宿区・三鷹市・調布市
- 取引態様
- 賃貸仲介業
























