アドバンス江坂ラシュレ 717号室(7階/1K)の賃貸物件(賃貸マンション)
大阪府吹田市にあるアドバンス江坂ラシュレ 717号室はバス・トイレ別、バルコニー、ルーフバルコニー、BS、ペット可・相談などが特徴です。最寄り駅の北大阪急行南北線江坂駅から徒歩5分です。アドバンス江坂ラシュレ 717号室の詳細はミニミニ FC千里中央店までお気軽にお問い合わせください!
情報更新日:
次回更新予定日:
※次回更新予定日について:お店側では順次空室確認を行っていますが、次回更新予定日までに空室確認が行えない場合には、この物件情報は自動的に削除されます。
アドバンス江坂ラシュレ 717号室の賃貸物件部屋概要
家賃 |
8万円
初期費用を |
|---|---|
共益費 |
8,000円
入居可能時期 |
敷金/礼金 |
- / - |
保証金/ |
- / - |
最寄駅 |
|
所在地 |
大阪府吹田市江坂町 |
部屋番号 |
717号室 |
間取り |
1K(洋7.7) |
専有面積 |
25.05㎡ |
築年数 |
2023年3月(築3年) |
階数 |
7階部分(地上15階建) |
方位・位置 |
北 / その他 |
物件種別 |
賃貸マンション |
構造 |
RC |
駐車場 |
無 |
小学校学区 |
豊津第二小学校 |
中学校学区 |
豊津西中学校 |
他の空き部屋 |
***号室 ***号室 ***号室 0505号室 ***号室 0701号室 ***号室 0704号室 0802号室 ***号室 0911号室 1017号室 1107号室 ***号室 1212号室 1213号室 ***号室 1215号室 ***号室 1415号室 ***号室 ***号室 1504号室 ***号室 1505号室 1514号室 ***号室 1515号室 ***号室 212号室 ***号室 ***号室 308号室 406号室 ***号室 ***号室 ***号室 ***号室 802号室 ***号室 |
- 学区データについて
- ※学区データは必ずしも正確とは限りません。詳細に関しては最寄店舗または各自治体の教育委員会に必ずご確認ください。
アドバンス江坂ラシュレ 717号室の特徴
-
一人暮らしに人気の設備

-
カップルに人気の設備

-
家族に人気の設備

-
夫婦に人気の設備

-
三世代で人気の設備

-
セキュリティ対策重視

-
外で子どもと遊びたい

-
雨の日でも洗濯したい

-
洋室で暮らしたい

-
オークション・通販が好き

-
ガーデニングが好き

契約条件
この物件は、2人入居もご契約できます。 ペットの飼育もご相談ください。 敷金と礼金が無料なため、初期費用が比較的安くなる傾向にあります。
セキュリティ
この物件の建物には、オートロックや防犯カメラや宅配ボックスが設置されており、来客時には居室内のテレビモニターにて訪問者の顔を確認することができます。
室内設備
IHコンロが備え付けられています。 トイレは、温水洗浄便座機能付きになります。 女性に嬉しい設備のシャワーの付いている洗面化粧台があります。 洗濯に便利な設備として、室内洗濯機置場があります。浴室乾燥機も設置されているので、梅雨時の生乾き臭も比較的防ぐことができます。
居室状況
お部屋の床は、フローリングとなっており、エアコンが設置されています。 インターネットも無料で入居後すぐ生活が始められます。 収納スペースとして、基本的な居室にクローゼットを設置、玄関にはシューズボックスがあります。
建物設備共用部分
居室外の専有スペースとして、洗濯物を干すなどの用途として利用できるバルコニーがあります。 建物の共用スペースに、いざという時の防犯カメラや、急な外出や不在がちのご家庭の荷物受け取りに便利な宅配ボックスが設置されています。
周辺施設
この物件の学区は、豊津第二小学校区・豊津西中学校区です。
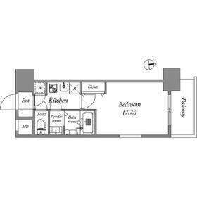
アドバンス江坂ラシュレ 717号室の間取り
間取り:1K
間取詳細:1K(洋7.7)
専有面積:25.05㎡
方位:北
部屋位置:その他
アドバンス江坂ラシュレ 717号室の設備
キッチン
IHコンロ
バス・トイレ
バス・トイレ別
浴室乾燥機
温水洗浄便座
独立洗面台
シャワー付洗面化粧台
玄関
TVモニタ付インターホン
オートロック
宅配ボックス
収納
クローゼット
シューズボックス
バルコニー
バルコニー
ルーフバルコニー
室内設備
エアコン
フローリング
室内洗濯機置場
位置・立地
2階以上
インフラ
BS
CS
建物設備
防犯カメラ
入居条件
ペット可・相談
2人入居可
ライフステージ
一人暮らしに人気の設備
カップルに人気の設備
家族に人気の設備
夫婦に人気の設備
三世代で人気の設備
こだわり
セキュリティ対策重視
外で子どもと遊びたい
雨の日でも洗濯したい
洋室で暮らしたい
趣味
オークション・通販が好き
ガーデニングが好き
お得な条件
インターネット無料
アドバンス江坂ラシュレ 717号室の賃貸契約情報
毎月支払う |
家賃8万円/月共益費8,000円/月 |
|---|---|
初期費用 |
敷金-礼金-保証金-敷引き償却金- |
更新料 |
- |
鍵交換費用 |
- |
室内清掃費用 |
- |
退去時RC代 |
25,300円 |
カギ代 |
27,500円 |
駐車場料金 |
無 |
損保・ |
借家賠付きの火災保険にご加入いただきます。 |
保証会社 |
加入要 保証会社利用料:株式会社エポスカード ※大手法人相談可 |
契約期間 |
2年 |
入居可能日 |
2026年05月 |
フリーレント期間 |
- |
取引形態 |
一般媒介 |
備考 |
- |
アドバンス江坂ラシュレ 717号室の建物情報
建物名称 |
アドバンス江坂ラシュレ |
|---|---|
最寄駅 |
|
所在地 |
大阪府吹田市江坂町 |
階層 |
7階部分(地上15階建) |
構造 |
RC |
築年数 |
2023年3月(築3年) |
駐車場 |
無 |
小学校学区 |
豊津第二小学校 |
中学校学区 |
豊津西中学校 |
- 学区データについて
- ※学区データは必ずしも正確とは限りません。詳細に関しては最寄店舗または各自治体の教育委員会に必ずご確認ください。
無料この物件に問い合わせ
- アドバンス江坂ラシュレ 717号室

-
8万円
(共益費
8,000円)
- 敷
- -
- 礼
- -
- 保
- -
- 償
- -
アドバンス江坂ラシュレ 717号室の物件のお問い合わせ先・取り扱い店舗
ミニミニ FC千里中央店
- アクセス
-
北大阪急行南北線「千里中央駅」南改札徒歩1分
大阪モノレール 本線「千里中央駅」徒歩3分
- 住所
- 〒560-0082 大阪府豊中市新千里東町1-3-104 せんちゅうパル南西側1F
- 営業時間
- 10:00~18:00
- 定休日
- なし
- 営業エリア
- 豊中市・箕面市・吹田市・その他近畿圏全域
- 取引態様
- 賃貸仲介業




