向島テラス 0103号室(1階/1K)の賃貸物件(賃貸アパート)
東京都墨田区にある向島テラス 0103号室はガスコンロ、ルーフバルコニー、フローリング、1階、角部屋などが特徴です。最寄り駅の東武スカイツリーライン・伊勢崎線・大師線曳舟駅から徒歩6分です。向島テラス 0103号室の詳細はハウスコム 事業戦略室までお気軽にお問い合わせください!
情報更新日:
次回更新予定日:
※次回更新予定日について:お店側では順次空室確認を行っていますが、次回更新予定日までに空室確認が行えない場合には、この物件情報は自動的に削除されます。
向島テラス 0103号室の賃貸物件部屋概要
家賃 |
9.7万円
初期費用を |
|---|---|
共益費 |
9,000円
入居可能時期 |
敷金/礼金 |
1ヶ月 / 1ヶ月 |
保証金/ |
- / - |
最寄駅 |
|
所在地 |
東京都墨田区向島 |
部屋番号 |
0103号室 |
間取り |
1K(K0・洋0) |
専有面積 |
21.06㎡ |
築年数 |
2024年3月(築2年) |
階数 |
1階部分(地上3階建) |
方位・位置 |
北東 / 角部屋 |
物件種別 |
賃貸アパート |
構造 |
軽量鉄骨 |
駐車場 |
- |
小学校学区 |
言問小学校 |
中学校学区 |
墨田中学校 |
他の空き部屋 |
0101号室 0202号室 202号室 |
- 学区データについて
- ※学区データは必ずしも正確とは限りません。詳細に関しては最寄店舗または各自治体の教育委員会に必ずご確認ください。
向島テラス 0103号室の特徴
セキュリティ
この物件の建物には、オートロックが設置されております。
室内設備
システムキッチンには、2つ以上のガスコンロが備え付けられています。 トイレは、温水洗浄便座機能付きになります。 女性に嬉しい設備の独立した洗面化粧台があります。 洗濯に便利な設備として、室内洗濯機置場があります。
居室状況
お部屋の床は、フローリングとなっており、エアコンが設置されています。 インターネットも無料で入居後すぐ生活が始められます。 収納スペースとして、基本的な居室にクローゼットがあります。
建物設備共用部分
居室外の専有スペースとして、洗濯物を干すなどの用途として利用できるバルコニーがあります。 駐輪場が利用できます。
周辺施設
この物件の学区は、言問小学校区・墨田中学校区です。
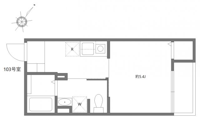
向島テラス 0103号室の間取り
間取り:1K
間取詳細:1K(K0・洋0)
専有面積:21.06㎡
方位:北東
部屋位置:角部屋
向島テラス 0103号室の設備
キッチン
システムキッチン
ガスコンロ
ガスコンロ二口以上
バス・トイレ
バス・トイレ別
温水洗浄便座
独立洗面台
玄関
オートロック
収納
クローゼット
バルコニー
バルコニー
ルーフバルコニー
室内設備
エアコン
フローリング
室内洗濯機置場
デザイナーズ
位置・立地
1階
角部屋
インフラ
インターネット可
都市ガス
建物設備
駐輪場
ライフステージ
一人暮らしに人気の設備
カップルに人気の設備
家族に人気の設備
夫婦に人気の設備
三世代で人気の設備
こだわり
外で子どもと遊びたい
雨の日でも洗濯したい
洋室で暮らしたい
趣味
ガーデニングが好き
お得な条件
インターネット無料
向島テラス 0103号室の賃貸契約情報
毎月支払う |
家賃9.7万円/月共益費9,000円/月 |
|---|---|
初期費用 |
敷金1ヶ月 (9.7万円)礼金1ヶ月 (9.7万円)保証金-敷引き償却金- |
更新料 |
97,000円 |
鍵交換費用 |
38,500円 |
室内清掃費用 |
- |
プレミアデスク2年(税込) |
22,000円 |
町会費/月額 |
100円 |
駐車場料金 |
- |
損保・ |
借家賠付きの火災保険にご加入いただきます。 |
保証会社 |
加入要 保証会社:エポスカード 保証会社利用料:※エポス ルームIDからの審査になります。 【ルームID】月額総賃料の50%/月次保証料、月額総賃料の1.5%/1年毎10,000円 【アーク賃貸保証】月額総賃料の40%/次年度以降10,000円 |
契約期間 |
2年 |
入居可能日 |
相談 |
フリーレント期間 |
- |
取引形態 |
一般媒介 |
備考 |
- |
向島テラス 0103号室の建物情報
建物名称 |
向島テラス |
|---|---|
最寄駅 |
|
所在地 |
東京都墨田区向島 |
階層 |
1階部分(地上3階建) |
構造 |
軽量鉄骨 |
築年数 |
2024年3月(築2年) |
駐車場 |
- |
小学校学区 |
言問小学校 |
中学校学区 |
墨田中学校 |
- 学区データについて
- ※学区データは必ずしも正確とは限りません。詳細に関しては最寄店舗または各自治体の教育委員会に必ずご確認ください。
無料この物件に問い合わせ
- 向島テラス 0103号室

-
9.7万円
(共益費
9,000円)
- 敷
- 1ヶ月
- 礼
- 1ヶ月
- 保
- -
- 償
- -
向島テラス 0103号室の物件のお問い合わせ先・取り扱い店舗
ハウスコム 事業戦略室
- アクセス
-
山手線「品川駅」港南口徒歩3分
- 住所
- 〒108-0075 東京都港区港南2-16-1 品川イーストワンタワー9階
- 営業時間
- 10:00~17:00
- 定休日
- 土曜日・日曜日(祝日定休)
- 営業エリア
- 北区、荒川区、豊島区、文京区、台東区、中央区、新宿区、千代田区、渋谷区、港区、品川区
- 取引態様
- 賃貸仲介業




































