レオパレスセレッソ 107号室(1階/1K)の賃貸物件(賃貸アパート)
埼玉県熊谷市にあるレオパレスセレッソ 107号室はTVモニタ付インターホン、宅配ボックス、エアコン、室内洗濯機置場、インターネット可などが特徴です。最寄り駅の高崎線熊谷駅からバスで32分、農協支所前から徒歩5分です。レオパレスセレッソ 107号室の詳細はハウスコム 川越店までお気軽にお問い合わせください!
情報更新日:
次回更新予定日:
※次回更新予定日について:お店側では順次空室確認を行っていますが、次回更新予定日までに空室確認が行えない場合には、この物件情報は自動的に削除されます。
レオパレスセレッソ 107号室の賃貸物件部屋概要
家賃 |
5万円
初期費用を |
|---|---|
共益費 |
5,000円
入居可能時期 |
敷金/礼金 |
- / 50,000円 |
保証金/ |
- / - |
最寄駅 |
|
所在地 |
埼玉県熊谷市妻沼 |
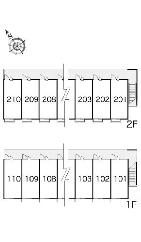
部屋番号 |
107号室 |
間取り |
1K |
専有面積 |
23.18㎡ |
築年数 |
2006年10月(築20年) |
階数 |
1階部分(地上2階建) |
方位・位置 |
ー / その他 |
物件種別 |
賃貸アパート |
構造 |
木造 |
駐車場 |
5,500円 |
小学校学区 |
妻沼小学校 |
中学校学区 |
妻沼西中学校 |
他の空き部屋 |
101号室 104号室 201号室 205号室 206号室 209号室 |
- 学区データについて
- ※学区データは必ずしも正確とは限りません。詳細に関しては最寄店舗または各自治体の教育委員会に必ずご確認ください。
レオパレスセレッソ 107号室の特徴
契約条件
敷金が無料なため、初期費用が比較的安くなる傾向にあります。
セキュリティ
この物件の建物には、宅配ボックスが設置されており、来客時には居室内のテレビモニターにて訪問者の顔を確認することができます。
室内設備
洗濯に便利な設備として、室内洗濯機置場があります。
居室状況
エアコンが設置されています。 家具が備え付けられており、入居後すぐ生活が始められます。
建物設備共用部分
建物の共用スペースに、急な外出や不在がちのご家庭の荷物受け取りに便利な宅配ボックスが設置されています。
周辺施設
この物件の学区は、妻沼小学校区・妻沼西中学校区です。
レオパレスセレッソ 107号室の間取り
間取り:1K
間取詳細:1K
専有面積:23.18㎡
方位:ー
部屋位置:その他
レオパレスセレッソ 107号室の設備
バス・トイレ
バス・トイレ別
玄関
TVモニタ付インターホン
宅配ボックス
室内設備
エアコン
室内洗濯機置場
家具付
位置・立地
1階
インフラ
インターネット可
ライフステージ
一人暮らしに人気の設備
カップルに人気の設備
家族に人気の設備
夫婦に人気の設備
三世代で人気の設備
こだわり
雨の日でも洗濯したい
寝るためだけの部屋
レオパレスセレッソ 107号室の賃貸契約情報
毎月支払う |
家賃5万円/月共益費5,000円/月 |
|---|---|
初期費用 |
敷金-礼金50,000円保証金-敷引き償却金- |
更新料 |
- |
鍵交換費用 |
16,500円 |
室内清掃費用 |
41,800円 |
抗菌施工(任意) |
23,760円 |
駐車場料金 |
5,500円 |
損保・ |
借家賠付きの火災保険にご加入いただきます。 |
保証会社 |
加入要 保証会社利用料:保証料:52790円(契約内容により100~120%で変動有)※記載金額は120%の場合 |
契約期間 |
- |
入居可能日 |
即入居可 |
フリーレント期間 |
- |
取引形態 |
一般媒介 |
備考 |
鍵交換費10450円、抗菌施工(任意)18040円から23760円(税込)/環境維持費550円/月、更新手数料16500円/2年(税込)/基本清掃料:31350円(税込) |
レオパレスセレッソ 107号室の建物情報
建物名称 |
レオパレスセレッソ |
|---|---|
最寄駅 |
|
所在地 |
埼玉県熊谷市妻沼 |
階層 |
1階部分(地上2階建) |
構造 |
木造 |
築年数 |
2006年10月(築20年) |
駐車場 |
5,500円 |
小学校学区 |
妻沼小学校 |
中学校学区 |
妻沼西中学校 |
1/11 外観
- 学区データについて
- ※学区データは必ずしも正確とは限りません。詳細に関しては最寄店舗または各自治体の教育委員会に必ずご確認ください。
無料この物件に問い合わせ
- レオパレスセレッソ 107号室

-
5万円
(共益費
5,000円)
- 敷
- -
- 礼
- 50,000円
- 保
- -
- 償
- -
レオパレスセレッソ 107号室の物件のお問い合わせ先・取り扱い店舗
ハウスコム 川越店
水曜日営業
土日営業
年中無休(年末年始などを除く)
- アクセス
-
東武東上線「川越駅」東口徒歩3分
- 住所
- 〒350-1122 埼玉県川越市脇田町16−6 岡村ビル 1階
- 営業時間
- 10:00~18:00
- 定休日
- なし
- 営業エリア
- ふじみ野市,坂戸市,川越市,日高市,狭山市,鶴ヶ島市,東松山市,さいたま市、上尾市、富士見市、川島町、秩父方面、寄居町
- 取引態様
- 賃貸仲介業
お問い合わせNo. HC5-85566-107-0001






























