ガーラ・レジデンス川口並木パークサイド ***号室(4階/3LDK)の賃貸物件(賃貸マンション)
埼玉県川口市にあるガーラ・レジデンス川口並木パークサイド ***号室はオートロック、宅配ボックス、ルーフバルコニー、角部屋、CATVなどが特徴です。最寄り駅の京浜東北・根岸線西川口駅から徒歩6分です。ガーラ・レジデンス川口並木パークサイド ***号室の詳細はハウスコム 川口店までお気軽にお問い合わせください!
情報更新日:
次回更新予定日:
※次回更新予定日について:お店側では順次空室確認を行っていますが、次回更新予定日までに空室確認が行えない場合には、この物件情報は自動的に削除されます。
ガーラ・レジデンス川口並木パークサイド ***号室の賃貸物件部屋概要
家賃 |
17.5万円
初期費用を |
|---|---|
共益費 |
15,000円
入居可能時期 |
敷金/礼金 |
1ヶ月 / 2ヶ月 |
保証金/ |
- / - |
最寄駅 |
|
所在地 |
埼玉県川口市並木 |
部屋番号 |
***号室 |
間取り |
3LDK(LD10.1・洋6・洋5・洋5) |
専有面積 |
65.10㎡ |
築年数 |
2022年9月(築4年) |
階数 |
4階部分(地上4階建) |
方位・位置 |
南東 / 角部屋 |
物件種別 |
賃貸マンション |
構造 |
RC |
駐車場 |
- |
小学校学区 |
並木小学校 |
中学校学区 |
幸並中学校 |
他の空き部屋 |
4F号室 |
- 学区データについて
- ※学区データは必ずしも正確とは限りません。詳細に関しては最寄店舗または各自治体の教育委員会に必ずご確認ください。
ガーラ・レジデンス川口並木パークサイド ***号室の特徴
-
一人暮らしに人気の設備

-
カップルに人気の設備

-
家族に人気の設備

-
夫婦に人気の設備

-
三世代で人気の設備

-
セキュリティ対策重視

-
キッチン重視

-
タイパ重視

-
外で子どもと遊びたい

-
雨の日でも洗濯したい

-
洋室で暮らしたい

-
自炊が多めなあなたに

-
料理が好き

-
服やおしゃれが好き

-
推し活グッズを飾りたい

-
ガーデニングが好き

契約条件
この物件は、2人入居もご契約できます。
セキュリティ
この物件の建物には、オートロックや防犯カメラや宅配ボックスが設置されており、来客時には居室内のテレビモニターにて訪問者の顔を確認することができます。
室内設備
システムキッチンには、ガスコンロが設置されており、キッチン設備として食洗機が備え付けられています。 お風呂とトイレは別です。お風呂には、追い焚き機能が備わっています。 トイレは、温水洗浄便座機能付きになります。 洗濯に便利な設備として、室内洗濯機置場があります。浴室乾燥機も設置されているので、梅雨時の生乾き臭も比較的防ぐことができます。
居室状況
お部屋の床は、フローリングとなっており、一部床下暖房が設置されています。 収納スペースとして、基本的な居室にクローゼットを設置、通常よりも収納力の高いウォークインクローゼット、玄関にはシューズボックスがあります。
建物設備共用部分
居室外の専有スペースとして、洗濯物を干すなどの用途として利用できるバルコニーがあります。 建物の共用スペースに、日々の出入に便利なエレベーターや、いざという時の防犯カメラや、急な外出や不在がちのご家庭の荷物受け取りに便利な宅配ボックスや、居室内を常に清潔に保てる24時間利用可能なゴミ捨て置き場が設置されています。
周辺施設
この物件の学区は、並木小学校区・幸並中学校区です。
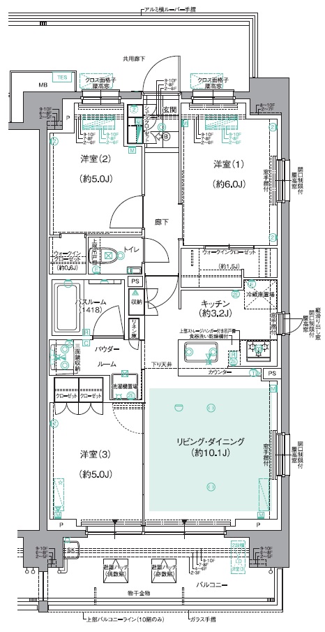
ガーラ・レジデンス川口並木パークサイド ***号室の間取り
間取り:3LDK
間取詳細:3LDK(LD10.1・洋6・洋5・洋5)
専有面積:65.10㎡
方位:南東
部屋位置:角部屋
ガーラ・レジデンス川口並木パークサイド ***号室の設備
キッチン
システムキッチン
カウンターキッチン
ガスコンロ
食洗機
バス・トイレ
バス・トイレ別
追い焚き
浴室乾燥機
温水洗浄便座
玄関
TVモニタ付インターホン
オートロック
宅配ボックス
収納
クローゼット
ウォークインクローゼット
シューズボックス
バルコニー
バルコニー
ルーフバルコニー
室内設備
フローリング
床下暖房
室内洗濯機置場
位置・立地
2階以上
最上階
角部屋
インフラ
CATV
BS
CS
都市ガス
建物設備
エレベーター
防犯カメラ
24時間ゴミ出しOK
入居条件
2人入居可
ライフステージ
一人暮らしに人気の設備
カップルに人気の設備
家族に人気の設備
夫婦に人気の設備
三世代で人気の設備
こだわり
セキュリティ対策重視
キッチン重視
タイパ重視
外で子どもと遊びたい
雨の日でも洗濯したい
洋室で暮らしたい
自炊が多めなあなたに
趣味
料理が好き
服やおしゃれが好き
推し活グッズを飾りたい
ガーデニングが好き
ガーラ・レジデンス川口並木パークサイド ***号室の賃貸契約情報
毎月支払う |
家賃17.5万円/月共益費15,000円/月 |
|---|---|
初期費用 |
敷金1ヶ月 (17.5万円)礼金2ヶ月 (35万円)保証金-敷引き償却金- |
更新料 |
175,000円 |
鍵交換費用 |
23,100円 |
室内清掃費用 |
79,860円 |
(退去時)エアコンクリーニング費用/1台につき |
13,200円 |
火災保険(火災のみ・個人) |
22,000円 |
火災保険(火災のみ・法人) |
26,000円 |
駐車場料金 |
- |
損保・ |
借家賠付きの火災保険にご加入いただきます。 |
保証会社 |
加入要 保証会社:クレディセゾン 保証会社利用料:保証料:賃料等の0.5ヶ月分(最低保証料2万円)/月額保証料 賃料等の1.2% |
契約期間 |
2年 |
入居可能日 |
2026年03月下旬 |
フリーレント期間 |
- |
取引形態 |
一般媒介 |
備考 |
- |
ガーラ・レジデンス川口並木パークサイド ***号室の建物情報
建物名称 |
ガーラ・レジデンス川口並木パークサイド |
|---|---|
最寄駅 |
|
所在地 |
埼玉県川口市並木 |
階層 |
4階部分(地上4階建) |
構造 |
RC |
築年数 |
2022年9月(築4年) |
駐車場 |
- |
小学校学区 |
並木小学校 |
中学校学区 |
幸並中学校 |
- 学区データについて
- ※学区データは必ずしも正確とは限りません。詳細に関しては最寄店舗または各自治体の教育委員会に必ずご確認ください。
無料この物件に問い合わせ
- ガーラ・レジデンス川口並木パークサイド ***号室

-
17.5万円
(共益費
15,000円)
- 敷
- 1ヶ月
- 礼
- 2ヶ月
- 保
- -
- 償
- -
ガーラ・レジデンス川口並木パークサイド ***号室の物件のお問い合わせ先・取り扱い店舗
ハウスコム 川口店
- アクセス
-
京浜東北・根岸線「川口駅」東口徒歩1分
- 住所
- 〒332-0017 埼玉県川口市栄町3丁目5−1 高梨ビル 3F
- 営業時間
- 10:00~18:00
- 定休日
- なし
- 営業エリア
- 川口市・戸田市・蕨市・さいたま市・東京都北区
- 取引態様
- 賃貸仲介業




























