アネシア藤が丘グランドテラス 204号室(2階/3LDK)の賃貸物件(賃貸マンション)
愛知県長久手市にあるアネシア藤が丘グランドテラス 204号室はカウンターキッチン、ルーフバルコニー、フローリング、室内洗濯機置場、エレベーターなどが特徴です。最寄り駅の名古屋市営地下鉄 東山線藤が丘駅から徒歩10分です。アネシア藤が丘グランドテラス 204号室の詳細はハウスコム 豊田店までお気軽にお問い合わせください!
情報更新日:
次回更新予定日:
※次回更新予定日について:お店側では順次空室確認を行っていますが、次回更新予定日までに空室確認が行えない場合には、この物件情報は自動的に削除されます。
アネシア藤が丘グランドテラス 204号室の賃貸物件部屋概要
家賃 |
16万円
初期費用を |
|---|---|
共益費 |
-
入居可能時期 |
敷金/礼金 |
2ヶ月 / 1ヶ月 |
保証金/ |
- / - |
最寄駅 |
|
所在地 |
愛知県長久手市南原山 |
部屋番号 |
204号室 |
間取り |
3LDK |
専有面積 |
78.20㎡ |
築年数 |
2024年1月(築3年) |
階数 |
2階部分(地上13階建) |
方位・位置 |
南西 / 角部屋 |
物件種別 |
賃貸マンション |
構造 |
RC |
駐車場 |
11,500円 |
小学校学区 |
北小学校 |
中学校学区 |
北中学校 |
他の空き部屋 |
ー |
- 学区データについて
- ※学区データは必ずしも正確とは限りません。詳細に関しては最寄店舗または各自治体の教育委員会に必ずご確認ください。
アネシア藤が丘グランドテラス 204号室の特徴
-
一人暮らしに人気の設備

-
カップルに人気の設備

-
家族に人気の設備

-
夫婦に人気の設備

-
三世代で人気の設備

-
キッチン重視

-
外で子どもと遊びたい

-
身だしなみに気をつかいたい

-
雨の日でも洗濯したい

-
洋室で暮らしたい

-
自炊が多めなあなたに

-
料理が好き

-
服やおしゃれが好き

-
推し活グッズを飾りたい

-
ガーデニングが好き

セキュリティ
この物件の建物には、オートロックや宅配ボックスが設置されており、来客時には居室内のテレビモニターにて訪問者の顔を確認することができます。
室内設備
システムキッチンには、ガスコンロが設置されており、排水溝にディスポーザー、キッチン設備として食洗機が備え付けられています。 お風呂とトイレは別です。お風呂には、追い焚き機能が備わっています。 トイレは、温水洗浄便座機能付きになります。 女性に嬉しい設備の独立した洗面化粧台があります。 洗濯に便利な設備として、室内洗濯機置場があります。浴室乾燥機も設置されているので、梅雨時の生乾き臭も比較的防ぐことができます。
居室状況
お部屋の床は、フローリングとなっており、エアコンと一部床下暖房が設置されています。 収納スペースとして、通常よりも収納力の高いウォークインクローゼットがあります。
建物設備共用部分
居室外の専有スペースとして、洗濯物を干すなどの用途として利用できるバルコニーがあります。 建物の共用スペースに、日々の出入に便利なエレベーターや、急な外出や不在がちのご家庭の荷物受け取りに便利な宅配ボックスが設置されています。
周辺施設
この物件の学区は、北小学校区・北中学校区です。
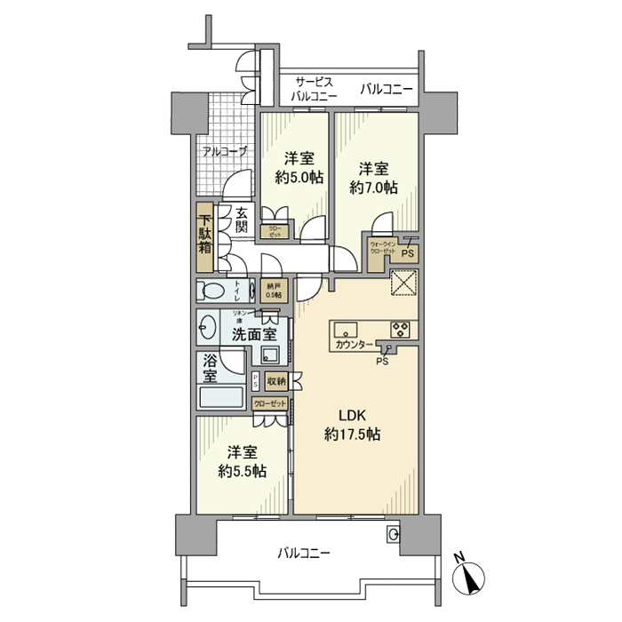
アネシア藤が丘グランドテラス 204号室の間取り
間取り:3LDK
間取詳細:3LDK
専有面積:78.20㎡
方位:南西
部屋位置:角部屋
アネシア藤が丘グランドテラス 204号室の設備
キッチン
システムキッチン
カウンターキッチン
ガスコンロ
ディスポーザー
食洗機
バス・トイレ
バス・トイレ別
追い焚き
浴室乾燥機
温水洗浄便座
独立洗面台
玄関
TVモニタ付インターホン
オートロック
宅配ボックス
収納
ウォークインクローゼット
バルコニー
バルコニー
ルーフバルコニー
室内設備
エアコン
フローリング
床下暖房
室内洗濯機置場
位置・立地
2階以上
角部屋
インフラ
CATV
都市ガス
建物設備
エレベーター
分譲賃貸
ライフステージ
一人暮らしに人気の設備
カップルに人気の設備
家族に人気の設備
夫婦に人気の設備
三世代で人気の設備
こだわり
キッチン重視
外で子どもと遊びたい
身だしなみに気をつかいたい
雨の日でも洗濯したい
洋室で暮らしたい
自炊が多めなあなたに
趣味
料理が好き
服やおしゃれが好き
推し活グッズを飾りたい
ガーデニングが好き
アネシア藤が丘グランドテラス 204号室の賃貸契約情報
毎月支払う |
家賃16万円/月共益費- |
|---|---|
初期費用 |
敷金2ヶ月 (32万円)礼金1ヶ月 (16万円)保証金-敷引き償却金- |
更新料 |
- |
鍵交換費用 |
- |
室内清掃費用 |
- |
火災保険料 |
25,500円 |
駐車場料金 |
11,500円 |
損保・ |
借家賠付きの火災保険にご加入いただきます。 |
保証会社 |
加入要 保証会社利用料:保証会社 要:初回 賃料総額100%+月額 賃料総額2%(最低1,000円) |
契約期間 |
定期借家 4年 |
入居可能日 |
2026年04月上旬 |
フリーレント期間 |
- |
取引形態 |
一般媒介 |
備考 |
- |
アネシア藤が丘グランドテラス 204号室の建物情報
建物名称 |
アネシア藤が丘グランドテラス |
|---|---|
最寄駅 |
|
所在地 |
愛知県長久手市南原山 |
階層 |
2階部分(地上13階建) |
構造 |
RC |
築年数 |
2024年1月(築3年) |
駐車場 |
11,500円 |
小学校学区 |
北小学校 |
中学校学区 |
北中学校 |
- 学区データについて
- ※学区データは必ずしも正確とは限りません。詳細に関しては最寄店舗または各自治体の教育委員会に必ずご確認ください。
無料この物件に問い合わせ
- アネシア藤が丘グランドテラス 204号室

-
16万円
(共益費
-)
- 敷
- 2ヶ月
- 礼
- 1ヶ月
- 保
- -
- 償
- -
アネシア藤が丘グランドテラス 204号室の物件のお問い合わせ先・取り扱い店舗
ハウスコム 豊田店
- アクセス
-
名鉄三河線「豊田市駅」西口徒歩1分
- 住所
- 〒471-0026 愛知県豊田市若宮町1丁目8−1 第38 オーシャンビル 1階
- 営業時間
- 10:00~18:00
- 定休日
- なし
- 営業エリア
- 豊田市 みよし市 日進市 東郷町 岡崎市 刈谷市 知立市 瀬戸市 安城市
- 取引態様
- 賃貸仲介業
