ルーブル芦花公園 101号室(1階/1K)の賃貸物件(賃貸マンション)
東京都杉並区にあるルーブル芦花公園 101号室はガスコンロ、シューズボックス、エアコン、インターネット可、駐輪場などが特徴です。最寄り駅の京王線芦花公園駅から徒歩3分です。ルーブル芦花公園 101号室の詳細はハウスコム 千歳烏山店までお気軽にお問い合わせください!
情報更新日:
次回更新予定日:
※次回更新予定日について:お店側では順次空室確認を行っていますが、次回更新予定日までに空室確認が行えない場合には、この物件情報は自動的に削除されます。
ルーブル芦花公園 101号室の賃貸物件部屋概要
家賃 |
8.4万円
初期費用を |
|---|---|
共益費 |
-
入居可能時期 |
敷金/礼金 |
- / 1ヶ月 |
保証金/ |
- / - |
最寄駅 |
|
所在地 |
東京都杉並区上高井戸 |
部屋番号 |
101号室 |
間取り |
1K(洋7・K2) |
専有面積 |
21.68㎡ |
築年数 |
2002年3月(築24年) |
階数 |
1階部分(地上5階建) |
方位・位置 |
南 / 角部屋 |
物件種別 |
賃貸マンション |
構造 |
RC |
駐車場 |
- |
小学校学区 |
富士見丘小学校 |
中学校学区 |
富士見丘中学校 |
他の空き部屋 |
ー |
- 学区データについて
- ※学区データは必ずしも正確とは限りません。詳細に関しては最寄店舗または各自治体の教育委員会に必ずご確認ください。
ルーブル芦花公園 101号室の特徴
-
一人暮らしに人気の設備

-
カップルに人気の設備

-
家族に人気の設備

-
夫婦に人気の設備

-
三世代で人気の設備

-
外で子どもと遊びたい

-
雨の日でも洗濯したい

-
洋室で暮らしたい

-
緑のある環境が好き

-
ガーデニングが好き

-
家庭菜園が好き

契約条件
敷金が無料なため、初期費用が比較的安くなる傾向にあります。
セキュリティ
この物件の建物には、オートロックや防犯カメラや宅配ボックスが設置されており、来客時には居室内のテレビモニターにて訪問者の顔を確認することができます。
室内設備
システムキッチンには、2つ以上のガスコンロが備え付けられています。 洗濯に便利な設備として、室内洗濯機置場があります。
居室状況
お部屋の床は、フローリングとなっており、エアコンが設置されています。 照明器具が備え付けられており、入居後すぐ生活が始められます。 収納スペースとして、基本的な居室にクローゼットを設置、玄関にはシューズボックスがあります。
建物設備共用部分
居室外の専有スペースとして、入居者専用の庭があり、家庭菜園や簡単なお庭遊びが楽しめます。 建物の共用スペースに、日々の出入に便利なエレベーターや、いざという時の防犯カメラや、急な外出や不在がちのご家庭の荷物受け取りに便利な宅配ボックスや、居室内を常に清潔に保てる24時間利用可能なゴミ捨て置き場が設置されています。 駐輪場が利用できます。
周辺施設
この物件の学区は、富士見丘小学校区・富士見丘中学校区です。
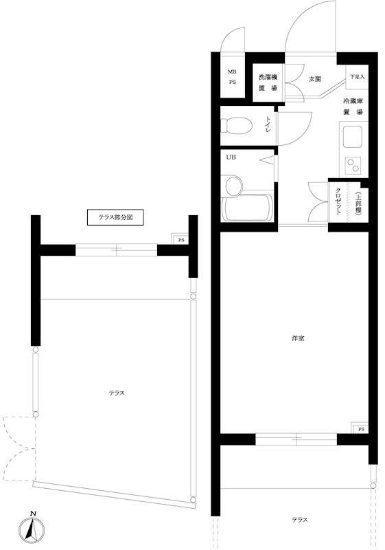
ルーブル芦花公園 101号室の間取り
間取り:1K
間取詳細:1K(洋7・K2)
専有面積:21.68㎡
方位:南
部屋位置:角部屋
ルーブル芦花公園 101号室の設備
キッチン
システムキッチン
ガスコンロ
ガスコンロ二口以上
バス・トイレ
バス・トイレ別
玄関
TVモニタ付インターホン
オートロック
宅配ボックス
収納
クローゼット
シューズボックス
バルコニー
専用庭付
室内設備
エアコン
フローリング
室内洗濯機置場
照明器具付
位置・立地
1階
角部屋
南向き
インフラ
インターネット可
CATV
BS
CS
都市ガス
建物設備
エレベーター
防犯カメラ
24時間ゴミ出しOK
駐輪場
分譲賃貸
入居条件
オンライン相談可
オンライン内見可
ライフステージ
一人暮らしに人気の設備
カップルに人気の設備
家族に人気の設備
夫婦に人気の設備
三世代で人気の設備
こだわり
外で子どもと遊びたい
雨の日でも洗濯したい
洋室で暮らしたい
趣味
緑のある環境が好き
ガーデニングが好き
家庭菜園が好き
ルーブル芦花公園 101号室の賃貸契約情報
毎月支払う |
家賃8.4万円/月共益費- |
|---|---|
初期費用 |
敷金-礼金1ヶ月 (8.4万円)保証金-敷引き償却金- |
更新料 |
84,000円 |
鍵交換費用 |
27,500円 |
室内清掃費用 |
55,000円 |
TFDクラブ |
20,000円 |
駐車場料金 |
- |
損保・ |
借家賠付きの火災保険にご加入いただきます。 |
保証会社 |
加入要 保証会社利用料:初回保証料30%(家賃+共益費)年間保証料10000円 ※学生初回保証料9000円 |
契約期間 |
2年 |
入居可能日 |
2026年05月中旬 |
フリーレント期間 |
- |
取引形態 |
一般媒介 |
備考 |
室内清掃費用 55000円 鍵交換代 27500円 初期:TFDクラブ 20000円 火災保険要加入 |
ルーブル芦花公園 101号室の建物情報
建物名称 |
ルーブル芦花公園 |
|---|---|
最寄駅 |
|
所在地 |
東京都杉並区上高井戸 |
階層 |
1階部分(地上5階建) |
構造 |
RC |
築年数 |
2002年3月(築24年) |
駐車場 |
- |
小学校学区 |
富士見丘小学校 |
中学校学区 |
富士見丘中学校 |
- 学区データについて
- ※学区データは必ずしも正確とは限りません。詳細に関しては最寄店舗または各自治体の教育委員会に必ずご確認ください。
無料この物件に問い合わせ
- ルーブル芦花公園 101号室

-
8.4万円
(共益費
-)
- 敷
- -
- 礼
- 1ヶ月
- 保
- -
- 償
- -
ルーブル芦花公園 101号室の物件のお問い合わせ先・取り扱い店舗
ハウスコム 千歳烏山店
- アクセス
-
京王線「千歳烏山駅」北口徒歩1分
- 住所
- 〒157-0062 東京都世田谷区南烏山6丁目2−1 駅前ビル 1F
- 営業時間
- 10:00~18:00
- 定休日
- なし
- 営業エリア
- 世田谷区、杉並区、調布市、三鷹市、狛江市
- 取引態様
- 賃貸仲介業

























