SYNCHRONICITY Musashino 207号室(2階/2LDK)の賃貸物件(賃貸マンション)
東京都武蔵野市にあるSYNCHRONICITY Musashino 207号室はシステムキッチン、カウンターキッチン、温水洗浄便座、オートロック、フローリングなどが特徴です。最寄り駅の中央本線(JR東日本)三鷹駅から徒歩9分です。SYNCHRONICITY Musashino 207号室の詳細はハウスコム 三鷹店までお気軽にお問い合わせください!
情報更新日:
次回更新予定日:
※次回更新予定日について:お店側では順次空室確認を行っていますが、次回更新予定日までに空室確認が行えない場合には、この物件情報は自動的に削除されます。
SYNCHRONICITY Musashino 207号室の賃貸物件部屋概要
家賃 |
21.8万円
初期費用を |
|---|---|
共益費 |
12,000円
入居可能時期 |
敷金/礼金 |
1ヶ月 / 1ヶ月 |
保証金/ |
- / - |
最寄駅 |
|
所在地 |
東京都武蔵野市中町 |
部屋番号 |
207号室 |
間取り |
2LDK(LDK11.2・洋7.1・洋6.2) |
専有面積 |
55.66㎡ |
築年数 |
2024年3月(築2年) |
階数 |
2階部分(地上5階建) |
方位・位置 |
南 / 角部屋 |
物件種別 |
賃貸マンション |
構造 |
RC |
駐車場 |
- |
小学校学区 |
井之頭小学校 |
中学校学区 |
第一中学校 |
他の空き部屋 |
ー |
- 学区データについて
- ※学区データは必ずしも正確とは限りません。詳細に関しては最寄店舗または各自治体の教育委員会に必ずご確認ください。
SYNCHRONICITY Musashino 207号室の特徴
-
一人暮らしに人気の設備

-
カップルに人気の設備

-
家族に人気の設備

-
夫婦に人気の設備

-
三世代で人気の設備

-
セキュリティ対策重視

-
外で子どもと遊びたい

-
雨の日でも洗濯したい

-
洋室で暮らしたい

-
料理が好き

-
服やおしゃれが好き

-
推し活グッズを飾りたい

-
オークション・通販が好き

-
ガーデニングが好き

契約条件
ご契約時に保証人は不要です。
セキュリティ
この物件の建物には、オートロックや防犯カメラや宅配ボックスが設置されており、来客時には居室内のテレビモニターにて訪問者の顔を確認することができます。
室内設備
システムキッチンには、IHコンロが備え付けられています。 お風呂とトイレは別です。お風呂には、追い焚き機能が備わっています。 トイレは、温水洗浄便座機能付きになります。 女性に嬉しい設備の独立した洗面化粧台があります。 洗濯に便利な設備として、室内洗濯機置場があります。浴室乾燥機も設置されているので、梅雨時の生乾き臭も比較的防ぐことができます。
居室状況
お部屋の床は、フローリングとなっており、エアコンが設置されています。 インターネットも無料で入居後すぐ生活が始められます。 収納スペースとして、基本的な居室にクローゼットを設置、通常よりも収納力の高いウォークインクローゼット、玄関にはシューズボックスがあります。
建物設備共用部分
居室外の専有スペースとして、洗濯物を干すなどの用途として利用できるバルコニーがあります。 建物の共用スペースに、日々の出入に便利なエレベーターや、いざという時の防犯カメラや、急な外出や不在がちのご家庭の荷物受け取りに便利な宅配ボックスが設置されています。 平面駐車場があります。駐輪場が利用できます。
周辺施設
この物件の学区は、井之頭小学校区・第一中学校区です。
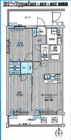
SYNCHRONICITY Musashino 207号室の間取り
間取り:2LDK
間取詳細:2LDK(LDK11.2・洋7.1・洋6.2)
専有面積:55.66㎡
方位:南
部屋位置:角部屋
SYNCHRONICITY Musashino 207号室の設備
キッチン
システムキッチン
カウンターキッチン
IHコンロ
バス・トイレ
バス・トイレ別
追い焚き
浴室乾燥機
温水洗浄便座
独立洗面台
玄関
TVモニタ付インターホン
オートロック
宅配ボックス
収納
クローゼット
ウォークインクローゼット
シューズボックス
バルコニー
バルコニー
ルーフバルコニー
室内設備
エアコン
フローリング
室内洗濯機置場
位置・立地
2階以上
角部屋
南向き
インフラ
インターネット可
BS
CS
都市ガス
建物設備
エレベーター
防犯カメラ
駐車場
平面駐車場
駐輪場
入居条件
オンライン相談可
オンライン内見可
保証人不要
ライフステージ
一人暮らしに人気の設備
カップルに人気の設備
家族に人気の設備
夫婦に人気の設備
三世代で人気の設備
こだわり
セキュリティ対策重視
外で子どもと遊びたい
雨の日でも洗濯したい
洋室で暮らしたい
趣味
料理が好き
服やおしゃれが好き
推し活グッズを飾りたい
オークション・通販が好き
ガーデニングが好き
お得な条件
インターネット無料
SYNCHRONICITY Musashino 207号室の賃貸契約情報
毎月支払う |
家賃21.8万円/月共益費12,000円/月 |
|---|---|
初期費用 |
敷金1ヶ月 (21.8万円)礼金1ヶ月 (21.8万円)保証金-敷引き償却金- |
更新料 |
218,000円 |
鍵交換費用 |
22,000円 |
室内清掃費用 |
- |
駐車場料金 |
- |
損保・ |
借家賠付きの火災保険にご加入いただきます。 |
保証会社 |
加入要 保証会社利用料:初回保証料:賃料等の50% 毎月保証料:賃料等の1% |
契約期間 |
2年 |
入居可能日 |
相談 |
フリーレント期間 |
- |
取引形態 |
一般媒介 |
備考 |
- |
SYNCHRONICITY Musashino 207号室の建物情報
建物名称 |
SYNCHRONICITY Musashino |
|---|---|
最寄駅 |
|
所在地 |
東京都武蔵野市中町 |
階層 |
2階部分(地上5階建) |
構造 |
RC |
築年数 |
2024年3月(築2年) |
駐車場 |
- |
小学校学区 |
井之頭小学校 |
中学校学区 |
第一中学校 |
- 学区データについて
- ※学区データは必ずしも正確とは限りません。詳細に関しては最寄店舗または各自治体の教育委員会に必ずご確認ください。
無料この物件に問い合わせ
- SYNCHRONICITY Musashino 207号室

-
21.8万円
(共益費
12,000円)
- 敷
- 1ヶ月
- 礼
- 1ヶ月
- 保
- -
- 償
- -
SYNCHRONICITY Musashino 207号室の物件のお問い合わせ先・取り扱い店舗
ハウスコム 三鷹店
- アクセス
-
中央本線(JR東日本)「三鷹駅」南口徒歩1分
- 住所
- 〒181-0013 東京都三鷹市下連雀3丁目45−2 麻沼ビル 1階
- 営業時間
- 10:00~18:00
- 定休日
- なし
- 営業エリア
- 三鷹市、武蔵野市、小金井市、杉並区、調布市、西東京市、練馬区、世田谷区
- 取引態様
- 賃貸仲介業





























