日宝ライフ放出西 ***号室(4階/2LDK)の賃貸物件(賃貸マンション)
大阪府大阪市城東区にある日宝ライフ放出西 ***号室は独立洗面台、室内洗濯機置場、2階以上、インターネット可、防犯カメラなどが特徴です。最寄り駅の大阪メトロ 長堀鶴見緑地線今福鶴見駅から徒歩10分です。日宝ライフ放出西 ***号室の詳細はミニミニ FC京橋店までお気軽にお問い合わせください!
情報更新日:
次回更新予定日:
※次回更新予定日について:お店側では順次空室確認を行っていますが、次回更新予定日までに空室確認が行えない場合には、この物件情報は自動的に削除されます。
日宝ライフ放出西 ***号室の賃貸物件部屋概要
家賃 |
8.2万円
初期費用を |
|---|---|
共益費 |
10,000円
入居可能時期 |
敷金/礼金 |
- / - |
保証金/ |
- / - |
最寄駅 |
|
所在地 |
大阪府大阪市城東区放出西 |
部屋番号 |
***号室 |
間取り |
2LDK(LDK9・洋4.5・和6) |
専有面積 |
43.88㎡ |
築年数 |
1989年6月(築37年) |
階数 |
4階部分(地上8階建) |
方位・位置 |
南 / 角部屋 |
物件種別 |
賃貸マンション |
構造 |
RC |
駐車場 |
14,300円 |
小学校学区 |
放出小学校 |
中学校学区 |
放出中学校 |
他の空き部屋 |
***号室 ***号室 ***号室 ***号室 |
- 学区データについて
- ※学区データは必ずしも正確とは限りません。詳細に関しては最寄店舗または各自治体の教育委員会に必ずご確認ください。
日宝ライフ放出西 ***号室の特徴
契約条件
敷金と礼金が無料なため、初期費用が比較的安くなる傾向にあります。
セキュリティ
この物件の建物には、オートロックや防犯カメラが設置されております。
室内設備
2つ以上のガスコンロが備え付けられています。 トイレは、温水洗浄便座機能付きになります。 女性に嬉しい設備の独立した洗面化粧台があります。 洗濯に便利な設備として、室内洗濯機置場があります。
居室状況
居室には、和室の居室もあり、子育てやリラックススペースとしての利用もできます。 お部屋の床は、フローリングとなっています。収納スペースとして、基本的な居室にクローゼットを設置、玄関にはシューズボックスがあります。
建物設備共用部分
居室外の専有スペースとして、洗濯物を干すなどの用途として利用できるバルコニーがあります。 建物の共用スペースに、日々の出入に便利なエレベーターや、いざという時の防犯カメラが設置されています。 駐輪場が利用できます。
周辺施設
この物件の学区は、放出小学校区・放出中学校区です。
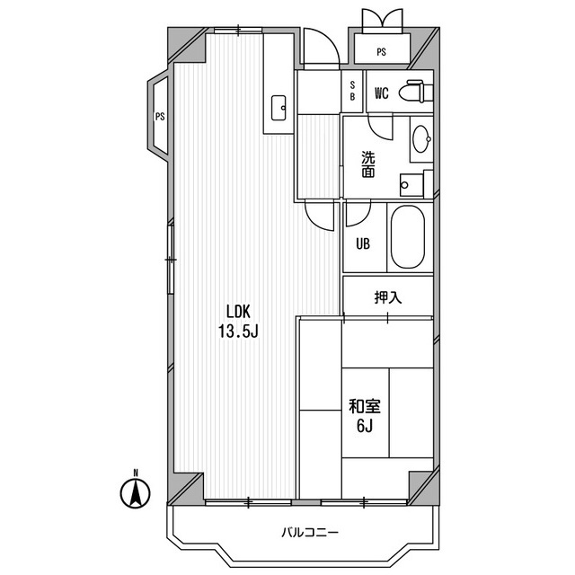
日宝ライフ放出西 ***号室の間取り
間取り:2LDK
間取詳細:2LDK(LDK9・洋4.5・和6)
専有面積:43.88㎡
方位:南
部屋位置:角部屋
日宝ライフ放出西 ***号室の設備
キッチン
ガスコンロ
ガスコンロ二口以上
バス・トイレ
バス・トイレ別
温水洗浄便座
独立洗面台
玄関
オートロック
収納
クローゼット
シューズボックス
バルコニー
バルコニー
ルーフバルコニー
室内設備
フローリング
室内洗濯機置場
和室あり
位置・立地
2階以上
角部屋
南向き
インフラ
インターネット可
BS
都市ガス
建物設備
エレベーター
防犯カメラ
駐輪場
入居条件
オンライン相談可
オンライン内見可
ライフステージ
一人暮らしに人気の設備
カップルに人気の設備
家族に人気の設備
夫婦に人気の設備
三世代で人気の設備
こだわり
外で子どもと遊びたい
雨の日でも洗濯したい
洋室で暮らしたい
趣味
ガーデニングが好き
日宝ライフ放出西 ***号室の賃貸契約情報
毎月支払う |
家賃8.2万円/月共益費10,000円/月 |
|---|---|
初期費用 |
敷金-礼金-保証金-敷引き償却金- |
更新料 |
82,000円 |
鍵交換費用 |
11,000円 |
室内清掃費用 |
49,500円 |
駐車場料金 |
14,300円 |
損保・ |
借家賠付きの火災保険にご加入いただきます。 |
保証会社 |
加入要 保証会社利用料:初回保証料:総賃料の30% 更新:10,000円/年 |
契約期間 |
2年 |
入居可能日 |
相談 |
フリーレント期間 |
- |
取引形態 |
一般媒介 |
備考 |
1年未満の解約で、共込1ヶ月分の短期違約設定有 |
日宝ライフ放出西 ***号室の建物情報
建物名称 |
日宝ライフ放出西 |
|---|---|
最寄駅 |
|
所在地 |
大阪府大阪市城東区放出西 |
階層 |
4階部分(地上8階建) |
構造 |
RC |
築年数 |
1989年6月(築37年) |
駐車場 |
14,300円 |
小学校学区 |
放出小学校 |
中学校学区 |
放出中学校 |
- 学区データについて
- ※学区データは必ずしも正確とは限りません。詳細に関しては最寄店舗または各自治体の教育委員会に必ずご確認ください。
無料この物件に問い合わせ
- 日宝ライフ放出西 ***号室

-
8.2万円
(共益費
10,000円)
- 敷
- -
- 礼
- -
- 保
- -
- 償
- -
日宝ライフ放出西 ***号室の物件のお問い合わせ先・取り扱い店舗
ミニミニ FC京橋店
- アクセス
-
大阪メトロ 長堀鶴見緑地線「京橋駅」徒歩2分
京阪本線「京橋駅」徒歩2分
大阪環状線「京橋駅」徒歩2分
- 住所
- 〒534-0024 大阪府大阪市都島区東野田町2-9-12 松和京橋第2ビル1F
- 営業時間
- 10:00~18:00
- 定休日
- なし
- 営業エリア
- 大阪市内、守口市、門真市、東大阪市
- 取引態様
- 賃貸仲介業






























