コスモひばりが丘ザ・ガーデンズフォートオーセントヒル 1005号室(10階/3LDK)の賃貸物件(賃貸マンション)
東京都西東京市にあるコスモひばりが丘ザ・ガーデンズフォートオーセントヒル 1005号室はガスコンロ、オートロック、室内洗濯機置場、都市ガス、エレベーターなどが特徴です。最寄り駅の西武池袋線・豊島線ひばりヶ丘駅から徒歩16分です。コスモひばりが丘ザ・ガーデンズフォートオーセントヒル 1005号室の詳細はハウスコム ひばりヶ丘店までお気軽にお問い合わせください!
情報更新日:
次回更新予定日:
※次回更新予定日について:お店側では順次空室確認を行っていますが、次回更新予定日までに空室確認が行えない場合には、この物件情報は自動的に削除されます。
コスモひばりが丘ザ・ガーデンズフォートオーセントヒル 1005号室の賃貸物件部屋概要
家賃 |
17万円
初期費用を |
|---|---|
共益費 |
-
入居可能時期 |
敷金/礼金 |
- / - |
保証金/ |
- / - |
最寄駅 |
|
所在地 |
東京都西東京市谷戸町 |
部屋番号 |
1005号室 |
間取り |
3LDK(LD11.3・K3.4・洋6・洋6.2・和6) |
専有面積 |
72.53㎡ |
築年数 |
2004年6月(築22年) |
階数 |
10階部分(地上13階建) |
方位・位置 |
南 / その他 |
物件種別 |
賃貸マンション |
構造 |
RC |
駐車場 |
- |
小学校学区 |
谷戸小学校 |
中学校学区 |
ひばりが丘中学校 |
他の空き部屋 |
ー |
- 学区データについて
- ※学区データは必ずしも正確とは限りません。詳細に関しては最寄店舗または各自治体の教育委員会に必ずご確認ください。
コスモひばりが丘ザ・ガーデンズフォートオーセントヒル 1005号室の特徴
-
一人暮らしに人気の設備

-
カップルに人気の設備

-
家族に人気の設備

-
夫婦に人気の設備

-
三世代で人気の設備

-
外で子どもと遊びたい

-
身だしなみに気をつかいたい

-
雨の日でも洗濯したい

-
洋室で暮らしたい

-
ガーデニングが好き

契約条件
この物件は、2人入居もご契約できます。 敷金と礼金が無料なため、初期費用が比較的安くなる傾向にあります。
セキュリティ
この物件の建物には、オートロックや防犯カメラや宅配ボックスが設置されております。
室内設備
システムキッチンには、ガスコンロが備え付けられています。 お風呂とトイレは別です。お風呂には、追い焚き機能が備わっています。 トイレは、温水洗浄便座機能付きになります。 女性に嬉しい設備の独立した洗面化粧台があります。 洗濯に便利な設備として、室内洗濯機置場があります。
居室状況
居室には、和室の居室もあり、子育てやリラックススペースとしての利用もできます。 お部屋の床は、フローリングとなっており、エアコンが設置されています。 収納スペースとして、基本的な居室にクローゼットを設置、玄関にはシューズボックスがあります。
建物設備共用部分
居室外の専有スペースとして、洗濯物を干すなどの用途として利用できるバルコニーがあります。 建物の共用スペースに、日々の出入に便利なエレベーターや、いざという時の防犯カメラや、急な外出や不在がちのご家庭の荷物受け取りに便利な宅配ボックスが設置されています。 駐輪場が利用できます。
周辺施設
この物件の学区は、谷戸小学校区・ひばりが丘中学校区です。
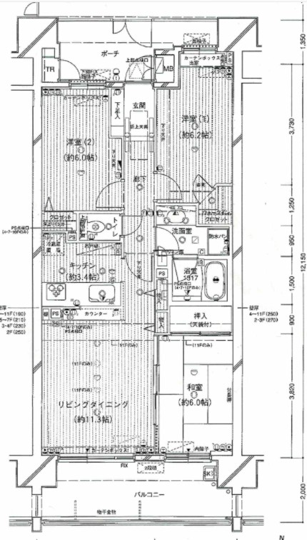
コスモひばりが丘ザ・ガーデンズフォートオーセントヒル 1005号室の間取り
間取り:3LDK
間取詳細:3LDK(LD11.3・K3.4・洋6・洋6.2・和6)
専有面積:72.53㎡
方位:南
部屋位置:その他
コスモひばりが丘ザ・ガーデンズフォートオーセントヒル 1005号室の設備
キッチン
システムキッチン
ガスコンロ
バス・トイレ
バス・トイレ別
追い焚き
温水洗浄便座
独立洗面台
玄関
オートロック
宅配ボックス
収納
クローゼット
シューズボックス
バルコニー
バルコニー
ルーフバルコニー
室内設備
エアコン
フローリング
室内洗濯機置場
和室あり
位置・立地
2階以上
南向き
インフラ
インターネット可
都市ガス
建物設備
エレベーター
防犯カメラ
駐輪場
分譲賃貸
入居条件
2人入居可
ライフステージ
一人暮らしに人気の設備
カップルに人気の設備
家族に人気の設備
夫婦に人気の設備
三世代で人気の設備
こだわり
外で子どもと遊びたい
身だしなみに気をつかいたい
雨の日でも洗濯したい
洋室で暮らしたい
趣味
ガーデニングが好き
コスモひばりが丘ザ・ガーデンズフォートオーセントヒル 1005号室の賃貸契約情報
毎月支払う |
家賃17万円/月共益費- |
|---|---|
初期費用 |
敷金-礼金-保証金-敷引き償却金- |
更新料 |
170,000円 |
鍵交換費用 |
- |
室内清掃費用 |
- |
駐車場料金 |
- |
損保・ |
借家賠付きの火災保険にご加入いただきます。 |
保証会社 |
加入要 保証会社利用料:初回総賃料の50% 年1万円 ※複数プラン有り |
契約期間 |
2年 |
入居可能日 |
2026年07月 |
フリーレント期間 |
- |
取引形態 |
一般媒介 |
備考 |
- |
コスモひばりが丘ザ・ガーデンズフォートオーセントヒル 1005号室の建物情報
建物名称 |
コスモひばりが丘ザ・ガーデンズフォートオーセントヒル |
|---|---|
最寄駅 |
|
所在地 |
東京都西東京市谷戸町 |
階層 |
10階部分(地上13階建) |
構造 |
RC |
築年数 |
2004年6月(築22年) |
駐車場 |
- |
小学校学区 |
谷戸小学校 |
中学校学区 |
ひばりが丘中学校 |
- 学区データについて
- ※学区データは必ずしも正確とは限りません。詳細に関しては最寄店舗または各自治体の教育委員会に必ずご確認ください。
無料この物件に問い合わせ
- コスモひばりが丘ザ・ガーデンズフォートオーセントヒル 1005号室

-
17万円
(共益費
-)
- 敷
- -
- 礼
- -
- 保
- -
- 償
- -
コスモひばりが丘ザ・ガーデンズフォートオーセントヒル 1005号室の物件のお問い合わせ先・取り扱い店舗
ハウスコム ひばりヶ丘店
- アクセス
-
西武池袋線・豊島線「ひばりヶ丘駅」徒歩2分
- 住所
- 〒188-0001 東京都西東京市谷戸町3-27-9 JCビルⅡ1階
- 営業時間
- 10:00~18:00
- 定休日
- 水曜日
- 営業エリア
- 西東京市・東久留米市・清瀬市・小平市・東村山市・小金井市・武蔵野市・練馬区・中野区・新座市・所沢市・朝霞市・和光市
- 取引態様
- 賃貸仲介業










