オアシス 102号室(1階/1K)の賃貸物件(賃貸マンション)
愛知県長久手市にあるオアシス 102号室はバス・トイレ別、バルコニー、室内洗濯機置場、都市ガス、駐輪場などが特徴です。最寄り駅のリニモ(愛知高速交通東部丘陵線)長久手古戦場駅から徒歩7分です。オアシス 102号室の詳細はハウスコム 藤が丘店までお気軽にお問い合わせください!
情報更新日:
次回更新予定日:
※次回更新予定日について:お店側では順次空室確認を行っていますが、次回更新予定日までに空室確認が行えない場合には、この物件情報は自動的に削除されます。
オアシス 102号室の賃貸物件部屋概要
家賃 |
4.4万円
初期費用を |
|---|---|
共益費 |
3,500円
入居可能時期 |
敷金/礼金 |
- / - |
保証金/ |
- / - |
最寄駅 |
|
所在地 |
愛知県長久手市砂子 |
部屋番号 |
102号室 |
間取り |
1K(洋8.1) |
専有面積 |
24.90㎡ |
築年数 |
1994年7月(築32年) |
階数 |
1階部分(地上3階建) |
方位・位置 |
南東 / その他 |
物件種別 |
賃貸マンション |
構造 |
鉄骨造 |
駐車場 |
空無し |
小学校学区 |
南小学校 |
中学校学区 |
南中学校 |
他の空き部屋 |
ー |
- 学区データについて
- ※学区データは必ずしも正確とは限りません。詳細に関しては最寄店舗または各自治体の教育委員会に必ずご確認ください。
オアシス 102号室の特徴
契約条件
敷金と礼金が無料なため、初期費用が比較的安くなる傾向にあります。
セキュリティ
来客時には居室内のテレビモニターにて訪問者の顔を確認することができます。
室内設備
洗濯に便利な設備として、室内洗濯機置場があります。
居室状況
エアコンが設置されています。
建物設備共用部分
居室外の専有スペースとして、洗濯物を干すなどの用途として利用できるバルコニーがあります。 駐輪場が利用できます。
周辺施設
この物件の学区は、南小学校区・南中学校区です。
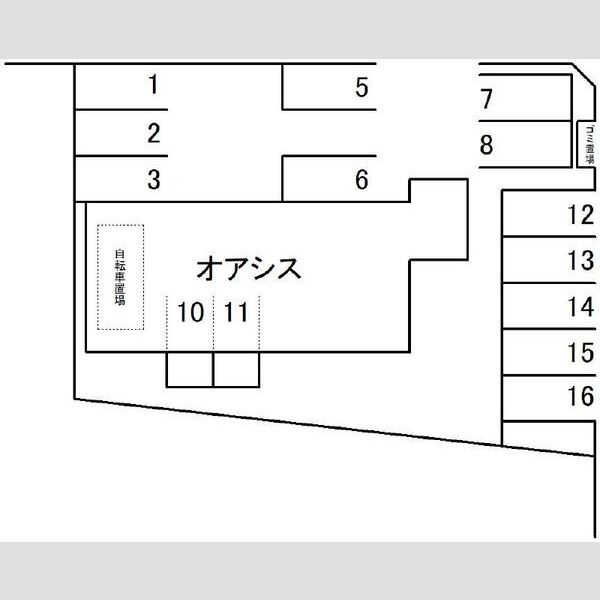
オアシス 102号室の間取り
間取り:1K
間取詳細:1K(洋8.1)
専有面積:24.90㎡
方位:南東
部屋位置:その他
オアシス 102号室の設備
バス・トイレ
バス・トイレ別
玄関
TVモニタ付インターホン
バルコニー
バルコニー
ルーフバルコニー
室内設備
エアコン
室内洗濯機置場
位置・立地
1階
インフラ
都市ガス
建物設備
駐輪場
ライフステージ
一人暮らしに人気の設備
カップルに人気の設備
家族に人気の設備
夫婦に人気の設備
三世代で人気の設備
こだわり
外で子どもと遊びたい
雨の日でも洗濯したい
寝るためだけの部屋
趣味
ガーデニングが好き
オアシス 102号室の賃貸契約情報
毎月支払う |
家賃4.4万円/月共益費3,500円/月 |
|---|---|
初期費用 |
敷金-礼金-保証金-敷引き償却金- |
更新料 |
- |
鍵交換費用 |
- |
室内清掃費用 |
- |
定額精算 |
66,000円 |
総合サポートサービス料 |
1,650円 |
駐車場料金 |
空無し |
損保・ |
借家賠付きの火災保険にご加入いただきます。 |
保証会社 |
加入要 保証会社利用料:■初回保証委託料は月額総賃料の50%■更新料12,000円/年■月額保証料330円/月 |
契約期間 |
2年 |
入居可能日 |
2026年04月下旬 |
フリーレント期間 |
- |
取引形態 |
一般媒介 |
備考 |
- |
オアシス 102号室の建物情報
建物名称 |
オアシス |
|---|---|
最寄駅 |
|
所在地 |
愛知県長久手市砂子 |
階層 |
1階部分(地上3階建) |
構造 |
鉄骨造 |
築年数 |
1994年7月(築32年) |
駐車場 |
空無し |
小学校学区 |
南小学校 |
中学校学区 |
南中学校 |
- 学区データについて
- ※学区データは必ずしも正確とは限りません。詳細に関しては最寄店舗または各自治体の教育委員会に必ずご確認ください。
無料この物件に問い合わせ
- オアシス 102号室

-
4.4万円
(共益費
3,500円)
- 敷
- -
- 礼
- -
- 保
- -
- 償
- -
オアシス 102号室の物件のお問い合わせ先・取り扱い店舗
ハウスコム 藤が丘店
駅徒歩3分以内
駅徒歩5分以内
土日営業
- アクセス
-
名古屋市営地下鉄 東山線「藤が丘駅」徒歩2分
- 住所
- 〒465-0033 愛知県名古屋市名東区明が丘123−2 第一明が丘ビル 1階
- 営業時間
- 10:00~18:00
- 定休日
- 水曜日
- 営業エリア
- 名東区,長久手市,日進市,尾張旭市,瀬戸市、守山区
- 取引態様
- 賃貸仲介業
お問い合わせNo. HC5-5190172-102-0059















