コスモグラシア新宿西早稲田 501号室(5階/1LDK)の賃貸物件(賃貸マンション)
東京都新宿区にあるコスモグラシア新宿西早稲田 501号室はエレベーター、防犯カメラ、駐輪場、ペット可・相談、即入居可などが特徴です。最寄り駅の東京さくらトラム(都電荒川線)早稲田駅から徒歩7分です。コスモグラシア新宿西早稲田 501号室の詳細はハウスコム 高田馬場店までお気軽にお問い合わせください!
情報更新日:
次回更新予定日:
※次回更新予定日について:お店側では順次空室確認を行っていますが、次回更新予定日までに空室確認が行えない場合には、この物件情報は自動的に削除されます。
コスモグラシア新宿西早稲田 501号室の賃貸物件部屋概要
家賃 |
18.3万円
初期費用を |
|---|---|
共益費 |
10,000円
入居可能時期 |
敷金/礼金 |
1ヶ月 / - |
保証金/ |
- / - |
最寄駅 |
|
所在地 |
東京都新宿区西早稲田 |
部屋番号 |
501号室 |
間取り |
1LDK(LDK8・洋4.3) |
専有面積 |
30.34㎡ |
築年数 |
新築 |
階数 |
5階部分(地上12階建) |
方位・位置 |
南西 / その他 |
物件種別 |
賃貸マンション |
構造 |
RC |
駐車場 |
- |
小学校学区 |
戸塚第一小学校 |
中学校学区 |
西早稲田中学校 |
他の空き部屋 |
1001号室 1002号室 1003号室 1101号室 1201号室 1202号室 201号室 202号室 203号室 301号室 303号室 401号室 402号室 403号室 502号室 503号室 601号室 602号室 603号室 701号室 702号室 703号室 801号室 802号室 803号室 901号室 902号室 903号室 |
- 学区データについて
- ※学区データは必ずしも正確とは限りません。詳細に関しては最寄店舗または各自治体の教育委員会に必ずご確認ください。
コスモグラシア新宿西早稲田 501号室の特徴
-
一人暮らしに人気の設備

-
カップルに人気の設備

-
家族に人気の設備

-
夫婦に人気の設備

-
三世代で人気の設備

-
セキュリティ対策重視

-
外で子どもと遊びたい

-
雨の日でも洗濯したい

-
洋室で暮らしたい

-
オークション・通販が好き

-
ガーデニングが好き

契約条件
ペットの飼育や楽器演奏もご相談ください。 礼金が無料なため、初期費用が比較的安くなる傾向にあります。
セキュリティ
この物件の建物には、オートロックや防犯カメラや宅配ボックスが設置されており、来客時には居室内のテレビモニターにて訪問者の顔を確認することができます。
室内設備
システムキッチンには、2つ以上のガスコンロが備え付けられています。 お風呂とトイレは別です。お風呂には、追い焚き機能が備わっています。 トイレは、温水洗浄便座機能付きになります。 女性に嬉しい設備の独立した洗面化粧台があります。 洗濯に便利な設備として、室内洗濯機置場があります。浴室乾燥機も設置されているので、梅雨時の生乾き臭も比較的防ぐことができます。
居室状況
お部屋の床は、フローリングとなっており、エアコンが設置されています。 インターネットも無料で入居後すぐ生活が始められます。 収納スペースとして、基本的な居室にクローゼットを設置、玄関にはシューズボックスがあります。
建物設備共用部分
居室外の専有スペースとして、洗濯物を干すなどの用途として利用できるバルコニーがあります。 建物の共用スペースに、日々の出入に便利なエレベーターや、いざという時の防犯カメラや、急な外出や不在がちのご家庭の荷物受け取りに便利な宅配ボックスが設置されています。 駐輪場が利用できます。
周辺施設
この物件の学区は、戸塚第一小学校区・西早稲田中学校区です。
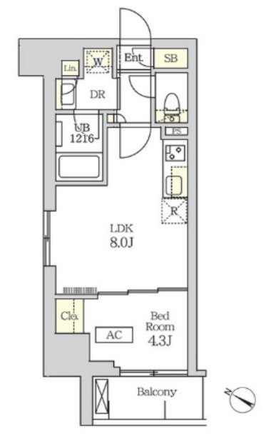
コスモグラシア新宿西早稲田 501号室の間取り
間取り:1LDK
間取詳細:1LDK(LDK8・洋4.3)
専有面積:30.34㎡
方位:南西
部屋位置:その他
コスモグラシア新宿西早稲田 501号室の設備
キッチン
システムキッチン
ガスコンロ
ガスコンロ二口以上
バス・トイレ
バス・トイレ別
追い焚き
浴室乾燥機
温水洗浄便座
独立洗面台
玄関
TVモニタ付インターホン
オートロック
宅配ボックス
収納
クローゼット
シューズボックス
バルコニー
バルコニー
ルーフバルコニー
室内設備
エアコン
フローリング
室内洗濯機置場
位置・立地
2階以上
インフラ
BS
都市ガス
建物設備
エレベーター
防犯カメラ
駐輪場
入居条件
ペット可・相談
楽器可・相談
即入居可
ライフステージ
一人暮らしに人気の設備
カップルに人気の設備
家族に人気の設備
夫婦に人気の設備
三世代で人気の設備
こだわり
セキュリティ対策重視
外で子どもと遊びたい
雨の日でも洗濯したい
洋室で暮らしたい
趣味
オークション・通販が好き
ガーデニングが好き
お得な条件
インターネット無料
コスモグラシア新宿西早稲田 501号室の賃貸契約情報
毎月支払う |
家賃18.3万円/月共益費10,000円/月 |
|---|---|
初期費用 |
敷金1ヶ月 (18.3万円)礼金-保証金-敷引き償却金- |
更新料 |
183,000円 |
鍵交換費用 |
- |
室内清掃費用 |
- |
M-REALプレミアム会費 |
19,800円 |
駐車場料金 |
- |
損保・ |
借家賠付きの火災保険にご加入いただきます。 |
保証会社 |
加入要 保証会社利用料:賃料等の50%、月次保証料は賃料等の1%、その他保証会社条件あり |
契約期間 |
2年 |
入居可能日 |
即入居可 |
フリーレント期間 |
- |
取引形態 |
一般媒介 |
備考 |
1年未満解約時賃料等2ヶ月分の違約金有 駐輪場:有料 ペット飼育時敷金積み増し料金(償却)有り |
コスモグラシア新宿西早稲田 501号室の建物情報
建物名称 |
コスモグラシア新宿西早稲田 |
|---|---|
最寄駅 |
|
所在地 |
東京都新宿区西早稲田 |
階層 |
5階部分(地上12階建) |
構造 |
RC |
築年数 |
新築 |
駐車場 |
- |
小学校学区 |
戸塚第一小学校 |
中学校学区 |
西早稲田中学校 |
- 学区データについて
- ※学区データは必ずしも正確とは限りません。詳細に関しては最寄店舗または各自治体の教育委員会に必ずご確認ください。
無料この物件に問い合わせ
- コスモグラシア新宿西早稲田 501号室

-
18.3万円
(共益費
10,000円)
- 敷
- 1ヶ月
- 礼
- -
- 保
- -
- 償
- -
コスモグラシア新宿西早稲田 501号室の物件のお問い合わせ先・取り扱い店舗
ハウスコム 高田馬場店
- アクセス
-
山手線「高田馬場駅」徒歩5分
- 住所
- 〒169-0075 東京都新宿区高田馬場1-17-18 マルシメビル1階
- 営業時間
- 10:00~18:00
- 定休日
- 水曜日
- 営業エリア
- 新宿区 豊島区 杉並区 中野区 文京区
- 取引態様
- 賃貸仲介業





