KEIAI RESIDENCE 西浦和 103号室(1階/1K)の賃貸物件(賃貸アパート)
埼玉県さいたま市桜区にあるKEIAI RESIDENCE 西浦和 103号室はガスコンロ、独立洗面台、TVモニタ付インターホン、クローゼット、オンライン相談可などが特徴です。最寄り駅の武蔵野線西浦和駅から徒歩7分です。KEIAI RESIDENCE 西浦和 103号室の詳細はハウスコム 浦和店までお気軽にお問い合わせください!
情報更新日:
次回更新予定日:
※次回更新予定日について:お店側では順次空室確認を行っていますが、次回更新予定日までに空室確認が行えない場合には、この物件情報は自動的に削除されます。
KEIAI RESIDENCE 西浦和 103号室の賃貸物件部屋概要
家賃 |
7.4万円
初期費用を |
|---|---|
共益費 |
3,500円
入居可能時期 |
敷金/礼金 |
- / 1ヶ月 |
保証金/ |
- / - |
最寄駅 |
|
所在地 |
埼玉県さいたま市桜区田島 |
部屋番号 |
103号室 |
間取り |
1K(洋6.3) |
専有面積 |
22.66㎡ |
築年数 |
新築 |
階数 |
1階部分(地上3階建) |
方位・位置 |
ー / 角部屋 |
物件種別 |
賃貸アパート |
構造 |
木造 |
駐車場 |
無 |
小学校学区 |
新開小学校 |
中学校学区 |
田島中学校 |
他の空き部屋 |
101号室 102号室 201号室 202号室 203号室 301号室 302号室 303号室 |
- 学区データについて
- ※学区データは必ずしも正確とは限りません。詳細に関しては最寄店舗または各自治体の教育委員会に必ずご確認ください。
KEIAI RESIDENCE 西浦和 103号室の特徴
契約条件
ご契約時に保証人は不要です。 敷金が無料なため、初期費用が比較的安くなる傾向にあります。
セキュリティ
この物件の建物には、オートロックが設置されており、来客時には居室内のテレビモニターにて訪問者の顔を確認することができます。
室内設備
システムキッチンには、2つ以上のガスコンロが備え付けられています。 トイレは、温水洗浄便座機能付きになります。 女性に嬉しい設備の独立した洗面化粧台があります。 洗濯に便利な設備として、室内洗濯機置場があります。浴室乾燥機も設置されているので、梅雨時の生乾き臭も比較的防ぐことができます。
居室状況
お部屋の床は、フローリングとなっており、エアコンが設置されています。 インターネットも無料で入居後すぐ生活が始められます。 収納スペースとして、基本的な居室にクローゼットを設置、玄関にはシューズボックスがあります。
建物設備共用部分
居室外の専有スペースとして、洗濯物を干すなどの用途として利用できるバルコニーがあります。
周辺施設
この物件の学区は、新開小学校区・田島中学校区です。
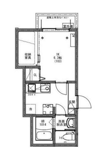
KEIAI RESIDENCE 西浦和 103号室の間取り
間取り:1K
間取詳細:1K(洋6.3)
専有面積:22.66㎡
方位:ー
部屋位置:角部屋
KEIAI RESIDENCE 西浦和 103号室の設備
キッチン
システムキッチン
ガスコンロ
ガスコンロ二口以上
バス・トイレ
バス・トイレ別
浴室乾燥機
温水洗浄便座
独立洗面台
玄関
TVモニタ付インターホン
オートロック
収納
クローゼット
シューズボックス
バルコニー
バルコニー
ルーフバルコニー
室内設備
エアコン
フローリング
室内洗濯機置場
位置・立地
1階
角部屋
インフラ
インターネット可
都市ガス
入居条件
オンライン相談可
オンライン内見可
保証人不要
ライフステージ
一人暮らしに人気の設備
カップルに人気の設備
家族に人気の設備
夫婦に人気の設備
三世代で人気の設備
こだわり
外で子どもと遊びたい
雨の日でも洗濯したい
洋室で暮らしたい
趣味
ガーデニングが好き
お得な条件
インターネット無料
KEIAI RESIDENCE 西浦和 103号室の賃貸契約情報
毎月支払う |
家賃7.4万円/月共益費3,500円/月 |
|---|---|
初期費用 |
敷金-礼金1ヶ月 (7.4万円)保証金-敷引き償却金- |
更新料 |
74,000円 |
鍵交換費用 |
27,500円 |
室内清掃費用 |
55,000円 |
契約事務手数料 |
16,500円 |
駐車場料金 |
無 |
損保・ |
借家賠付きの火災保険にご加入いただきます。 |
保証会社 |
加入要 保証会社利用料:初回50% 月額900円 |
契約期間 |
2年 |
入居可能日 |
2026年05月 |
フリーレント期間 |
- |
取引形態 |
一般媒介 |
備考 |
室内清掃費用 55000円 鍵交換代 27500円 月額:KEIAI CLUB 1980円 初期:契約事務手数料 16500円 保証会社利用必須 |
KEIAI RESIDENCE 西浦和 103号室の建物情報
建物名称 |
KEIAI RESIDENCE 西浦和 |
|---|---|
最寄駅 |
|
所在地 |
埼玉県さいたま市桜区田島 |
階層 |
1階部分(地上3階建) |
構造 |
木造 |
築年数 |
新築 |
駐車場 |
無 |
小学校学区 |
新開小学校 |
中学校学区 |
田島中学校 |
- 学区データについて
- ※学区データは必ずしも正確とは限りません。詳細に関しては最寄店舗または各自治体の教育委員会に必ずご確認ください。
無料この物件に問い合わせ
- KEIAI RESIDENCE 西浦和 103号室

-
7.4万円
(共益費
3,500円)
- 敷
- -
- 礼
- 1ヶ月
- 保
- -
- 償
- -
KEIAI RESIDENCE 西浦和 103号室の物件のお問い合わせ先・取り扱い店舗
ハウスコム 浦和店
- アクセス
-
京浜東北・根岸線「浦和駅」西口徒歩2分
- 住所
- 〒330-0062 埼玉県さいたま市浦和区仲町1丁目2−10
- 営業時間
- 10:00~18:00
- 定休日
- 水曜日
- 営業エリア
- さいたま市浦和区,さいたま市南区,さいたま市緑区,さいたま市中央区,さいたま市桜区,さいたま市大宮区,川口市
- 取引態様
- 賃貸仲介業





























