墨田の完工年月(2012年3月)築の賃貸アパート ***号室(2階/1R)の賃貸物件(賃貸アパート)
東京都墨田区にある墨田の完工年月(2012年3月)築の賃貸アパート ***号室はシャワー付洗面化粧台、クローゼット、シューズボックス、フローリング、ロフト付などが特徴です。最寄り駅の東武スカイツリーライン・伊勢崎線・大師線鐘ヶ淵駅から徒歩6分です。墨田の完工年月(2012年3月)築の賃貸アパート ***号室の詳細はハウスコム 北千住店までお気軽にお問い合わせください!
情報更新日:
次回更新予定日:
※次回更新予定日について:お店側では順次空室確認を行っていますが、次回更新予定日までに空室確認が行えない場合には、この物件情報は自動的に削除されます。
墨田の完工年月(2012年3月)築の賃貸アパート ***号室の賃貸物件部屋概要
家賃 |
7.9万円
初期費用を |
|---|---|
共益費 |
2,000円
入居可能時期 |
敷金/礼金 |
1ヶ月 / 1ヶ月 |
保証金/ |
- / - |
最寄駅 |
|
所在地 |
東京都墨田区墨田 |
部屋番号 |
***号室 |
間取り |
1R(洋7.5・他3) |
専有面積 |
26.09㎡ |
築年数 |
2012年3月(築14年) |
階数 |
2階部分(地上2階建) |
方位・位置 |
ー / 角部屋 |
物件種別 |
賃貸アパート |
構造 |
木造 |
駐車場 |
- |
小学校学区 |
梅若小学校 |
中学校学区 |
桜堤中学校 |
他の空き部屋 |
ー |
- 学区データについて
- ※学区データは必ずしも正確とは限りません。詳細に関しては最寄店舗または各自治体の教育委員会に必ずご確認ください。
墨田の完工年月(2012年3月)築の賃貸アパート ***号室の特徴
セキュリティ
来客時には居室内のテレビモニターにて訪問者の顔を確認することができます。
室内設備
システムキッチンが備え付けられています。 お風呂とトイレは別です。お風呂には、追い焚き機能が備わっています。 女性に嬉しい設備のシャワーの付いている洗面化粧台があります。 洗濯に便利な設備として、室内洗濯機置場があります。浴室乾燥機も設置されているので、梅雨時の生乾き臭も比較的防ぐことができます。
居室状況
居室には、ロフトが設置されており大規模な収納スペースやセパレートされた寝室として活用できます。 お部屋の床は、フローリングとなっており、エアコンが設置されています。 収納スペースとして、基本的な居室にクローゼットを設置、玄関にはシューズボックスがあります。
建物設備共用部分
駐輪場、バイク置き場が利用できます。
周辺施設
この物件の学区は、梅若小学校区・桜堤中学校区です。
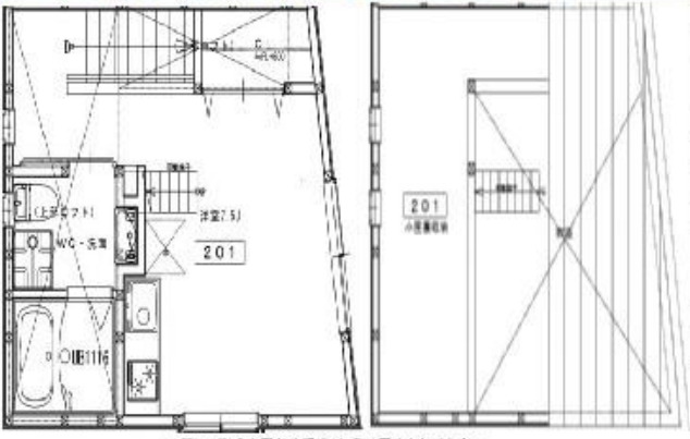
墨田の完工年月(2012年3月)築の賃貸アパート ***号室の間取り
間取り:1R
間取詳細:1R(洋7.5・他3)
専有面積:26.09㎡
方位:ー
部屋位置:角部屋
墨田の完工年月(2012年3月)築の賃貸アパート ***号室の設備
キッチン
システムキッチン
バス・トイレ
バス・トイレ別
追い焚き
浴室乾燥機
独立洗面台
シャワー付洗面化粧台
玄関
TVモニタ付インターホン
収納
クローゼット
シューズボックス
室内設備
エアコン
フローリング
室内洗濯機置場
ロフト付
位置・立地
2階以上
最上階
角部屋
インフラ
インターネット可
都市ガス
建物設備
駐輪場
バイク置き場
入居条件
即入居可
ライフステージ
一人暮らしに人気の設備
カップルに人気の設備
家族に人気の設備
夫婦に人気の設備
三世代で人気の設備
こだわり
雨の日でも洗濯したい
洋室で暮らしたい
墨田の完工年月(2012年3月)築の賃貸アパート ***号室の賃貸契約情報
毎月支払う |
家賃7.9万円/月共益費2,000円/月 |
|---|---|
初期費用 |
敷金1ヶ月 (7.9万円)礼金1ヶ月 (7.9万円)保証金-敷引き償却金- |
更新料 |
79,000円 |
鍵交換費用 |
- |
室内清掃費用 |
- |
室内消毒 |
11,000円 |
駐車場料金 |
- |
損保・ |
借家賠付きの火災保険にご加入いただきます。 |
保証会社 |
加入要 保証会社利用料:初回:50% |
契約期間 |
2年 |
入居可能日 |
即入居可 |
フリーレント期間 |
- |
取引形態 |
一般媒介 |
備考 |
- |
墨田の完工年月(2012年3月)築の賃貸アパート ***号室の建物情報
建物名称 |
墨田の完工年月(2012年3月)築の賃貸アパート |
|---|---|
最寄駅 |
|
所在地 |
東京都墨田区墨田 |
階層 |
2階部分(地上2階建) |
構造 |
木造 |
築年数 |
2012年3月(築14年) |
駐車場 |
- |
小学校学区 |
梅若小学校 |
中学校学区 |
桜堤中学校 |
- 学区データについて
- ※学区データは必ずしも正確とは限りません。詳細に関しては最寄店舗または各自治体の教育委員会に必ずご確認ください。
無料この物件に問い合わせ
- 墨田の完工年月(2012年3月)築の賃貸アパート ***号室

-
7.9万円
(共益費
2,000円)
- 敷
- 1ヶ月
- 礼
- 1ヶ月
- 保
- -
- 償
- -
墨田の完工年月(2012年3月)築の賃貸アパート ***号室の物件のお問い合わせ先・取り扱い店舗
ハウスコム 北千住店
- アクセス
-
東京メトロ 日比谷線「北千住駅」東口徒歩1分
- 住所
- 〒120-0026 東京都足立区千住旭町3−11 NSビル 1階
- 営業時間
- 10:00~18:00
- 定休日
- なし
- 営業エリア
- 足立区、荒川区、台東区、墨田区、葛飾区、八潮市、草加市、三郷市
- 取引態様
- 賃貸仲介業
















