PREMIUM CUBE 品川戸越 #mo 604号室(6階/1K)の賃貸物件(賃貸マンション)
東京都品川区にあるPREMIUM CUBE 品川戸越 #mo 604号室はシステムキッチン、バス・トイレ別、宅配ボックス、エアコン、エレベーターなどが特徴です。最寄り駅の都営浅草線戸越駅から徒歩5分です。PREMIUM CUBE 品川戸越 #mo 604号室の詳細はハウスコム 五反田店までお気軽にお問い合わせください!
情報更新日:
次回更新予定日:
※次回更新予定日について:お店側では順次空室確認を行っていますが、次回更新予定日までに空室確認が行えない場合には、この物件情報は自動的に削除されます。
PREMIUM CUBE 品川戸越 #mo 604号室の賃貸物件部屋概要
家賃 |
10.8万円
初期費用を |
|---|---|
共益費 |
10,000円
入居可能時期 |
敷金/礼金 |
1ヶ月 / 1ヶ月 |
保証金/ |
- / - |
最寄駅 |
|
所在地 |
東京都品川区東中延 |
部屋番号 |
604号室 |
間取り |
1K |
専有面積 |
21.64㎡ |
築年数 |
2017年6月(築9年) |
階数 |
6階部分(地上13階建) |
方位・位置 |
ー / 角部屋 |
物件種別 |
賃貸マンション |
構造 |
RC |
駐車場 |
無 |
小学校学区 |
中延小学校 |
中学校学区 |
荏原平塚学園義務教育学校 |
他の空き部屋 |
ー |
- 学区データについて
- ※学区データは必ずしも正確とは限りません。詳細に関しては最寄店舗または各自治体の教育委員会に必ずご確認ください。
PREMIUM CUBE 品川戸越 #mo 604号室の特徴
セキュリティ
この物件の建物には、オートロックや宅配ボックスが設置されており、来客時には居室内のテレビモニターにて訪問者の顔を確認することができます。
室内設備
システムキッチンが備え付けられています。 トイレは、温水洗浄便座機能付きになります。 女性に嬉しい設備の独立した洗面化粧台があります。 洗濯に便利な設備として、浴室乾燥機も設置されているので、梅雨時の生乾き臭も比較的防ぐことができます。
居室状況
お部屋の床は、フローリングとなっており、エアコンが設置されています。 収納スペースとして、基本的な居室にクローゼットを設置、玄関にはシューズボックスがあります。
建物設備共用部分
居室外の専有スペースとして、洗濯物を干すなどの用途として利用できるバルコニーがあります。 建物の共用スペースに、日々の出入に便利なエレベーターや、急な外出や不在がちのご家庭の荷物受け取りに便利な宅配ボックスや、居室内を常に清潔に保てる24時間利用可能なゴミ捨て置き場が設置されています。 駐輪場が利用できます。
周辺施設
この物件の学区は、中延小学校区・荏原平塚学園義務教育学校区です。
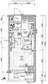
PREMIUM CUBE 品川戸越 #mo 604号室の間取り
間取り:1K
間取詳細:1K
専有面積:21.64㎡
方位:ー
部屋位置:角部屋
PREMIUM CUBE 品川戸越 #mo 604号室の設備
キッチン
システムキッチン
バス・トイレ
バス・トイレ別
浴室乾燥機
温水洗浄便座
独立洗面台
玄関
TVモニタ付インターホン
オートロック
宅配ボックス
収納
クローゼット
シューズボックス
バルコニー
バルコニー
ルーフバルコニー
室内設備
エアコン
フローリング
位置・立地
2階以上
角部屋
インフラ
都市ガス
建物設備
エレベーター
24時間ゴミ出しOK
駐輪場
ライフステージ
一人暮らしに人気の設備
カップルに人気の設備
家族に人気の設備
夫婦に人気の設備
三世代で人気の設備
こだわり
タイパ重視
外で子どもと遊びたい
雨の日でも洗濯したい
洋室で暮らしたい
趣味
ガーデニングが好き
PREMIUM CUBE 品川戸越 #mo 604号室の賃貸契約情報
毎月支払う |
家賃10.8万円/月共益費10,000円/月 |
|---|---|
初期費用 |
敷金1ヶ月 (10.8万円)礼金1ヶ月 (10.8万円)保証金-敷引き償却金- |
更新料 |
108,000円 |
鍵交換費用 |
33,000円 |
室内清掃費用 |
- |
退去時ハウスクリーニング |
38,500円 |
駐車場料金 |
無 |
損保・ |
借家賠付きの火災保険にご加入いただきます。 |
保証会社 |
加入要 保証会社利用料:【㈱ランドインシュア】初回:総賃料の50~100%(※審査により変動あり。総賃料にコールセンター料・決済サービス料を含む)、1年毎更新:15000円、決済サービス料:440円(月額) |
契約期間 |
2年 |
入居可能日 |
2026年06月中旬 |
フリーレント期間 |
- |
取引形態 |
一般媒介 |
備考 |
短期解約違約金あり1年未満の解約賃料総額の2ヶ月分、1年以上2年未満の解約賃料総額の1ヶ月分 |
PREMIUM CUBE 品川戸越 #mo 604号室の建物情報
建物名称 |
PREMIUM CUBE 品川戸越 #mo |
|---|---|
最寄駅 |
|
所在地 |
東京都品川区東中延 |
階層 |
6階部分(地上13階建) |
構造 |
RC |
築年数 |
2017年6月(築9年) |
駐車場 |
無 |
小学校学区 |
中延小学校 |
中学校学区 |
荏原平塚学園義務教育学校 |
- 学区データについて
- ※学区データは必ずしも正確とは限りません。詳細に関しては最寄店舗または各自治体の教育委員会に必ずご確認ください。
無料この物件に問い合わせ
- PREMIUM CUBE 品川戸越 #mo 604号室

-
10.8万円
(共益費
10,000円)
- 敷
- 1ヶ月
- 礼
- 1ヶ月
- 保
- -
- 償
- -
PREMIUM CUBE 品川戸越 #mo 604号室の物件のお問い合わせ先・取り扱い店舗
ハウスコム 五反田店
- アクセス
-
山手線「五反田駅」東口徒歩1分
都営浅草線「五反田駅」A6出口より徒歩1分
- 住所
- 〒141-0022 東京都品川区東五反田1丁目12−12 落合ビル 2F
- 営業時間
- 10:00~18:00
- 定休日
- 水曜日
- 営業エリア
- 品川区,大田区,港区,目黒区
- 取引態様
- 賃貸仲介業




























