Plena Solis 学芸大学 2A号室(1階/2LDK)の賃貸物件(賃貸アパート)
東京都目黒区にあるPlena Solis 学芸大学 2A号室はガスコンロ、クローゼット、ルーフバルコニー、エアコン、1階などが特徴です。最寄り駅の東急東横線学芸大学駅から徒歩7分です。Plena Solis 学芸大学 2A号室の詳細はハウスコム 三軒茶屋店までお気軽にお問い合わせください!
情報更新日:
次回更新予定日:
※次回更新予定日について:お店側では順次空室確認を行っていますが、次回更新予定日までに空室確認が行えない場合には、この物件情報は自動的に削除されます。
Plena Solis 学芸大学 2A号室の賃貸物件部屋概要
家賃 |
24.5万円
初期費用を |
|---|---|
共益費 |
5,000円
入居可能時期 |
敷金/礼金 |
1ヶ月 / 1ヶ月 |
保証金/ |
- / - |
最寄駅 |
|
所在地 |
東京都目黒区五本木 |
部屋番号 |
2A号室 |
間取り |
2LDK(洋5.1・洋5・LDK12) |
専有面積 |
56.08㎡ |
築年数 |
2026年3月 |
階数 |
1階部分(地上2階建) |
方位・位置 |
南西 / 角部屋 |
物件種別 |
賃貸アパート |
構造 |
木造 |
駐車場 |
無 |
小学校学区 |
五本木小学校 |
中学校学区 |
目黒中央中学校 |
他の空き部屋 |
ー |
- 学区データについて
- ※学区データは必ずしも正確とは限りません。詳細に関しては最寄店舗または各自治体の教育委員会に必ずご確認ください。
Plena Solis 学芸大学 2A号室の特徴
-
一人暮らしに人気の設備

-
カップルに人気の設備

-
家族に人気の設備

-
夫婦に人気の設備

-
三世代で人気の設備

-
外で子どもと遊びたい

-
雨の日でも洗濯したい

-
洋室で暮らしたい

-
料理が好き

-
推し活グッズを飾りたい

-
オークション・通販が好き

-
ガーデニングが好き

契約条件
この物件は、2人入居もご契約できます。 ペットの飼育もご相談ください。 また、ご契約時に保証人は不要です。
セキュリティ
この物件の建物には、オートロックや宅配ボックスが設置されており、来客時には居室内のテレビモニターにて訪問者の顔を確認することができます。
室内設備
システムキッチンには、ガスコンロが備え付けられています。 お風呂とトイレは別です。お風呂には、追い焚き機能が備わっています。 トイレは、温水洗浄便座機能付きになります。 女性に嬉しい設備のシャワーの付いている洗面化粧台があります。 洗濯に便利な設備として、室内洗濯機置場があります。浴室乾燥機も設置されているので、梅雨時の生乾き臭も比較的防ぐことができます。
居室状況
お部屋の床は、フローリングとなっており、エアコンが設置されています。 照明器具が備え付けられており、インターネットも無料で入居後すぐ生活が始められます。 収納スペースとして、基本的な居室にクローゼットを設置、玄関にはシューズボックスがあります。
建物設備共用部分
居室外の専有スペースとして、洗濯物を干すなどの用途として利用できるバルコニーがあります。 建物の共用スペースに、急な外出や不在がちのご家庭の荷物受け取りに便利な宅配ボックスが設置されています。 駐輪場が利用できます。
周辺施設
この物件の学区は、五本木小学校区・目黒中央中学校区です。
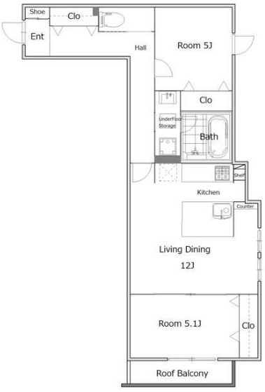
Plena Solis 学芸大学 2A号室の間取り
間取り:2LDK
間取詳細:2LDK(洋5.1・洋5・LDK12)
専有面積:56.08㎡
方位:南西
部屋位置:角部屋
Plena Solis 学芸大学 2A号室の設備
キッチン
システムキッチン
カウンターキッチン
ガスコンロ
バス・トイレ
バス・トイレ別
追い焚き
浴室乾燥機
温水洗浄便座
独立洗面台
シャワー付洗面化粧台
玄関
TVモニタ付インターホン
オートロック
宅配ボックス
収納
クローゼット
シューズボックス
バルコニー
バルコニー
ルーフバルコニー
室内設備
エアコン
フローリング
室内洗濯機置場
照明器具付
デザイナーズ
位置・立地
1階
角部屋
インフラ
インターネット可
都市ガス
建物設備
駐輪場
入居条件
ペット可・相談
2人入居可
オンライン相談可
オンライン内見可
保証人不要
即入居可
ライフステージ
一人暮らしに人気の設備
カップルに人気の設備
家族に人気の設備
夫婦に人気の設備
三世代で人気の設備
こだわり
外で子どもと遊びたい
雨の日でも洗濯したい
洋室で暮らしたい
趣味
料理が好き
推し活グッズを飾りたい
オークション・通販が好き
ガーデニングが好き
お得な条件
インターネット無料
Plena Solis 学芸大学 2A号室の賃貸契約情報
毎月支払う |
家賃24.5万円/月共益費5,000円/月 |
|---|---|
初期費用 |
敷金1ヶ月 (24.5万円)礼金1ヶ月 (24.5万円)保証金-敷引き償却金- |
更新料 |
245,000円 |
鍵交換費用 |
- |
室内清掃費用 |
110,000円 |
更新事務手数料 |
11,000円 |
入居者サポート |
16,500円 |
駐車場料金 |
無 |
損保・ |
借家賠付きの火災保険にご加入いただきます。 |
保証会社 |
加入要 保証会社:エルズサポート 保証会社利用料:賃料総額の50% 月次1.2% 月額440円 |
契約期間 |
2年 |
入居可能日 |
即入居可 |
フリーレント期間 |
- |
取引形態 |
一般媒介 |
備考 |
ペット飼育時敷金積み増し料金(償却)有り |
Plena Solis 学芸大学 2A号室の建物情報
建物名称 |
Plena Solis 学芸大学 |
|---|---|
最寄駅 |
|
所在地 |
東京都目黒区五本木 |
階層 |
1階部分(地上2階建) |
構造 |
木造 |
築年数 |
2026年3月 |
駐車場 |
無 |
小学校学区 |
五本木小学校 |
中学校学区 |
目黒中央中学校 |
- 学区データについて
- ※学区データは必ずしも正確とは限りません。詳細に関しては最寄店舗または各自治体の教育委員会に必ずご確認ください。
無料この物件に問い合わせ
- Plena Solis 学芸大学 2A号室

-
24.5万円
(共益費
5,000円)
- 敷
- 1ヶ月
- 礼
- 1ヶ月
- 保
- -
- 償
- -
Plena Solis 学芸大学 2A号室の物件のお問い合わせ先・取り扱い店舗
ハウスコム 三軒茶屋店
- アクセス
-
東急田園都市線「三軒茶屋駅」南口徒歩1分
- 住所
- 〒154-0024 東京都世田谷区三軒茶屋1丁目38−7 ワコーレ三軒茶屋 2階
- 営業時間
- 10:00~18:00
- 定休日
- なし
- 営業エリア
- 世田谷区・目黒区・渋谷区
- 取引態様
- 賃貸仲介業












