サンロワール江坂 ***号室(2階/1R)の賃貸物件(賃貸マンション)
大阪府吹田市にあるサンロワール江坂 ***号室はシューズボックス、バルコニー、エアコン、CATV、エレベーターなどが特徴です。最寄り駅の大阪メトロ 御堂筋線江坂駅から徒歩5分です。サンロワール江坂 ***号室の詳細はミニミニ FC江坂店までお気軽にお問い合わせください!
情報更新日:
次回更新予定日:
※次回更新予定日について:お店側では順次空室確認を行っていますが、次回更新予定日までに空室確認が行えない場合には、この物件情報は自動的に削除されます。
サンロワール江坂 ***号室の賃貸物件部屋概要
家賃 |
7.5万円
初期費用を |
|---|---|
共益費 |
8,000円
入居可能時期 |
敷金/礼金 |
- / 150,000円 |
保証金/ |
- / - |
最寄駅 |
|
所在地 |
大阪府吹田市広芝町 |
部屋番号 |
***号室 |
間取り |
1R |
専有面積 |
28.92㎡ |
築年数 |
2003年1月(築24年) |
階数 |
2階部分(地上10階建) |
方位・位置 |
東 / その他 |
物件種別 |
賃貸マンション |
構造 |
RC |
駐車場 |
空無し |
小学校学区 |
豊津第一小学校 |
中学校学区 |
豊津中学校 |
他の空き部屋 |
ー |
- 学区データについて
- ※学区データは必ずしも正確とは限りません。詳細に関しては最寄店舗または各自治体の教育委員会に必ずご確認ください。
サンロワール江坂 ***号室の特徴
-
一人暮らしに人気の設備

-
カップルに人気の設備

-
家族に人気の設備

-
夫婦に人気の設備

-
三世代で人気の設備

-
外で子どもと遊びたい

-
雨の日でも洗濯したい

-
洋室で暮らしたい

-
オークション・通販が好き

-
ガーデニングが好き

契約条件
敷金が無料なため、初期費用が比較的安くなる傾向にあります。
セキュリティ
この物件の建物には、オートロックや宅配ボックスが設置されており、来客時には居室内のテレビモニターにて訪問者の顔を確認することができます。
室内設備
システムキッチンには、IHコンロが備え付けられています。 トイレは、温水洗浄便座機能付きになります。 洗濯に便利な設備として、室内洗濯機置場があります。浴室乾燥機も設置されているので、梅雨時の生乾き臭も比較的防ぐことができます。
居室状況
お部屋の床は、フローリングとなっており、エアコンが設置されています。 インターネットも無料で入居後すぐ生活が始められます。 収納スペースとして、玄関にはシューズボックスがあります。
建物設備共用部分
居室外の専有スペースとして、洗濯物を干すなどの用途として利用できるバルコニーがあります。 建物の共用スペースに、日々の出入に便利なエレベーターや、急な外出や不在がちのご家庭の荷物受け取りに便利な宅配ボックスが設置されています。 駐輪場が利用できます。
周辺施設
この物件の学区は、豊津第一小学校区・豊津中学校区です。
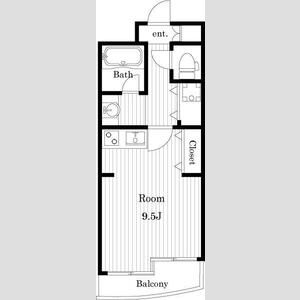
サンロワール江坂 ***号室の間取り
間取り:1R
間取詳細:1R
専有面積:28.92㎡
方位:東
部屋位置:その他
サンロワール江坂 ***号室の設備
キッチン
システムキッチン
IHコンロ
バス・トイレ
バス・トイレ別
浴室乾燥機
温水洗浄便座
玄関
TVモニタ付インターホン
オートロック
宅配ボックス
収納
シューズボックス
バルコニー
バルコニー
ルーフバルコニー
室内設備
エアコン
フローリング
室内洗濯機置場
位置・立地
2階以上
インフラ
インターネット可
CATV
オール電化
建物設備
エレベーター
駐輪場
ライフステージ
一人暮らしに人気の設備
カップルに人気の設備
家族に人気の設備
夫婦に人気の設備
三世代で人気の設備
こだわり
外で子どもと遊びたい
雨の日でも洗濯したい
洋室で暮らしたい
趣味
オークション・通販が好き
ガーデニングが好き
お得な条件
インターネット無料
サンロワール江坂 ***号室の賃貸契約情報
毎月支払う |
家賃7.5万円/月共益費8,000円/月 |
|---|---|
初期費用 |
敷金-礼金150,000円保証金-敷引き償却金- |
更新料 |
- |
鍵交換費用 |
22,000円 |
室内清掃費用 |
- |
駐車場料金 |
空無し |
損保・ |
借家賠付きの火災保険にご加入いただきます。 |
保証会社 |
加入要 保証会社:日本セーフティー 保証会社利用料:初回保証料:月額総支払額×50%、更新保証料:10,000円/年 |
契約期間 |
2年 |
入居可能日 |
相談 |
フリーレント期間 |
- |
取引形態 |
一般媒介 |
備考 |
- |
サンロワール江坂 ***号室の建物情報
建物名称 |
サンロワール江坂 |
|---|---|
最寄駅 |
|
所在地 |
大阪府吹田市広芝町 |
階層 |
2階部分(地上10階建) |
構造 |
RC |
築年数 |
2003年1月(築24年) |
駐車場 |
空無し |
小学校学区 |
豊津第一小学校 |
中学校学区 |
豊津中学校 |
- 学区データについて
- ※学区データは必ずしも正確とは限りません。詳細に関しては最寄店舗または各自治体の教育委員会に必ずご確認ください。
無料この物件に問い合わせ
- サンロワール江坂 ***号室

-
7.5万円
(共益費
8,000円)
- 敷
- -
- 礼
- 150,000円
- 保
- -
- 償
- -
サンロワール江坂 ***号室の物件のお問い合わせ先・取り扱い店舗
ミニミニ FC江坂店
- アクセス
-
大阪メトロ 御堂筋線「江坂駅」徒歩1分
- 住所
- 〒564-0063 大阪府吹田市江坂町1-23-34 第二梓ビル2F
- 営業時間
- 10:00~18:00
- 定休日
- なし
- 営業エリア
- 大阪府下全域
- 取引態様
- 賃貸仲介業











