ブライズ高円寺 502号室(5階/1K)の賃貸物件(賃貸マンション)
東京都杉並区にあるブライズ高円寺 502号室はバス・トイレ別、温水洗浄便座、オートロック、フローリング、駐輪場などが特徴です。最寄り駅の中央本線(JR東日本)高円寺駅から徒歩11分です。ブライズ高円寺 502号室の詳細はハウスコム 高円寺店までお気軽にお問い合わせください!
情報更新日:
次回更新予定日:
※次回更新予定日について:お店側では順次空室確認を行っていますが、次回更新予定日までに空室確認が行えない場合には、この物件情報は自動的に削除されます。
ブライズ高円寺 502号室の賃貸物件部屋概要
家賃 |
12.1万円
初期費用を |
|---|---|
共益費 |
15,000円
入居可能時期 |
敷金/礼金 |
121,000円 / 121,000円 |
保証金/ |
- / 1ヶ月 |
最寄駅 |
|
所在地 |
東京都杉並区高円寺北 |
部屋番号 |
502号室 |
間取り |
1K(洋7.4) |
専有面積 |
25.38㎡ |
築年数 |
2022年9月(築4年) |
階数 |
5階部分(地上9階建) |
方位・位置 |
南 / その他 |
物件種別 |
賃貸マンション |
構造 |
RC |
駐車場 |
- |
小学校学区 |
馬橋小学校 |
中学校学区 |
杉森中学校 |
他の空き部屋 |
409号室 |
- 学区データについて
- ※学区データは必ずしも正確とは限りません。詳細に関しては最寄店舗または各自治体の教育委員会に必ずご確認ください。
ブライズ高円寺 502号室の特徴
セキュリティ
この物件の建物には、オートロックや宅配ボックスが設置されており、来客時には居室内のテレビモニターにて訪問者の顔を確認することができます。
室内設備
システムキッチンが備え付けられています。 お風呂とトイレは別です。お風呂には、追い焚き機能が備わっています。 トイレは、温水洗浄便座機能付きになります。 女性に嬉しい設備の独立した洗面化粧台があります。 洗濯に便利な設備として、浴室乾燥機も設置されているので、梅雨時の生乾き臭も比較的防ぐことができます。
居室状況
お部屋の床は、フローリングとなっており、エアコンが設置されています。 収納スペースとして、基本的な居室にクローゼットがあります。
建物設備共用部分
居室外の専有スペースとして、洗濯物を干すなどの用途として利用できるバルコニーがあります。 建物の共用スペースに、日々の出入に便利なエレベーターや、急な外出や不在がちのご家庭の荷物受け取りに便利な宅配ボックスが設置されています。 駐輪場が利用できます。
周辺施設
この物件の学区は、馬橋小学校区・杉森中学校区です。
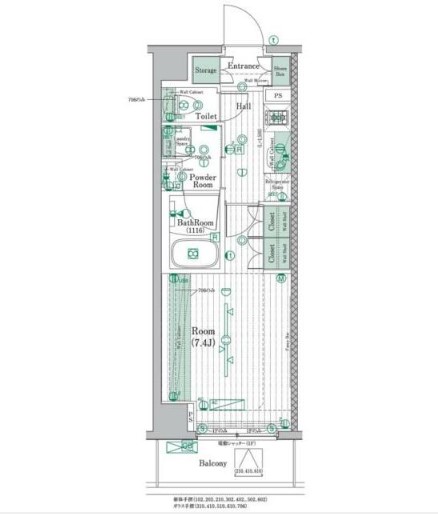
ブライズ高円寺 502号室の間取り
間取り:1K
間取詳細:1K(洋7.4)
専有面積:25.38㎡
方位:南
部屋位置:その他
ブライズ高円寺 502号室の設備
キッチン
システムキッチン
バス・トイレ
バス・トイレ別
追い焚き
浴室乾燥機
温水洗浄便座
独立洗面台
玄関
TVモニタ付インターホン
オートロック
宅配ボックス
収納
クローゼット
バルコニー
バルコニー
ルーフバルコニー
室内設備
エアコン
フローリング
位置・立地
2階以上
南向き
建物設備
エレベーター
駐輪場
ライフステージ
一人暮らしに人気の設備
カップルに人気の設備
家族に人気の設備
夫婦に人気の設備
三世代で人気の設備
こだわり
外で子どもと遊びたい
雨の日でも洗濯したい
洋室で暮らしたい
趣味
ガーデニングが好き
ブライズ高円寺 502号室の賃貸契約情報
毎月支払う |
家賃12.1万円/月共益費15,000円/月 |
|---|---|
初期費用 |
敷金121,000円礼金121,000円保証金-敷引き償却金1ヶ月 |
更新料 |
121,000円 |
鍵交換費用 |
22,000円 |
室内清掃費用 |
- |
入居中サポート |
21,450円 |
室内抗菌処理代 |
17,600円 |
火災保険 |
15,000円 |
駐車場料金 |
- |
損保・ |
借家賠付きの火災保険にご加入いただきます。 |
保証会社 |
加入要 保証会社利用料:保証会社利用必須 初回保証料50% |
契約期間 |
1年 |
入居可能日 |
2026年05月 |
フリーレント期間 |
- |
取引形態 |
一般媒介 |
備考 |
鍵交換代 22000円 初期:入居中サポート 21450円 室内抗菌処理代 17600円 火災保険 23000円 保証会社利用必須 保証会社利用必須 初回保証料50% |
ブライズ高円寺 502号室の建物情報
建物名称 |
ブライズ高円寺 |
|---|---|
最寄駅 |
|
所在地 |
東京都杉並区高円寺北 |
階層 |
5階部分(地上9階建) |
構造 |
RC |
築年数 |
2022年9月(築4年) |
駐車場 |
- |
小学校学区 |
馬橋小学校 |
中学校学区 |
杉森中学校 |
- 学区データについて
- ※学区データは必ずしも正確とは限りません。詳細に関しては最寄店舗または各自治体の教育委員会に必ずご確認ください。
無料この物件に問い合わせ
- ブライズ高円寺 502号室

-
12.1万円
(共益費
15,000円)
- 敷
- 121,000円
- 礼
- 121,000円
- 保
- -
- 償
- 1ヶ月
ブライズ高円寺 502号室の物件のお問い合わせ先・取り扱い店舗
ハウスコム 高円寺店
- アクセス
-
中央本線(JR東日本)「高円寺駅」北口徒歩1分
- 住所
- 〒166-0002 東京都杉並区高円寺北2-4-5 ロータリービル2階
- 営業時間
- 10:00~18:00
- 定休日
- 水曜日
- 営業エリア
- 【杉並区・中野区・練馬区・新宿区・世田谷区・武蔵野市】
- 取引態様
- 賃貸仲介業
































